查看完整案例

收藏

下载
©Yang Chaoying
设计旨在将大同美术馆打造成人们的社交中心,大同的‘城市客厅’,将人们与艺术以及艺术家们汇聚在一起,促进三者之间互动。在美术馆的中心,尺度恢弘的画廊与灵活的展览空间充分体现出这一精神,同时满足了大型艺术品展览、行为艺术以及其他活动的特殊空间需求。
感谢 Foster + Partners
大同美术馆,国内新晋文化目的地,以当地艺术家油画为特色的特别展览吸引了来自全国各地的观众。
作为大同新城文化广场的四大建筑之一,大同美术馆将成为该地区新兴创意产业的中心。
项目由著名国际事务所 Foster+Partners 设计,极具雕塑感的建筑形式如同景观地形融入场地之中,一系列相互连接的金字塔拔地而起,画廊则隐藏在半地下空间中,被景观广场包围。
一系列用于教育和学习的空间与美术馆的文化功能相辅相成,包括儿童画廊、媒体图书馆,以及充足的档案与艺术品收藏空间。
▲项目概览
Yang Chaoying
Foster + Partners 负责人 Luke Fox 说:“设计旨在将大同美术馆打造成人们的社交中心,大同的‘城市客厅’,将人们与艺术以及艺术家们汇聚在一起,促进三者之间互动。在美术馆的中心,尺度恢弘的画廊与灵活的展览空间充分体现出这一精神,同时满足了大型艺术品展览、行为艺术以及其他活动的特殊空间需求。”
▲美术馆外形如同一系列相互连接的金字塔
Yang Chaoying
一条掩映在景观中的对角线路径将参观者们引导至美术馆入口,在这里,一系列蜿蜒的坡道向下延伸汇集成开放式的下沉广场,除了作为入口集散空间外,还可以作为露天剧场为户外表演提供场地。
进入美术馆后,游客们将首先到达夹层空间,在这里,人们可以看到美术馆的社交中心,即大画廊的壮观全景。大画廊高 37 米,跨度近 80 米。
需要精密气候控制的展览空间则被规划在美术馆的边缘,所有展览空间均位于同一楼层,以便参观者自由进出。
▲美术馆与场地环境鸟瞰
Yang Chaoying
▲入口广场坐落在场地的对角线上 Yang Chaoying
四个金字塔形态的屋顶相互连接逐渐升高,以扇形形态向文化广场的四个角落延伸。自然光线通过金字塔顶端的采光带灯进入室内。屋顶的设计直接回应了建筑的大结构跨度,旨在创造一个尺度巨大、内部灵活的无柱空间,同时将较小的画廊空间调整到平面边缘。屋顶覆盖着自然氧化的弯曲钢板,钢板屋面有助于排水,并赋予了项目极富视觉冲力的三维效果。钢板屋面的尺度与博物馆的巨大体量相互呼应,线性排列进一步突出了金字塔屋顶的几何形态。
▲屋顶航拍顶视图
Yang Chaoying
▲屋顶细部
Yang Chaoying
▲线性排列进一步突出了金字塔屋顶的几何形态
Yang Chaoying
设计的核心理念之一在于关注教育与学习,因此,大同美术馆内设有一处专门的儿童画廊。儿童画廊内设有朝南的高窗,阳光从高窗洒落进室内营造出明亮舒适的观展氛围。除此之外,美术馆内还设有一个面积较小的教育中心与一个媒体图书馆,以及一系列支持艺术家居住、演讲和会议的服务设施,这些功能的设置为美术馆的教育计划提供了更加完善的条件。
▲内部空间概览
Yang Chaoying
▲高 37 米,跨度近 80 米的主要画廊空间
Yang Chaoying
▲与入口广场相连的夹层空间
Yang Chaoying
▲需要精密气候控制的展览空间则被规划在博物馆的边缘
Yang Chaoying
通过将建筑嵌入全新的广场,美术馆在规模上与邻近的文化建筑相互联系起来,在最大化内部空间的同时平衡了区域总体规划的整体组成。在白天,金字塔顶端的天窗满足了室内的自然采光需求,而在夜晚,室内的灯光透过天窗照射出来,使博物馆成为该文化新区的独特灯塔。
▲夜景鸟瞰
Yang Chaoying
▲美术馆尺度与周边文化建筑相呼应
Yang Chaoying
▲室内光线透过屋顶天窗照射出来,宛如黑夜中的灯塔
Yang Chaoying
▲屋顶夜景细部
Yang Chaoying
本项目采用了高效被动式设计,旨在回应大同本地的气候。高层的天窗充分利用了建筑的北、西北朝向,利用自然光线的照射角度巧妙避免了太阳光的直射,确保了最佳的艺术品保存环境。半地下的建筑形式,加上高性能的建筑外壳,进一步减少了美术馆对能源的需求。绝大部分屋面采用了坚固的刚性材料,且隔热性能是建筑规范要求的两倍。
“为未来而设计,我们希望大同美术馆能成为城市文化生活的中心,成为一处充满活力的公共文化目的地。”Luke Fox 补充道。
项目图纸
▲总平面图
Foster + Partners
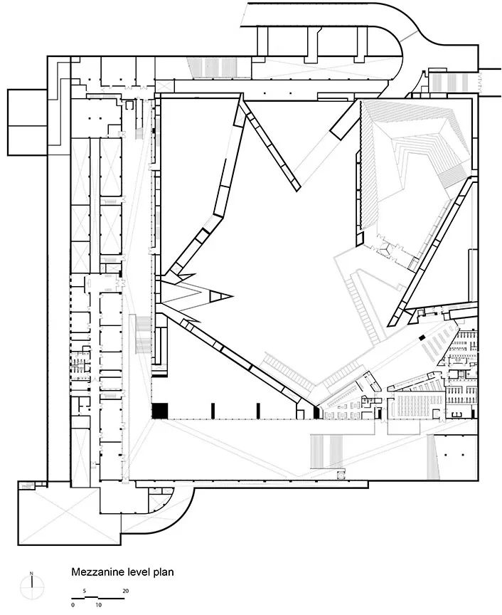
▲夹层平面图
Foster + Partners
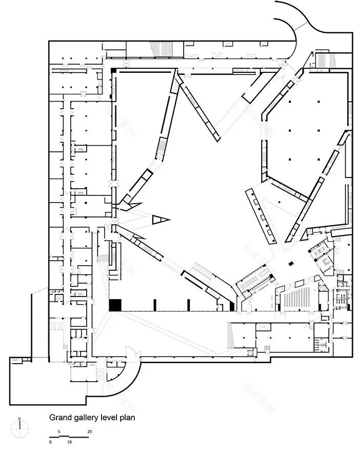
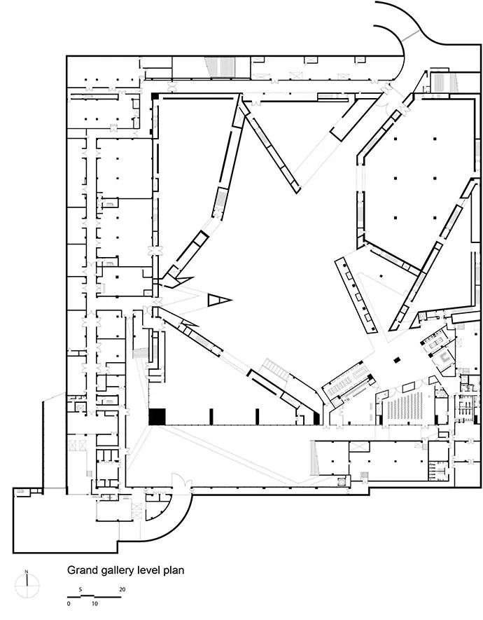
▲画廊层平面图
Foster + Partners
▲北立面图
Foster + Partners
▲南立面图
Foster + Partners
▲东立面图
Foster + Partners
▲西立面图
Foster + Partners
▲剖面图
Foster + Partners
Datong Art Museum
Datong, China 2010 – 2021
Architect:Foster + Partners
Foster + Partners Design Team:Norman Foster / David Nelson / Spencer de Grey / Luke Fox / Michael Gentz / Zheng Yu / Meng Xia / Loretta Law / Bartenis Siaulytis / Yasuko Tarumi / Ahmed Hosny / Mitsunori Sano / Pil-Joon Jeon Yung Kim
Collaborating Architect: China Architecture Design and Research Group
Main Contractor: China Railway Airport Construction Group Co., Ltd.
Structural Engineer: China Architecture Design and Research Group
Cost Consultant: China Architecture Design and Research Group
Mechanical and Electrical Engineers: China Architecture Design and Research Group
Lighting Consultant: Claude Engle, BPI+THU
Landscape Consultant: AECOM
Museum consultant: Lord
Client:Datongg Municipal Administration of Culture Broadcasting Television Press & Publication
Appointment:2010
Construction start date: 2011
Construction end: 2021
Site Area: 51605 m2
Gross Area: 32,000m2
Building Footprint: 13313 m2
Dimensions:Height: 34m
Width: 147mLength: 155m
The grand gallery height: 37.5m
Number of Buildings: 1
Number of Storeys: 3 storeys + 1 basement
Structure:Steell structure and concrete base.
Reinforced concrete shear wall and space truss roof.
Cladding:Curvedd profiled, oxidised steel roof cladding.
Main Materials: Concrete (Structure) Steel (Structure) Corroded Steel (Cladding) Plaster Boards (Interior)
Energy & Carbon: High-level skylights take advantage of the building’s north and north-west orientation, reducing artificial lighting demands.
A high-performance enclosure reduces energy use.
The roof (accounting for 70 per cent of exposed surface area), is insulated to twice building code requirements.
Materials & Waste: Steel structure with Corten steel facade, aluminium sheets as main roof build-ups.
Wellbeing:Providee public space and sunken courtyard to introduce natural light to the basement space. Art education space such as library, information center, lecture hall.
Awards:Goldd Award of China’s Construction Engineering Steel Structure (2012, the highest honour of Chinese steel structure industry)
小号小号
客服
消息
收藏
下载
最近






























