查看完整案例

收藏

下载
©存在建筑
我们思考项目的主要出发点,是想要创造一个充满阳光,充满自然氛围的建筑。让小朋友可以在天气晴朗的时候在阳光下恣意奔跑玩耍。
感谢本末建筑
项目位于四川省成都市双流区东升街道,五金路和五洞桥北路二段交口处,是一个九班的公立幼儿园。项目用地十分紧张,需要在 3989 平方米的场地上布置满足日照标准的九班规模幼儿园功能及室外活动场地。
▲建筑鸟瞰存在建筑
在成都这种盆地气候条件下,阳光是一种珍贵的自然资源。我们思考项目的主要出发点,是想要创造一个充满阳光,充满自然氛围的建筑。因此我们将幼儿活动单元及活动场地布置在场地南侧,使其获得充分无遮挡的最佳日照条件,让小朋友可以在天气晴朗的时候在阳光下恣意奔跑玩耍。同时,这种布局也在街角形成开阔的城市关系,让幼儿园成为城市沉闷背景中的一抹亮色。
▲建筑与城市的关系存在建筑童趣世界--积木般有趣的立面
建筑的立面既是建筑对城市传达自身特点的展示面,又是小朋友对校园环境产生第一印象的感知面。我们希望这个幼儿园的建筑形象是活泼的充满趣味的,可以为小朋友的童年留下深刻印象的形象。
▲立面生成概念
本末建筑
立面的开窗不再是每个活动单元均质化的开窗形式,而是将统一单调的大面积开窗解构成大小不一、高低不一的不同窗户形式的组合,解构后的窗户的开窗面积仍可满足规范的采光通风要求。
这些窗户如几何积木、俄罗斯方块一般布在建筑立面上。
▲充满童趣的立面存在建筑
▲立面近景
存在建筑
▲大小不一的开窗组合
存在建筑
与自然交融的建筑
场地北侧的建筑主体体量采用回字型布局形式,在内部形成一个私密的内部庭院。这里是完全属于小朋友的一方天地。开敞的环形外廊围绕内庭布置。在这里,阳光、微风、蓝天、鸟语、花香仿佛触手可及,自然流动了进来,让空间鲜活了起来。
▲建筑主入口
存在建筑
▲建筑内庭 存在建筑
▲与自然交融的走廊
存在建筑
空间渗透
建筑体量为回应场地四周不同的条件及功能要求,形成多个内凹空间。这些空间在解决实际功能问题的同时又将自然引入进来,形成多个小庭院,增大了建筑与自然的接触面,与自然交互渗透。
▲空间渗透示意图
本末建筑
▲内凹空间-- 后勤区
存在建筑
▲内凹空间仰望天空存在建筑多重平台建筑体量在东侧逐级退台,形成较大的屋面活动平台,方便三层的小朋友进行室外活动。活动单元之间的内凹空间也形成小的屋面活动平台。大小屋面平台构成多重屋面体系。
▲轴测图
本末建筑
明亮的大厅存在建筑
▲走廊地面上的多彩跑道
存在建筑
多彩童年 — 色彩游戏
幼儿时期是对颜色较为敏感的时期,丰富的色彩环境有利于儿童的身心发展。室外的建筑立面采用暖色调,体量上内凹的部分采用红色作为空间转变的提示,立面上点缀明亮的黄色和温馨的橙色作为色彩活跃要素。室内设计将色彩作为不同空间的引导标识。楼梯间、多功能活动室、专用活动室、活动空间等采用不同的主色调,在环形廊道的地面上通过相应颜色的跑道将小朋友指引到对应的活动区域。室内家具与立面的凹进造型结合设计,在室内形成有趣的空间。
▲橙红色的公共活动空间存在建筑
▲黄色的交通空间存在建筑
▲多功能活动室
存在建筑
项目图纸
▲一层平面图
本末建筑
▲二层平面图
本末建筑
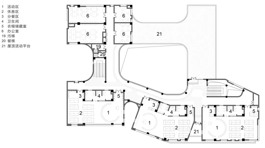
▲三层平面图
本末建筑
项目名称:广都幼儿园
设计方:成都本末建筑
项目设计 & 完成年份:2020.01 设计&2021.07 完成
主创及设计团队:(建筑)刘博,史磊,(室内)谭德超,刘忠山
项目地址:成都市双流区五金路
建筑面积:约 4000㎡
摄影版权:存在建筑
合作方:成都锐田园林景观设计有限公司
客户:成都双流兴城置业有限公司
材料:真石漆,玻璃,混凝土
小号小号
客服
消息
收藏
下载
最近


























