查看完整案例

收藏

下载
建筑顶层设有开放露台©Nakasa&Partners
感谢
Keiji Ashizawa Design
名古屋 9h 酒店于 2020 年 2 月开业,距名古屋站仅两分钟路程。
▼项目外观©Nakasa&Partners
设计目标是创造一个让人可以放松下来、好好休息的环境。尤其是顶层空间,在繁忙的城市与狭小的胶囊酒店中形成了一种开放感。
▼建筑顶层设有开放露台©Nakasa&Partners
▼露台为城市生活提供一种开放感©Nakasa&Partners
一层设有知名的 Glitch 咖啡餐厅,这是该品牌在名古屋的第一家分店。
▼入口©Nakasa&Partners
▼室外座位©Nakasa&Partners
▼户外座椅与植物©Nakasa&Partners
一层咖啡餐厅©Nakasa&Partners
▼咖啡厅细部©Nakasa&Partners
设计师希望项目不仅为 9h 的住客所用,也可以为社区提供一个温馨的场所。
▼顶层公共空间©Nakasa&Partners
提供社区营造的场所©Nakasa&Partners
9h 的创立基于酒店住宿最直观的理念:“一天的重启需要一些基本行动,包括一小时沐浴、七小时睡眠和一小时梳妆,共九个小时。”为旅客提供了独一无二的理想城市住宿体验。
▼住宿胶囊©Nakasa&Partners
▼电梯间©Nakasa&Partners
行李寄存处©Nakasa&Partners
▼盥洗室 ©Nakasa&Partners
▼标识细部©Nakasa&Partners
夜景©Nakasa&Partners
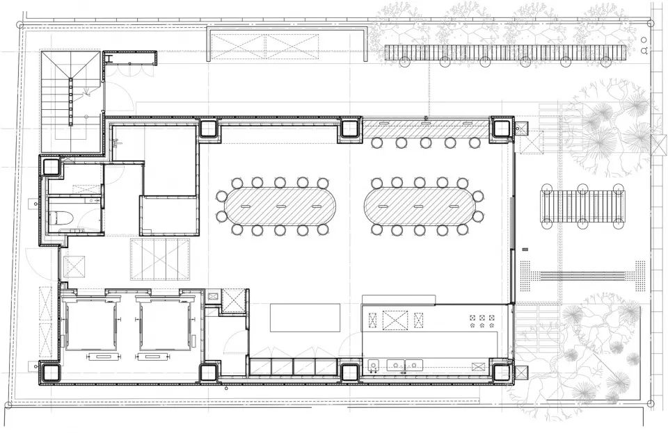
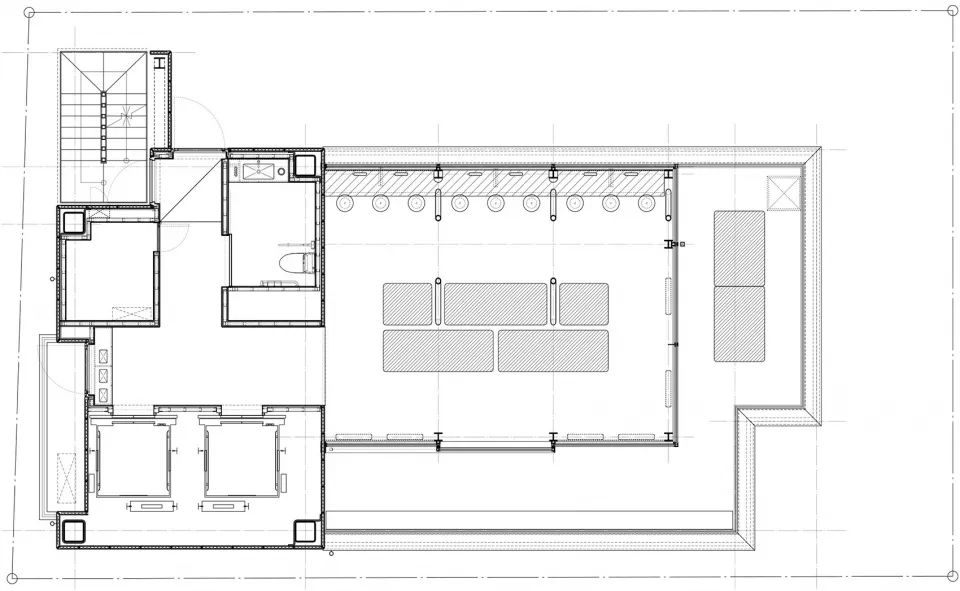
项目图纸
一层平面图©Keiji Ashizawa Design
▼屋顶平面图©Keiji Ashizawa Design
▼住宿层平面图 ©Keiji Ashizawa Design
▼盥洗室平面图©Keiji Ashizawa Design
Project Name: 9h nine hours Nagoya
Design Company: Keiji Ashizawa Design
Function: HotelLocation: NagoyaCompletion: 2020 年
Architects: Keiji Ashizawa, Kentaro Yamaguchi
Architectural Design: GKK ARCHITECTS & ENGINEERS Co.,LTD.
Construction: Shiohama Industry Corporation
Photographer: Nakasa&Partners
Building Area: 1F136.95m2, 9F42.81m2
Design Period:2018.11-2019.03Construction Period:2019.06-2020.02
Exterior Materials: 外壁 (押出成形セメント板:アイカテック建材/メース)
Interior Materialsフローリング:マルホン/ヨーロピアンオーク オイルホワイトウォッシュ
1F 床:コンクリート洗出し
床シート:ADVAN/BOLON
水廻りタイル:Maristo/one、平田タイル/Xtreme
壁:AEP 塗装、KMEW/SOLIDO、フレキシブルボード
天井:AEP 塗装、デッキ表し、フレキシブルボード
Furniture and Illumination
1F スツール:karimoku new standard
9F ソファ:karimoku case study
客服
消息
收藏
下载
最近
































