查看完整案例

收藏

下载
新的街区将置入一个独特的“人行峡谷”,它被构思为一个跨度 40 米的大型公园,并将连接周围的所有建筑物。峡谷的景观分为多个层级,坡道和楼梯呈之字形贯穿场地,并一直向上延伸至乌克图斯山。
感谢Brusnika
Shishimskaya Gorka 是叶卡捷琳堡市南部的一个住宅区,与乌克图斯山森林公园相邻。这里是城市中海拔最高和地势最陡峭的地区之一,可以俯瞰到市中心的景色。
2013 年,荷兰 KCAP 事务所受托为 Shishimskaya Gorka 住宅区进行总体规划,主要概念是为所有城市居民创建一个以自然为基础的公共空间系统,同时使新的多用途区域与既有的环境和景观相融合。
项目概览
Shishimskaya Gorka 是一个约 50 万平方米的大规模重建项目,将分为三个阶段完成。规划将涵盖住宅、塔楼和城区别墅,并通过公园实现连接。目前第一阶段正在进行,已完成了两个街区的重建。
▲整体规划示意
©S&P Architektura Krajobrazu & Brusnika Design
新的街区将置入一个独特的“人行峡谷”,它被构思为一个跨度 40 米的大型公园,并将连接周围的所有建筑物。峡谷的景观分为多个层级,坡道和楼梯呈之字形贯穿场地,并一直向上延伸至乌克图斯山。
场地中有一条存在已久的人行步道,在新街区的建设过程中,这条步道得到了修复和重建,同时保持了其原有的丘陵地形。陡峭的山地景观为建筑师带来了挑战,他们需要创造一个连贯的功能性空间,使其满足不同社会群体的需要,包括行动不便的使用者。
▲整体鸟瞰:“人行峡谷”被构思为一个跨度为 40 米的大型公园
设计需要考虑的人群包括儿童和青少年、推婴儿车的家长和轮椅使用者,并且需要同时满足步行、骑行、滑旱冰和慢跑的需要。另一个主要的任务是设计能够抵御极端大陆性气候的景观,使公园在一年四季都能为人们提供多样且方便的功能(叶卡捷琳堡的冬季平均气温为--15℃,即使在白天,气温也经常达到--25℃)。
▲坡道和楼梯呈之字形贯穿场地
▲步道
▲植被和铺地细节
人行峡谷为成年人提供了安静的、带有喷泉的休闲区,同时为 7 岁以上的儿童提供了安全的游乐场地——坡度不高于 3%。所有的户外家具均由落叶松木和金属制成,地面以草皮、沙子、木板和人行面板铺设。变化的铺地方式起到了划分区域的作用。
▲儿童游戏区
▲喷泉
精心挑选的植物保证了公园在全年都拥有令人愉悦的景致:秋天的美景来自于改变颜色的树林和灌木;夏日美景来自于多年生植物的花朵;冬天则是常青树和彩色灌木的茎。多达 9 个品种的多年生植物混合种植在花坛中,使人行道在一年四季都被花团围绕。持续绽放的花朵和专门设计的喂鸟器能够吸引授粉生物和鸟类,有利于实现人造环境中的生物多样性。所有植物均可承受高达 80℃的巨大温差:从冬季的--40℃到夏季的 40℃。
▲人行道在一年四季都被花团围绕
▲冬季景观
项目图纸
▲总平面图
S&P Architektura Krajobrazu & Brusnika Design
▲功能分区示意
S&P Architektura Krajobrazu & Brusnika Design
▲铺地材料示意
S&P Architektura Krajobrazu & Brusnika Design
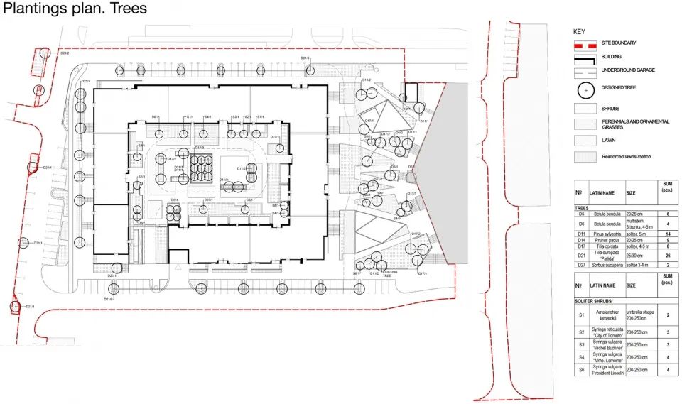
▲树木分布平面图
S&P Architektura Krajobrazu & Brusnika Design
▲灌木分布平面图
S&P Architektura Krajobrazu & Brusnika Design
Location — 6 Mramorskaya st., Yekaterinburg, Russian Federation
Project team
Development by Brusnika
Master plan by KCAP & Brusnika Design
Landscaping by S&P Architektura Krajobrazu & Brusnika Design
Photography by Maxim Loskutov, Ilya Teplov and Sergey Belonosov
Project Area & Programme
Canyon’s total area ー 14,400 square metres
Canyon’s length — 360 linear metres with 80 linear metres completed
Canyon’s width — 40 metres
Elevation variations — for up to 40 metres
Completion: 2019 — 2020 — first stage
Playgrounds and recreational zones: Diorit
Plant nurseries: Pol Plants (Poland), Lorberg (Germany), Baltym (Russia)
小号小号
客服
消息
收藏
下载
最近


























