查看完整案例

收藏

下载
LEON
“老菜场市井街区一段”并不是一个传统意义上的“完整”项目,而是区域资源的整合、改造边界的明确和关键空间的实施。就结果而言,它更像是片区更新的基础设施,为后续的空间开发作出铺垫。
感谢行止计画
“老菜场市井街区一段”项目位于西安明城墙内南顺城巷东端。在一片衰败的城墙东南角,由工业遗留转化而来的菜市场是唯一生机勃勃的角落。项目意图以菜市场为发起点,带动社区更新,振兴区域活力。
▲改造后,台阶广场联系了公共走道与 1、2 号楼的数个标高
© LEON1. 背景
西安城墙东南角区域,清末至民国曾是驻军和府邸用地,至解放初期建设了一批机关单位大院;在改革开放及其后数十年,大院边界的韧性让片区得以避开数轮粗暴的城市开发,保留下一片低层高密的历史肌理;新世纪前后,随着生产功能的转移和基础设施的老化,区域逐步陷入衰败。
2000 年,位于此区域的平绒厂停产,闲置的厂房被转化成一个综合农贸市场,成为周边居民的一个热闹的去处,即小有名气的“建国门菜市场”。然而片区的结构性衰落并未得到解决,菜场本身近几年也受到超市、电商的竞争和动摇,城墙东南角和老菜场需要走出下一步。
2018 年末,政府,投资方一起推动了以保存区域肌理和市井生活为前提的“老菜场市井街区”微更新计划。我们受委托对计划的启动部分开展设计。
▲从东侧看城墙东南角区域及项目涉及范围
©行止计画
▲平绒厂改造成为菜场前后
©行止计画
▲改造后的老菜场市井街区一段街景
© LEON2. 碎片
作为发起点,现有菜场部分被完全保留。一方面城墙内严苛的法规和投资方有限的资金不允许大面积拆建,更重要的是项目希望维持现有菜场的生活气息和微妙平衡,在已存社群的基础上,引入新的功能、空间和人群。
项目范围涉及一栋居民自建楼(1 号楼)、西安市平绒厂的原生产楼(2 号楼,建于 1976 年,附属部分建于 2017 年)和平绒厂办公楼(3 号楼,建于 1980 年)。它们的地面层是市场售卖空间的主要载体,即“保留”对象;而闲置的上部楼层和屋面被投资方租下,成为容纳未来新增功能的场所——包括 1 号楼的 3、4 层,2 号楼的 2、3 层及屋面,3 号楼的 5、6 层及屋面。
▲对项目涉及的三栋楼体及周边肌理的回溯性研究
©行止计画
这些上层空间产权清晰、成本低廉,还拥有在拥挤低矮的城墙内难得的开阔视野,几个屋面上近在咫尺的城墙视角更是令人惊喜。然而即使以改造的标准,项目空间也过于“碎片”化:设施废弃、联系薄弱、可达性差。
▲“碎片”化的改造对象
©行止计画
3. 修补
为了使破碎的空间重新适用于当下,适度的“修补”是必要的。不同于追溯性的“复原”,“修补”是基于既存物的创造活动:既“修理”旧物的器质缺失,又“补全”其与新场景的功用差距。在“修补”的具体过程中,一边是“因形就势”的整体把控,一边是“见招拆招”的局部智慧。
▲将“碎片”捏合的“修补”©行止计画
项目最核心的“修补”有三处:连接市场入口与 1、2 号楼的台阶广场,连接地面层与 2 号楼屋顶的交通筒,以及连接 2 号楼屋顶和 3 号楼的连桥。
▲2 号楼“修补”后剖面,首层菜场空间按现状运营©行止计画
3.1 台阶广场
三栋现状建筑中间微弱围合的位置,原是 2 号楼的附属楼,满覆单层钢结构建筑。设计初期,我们被委托“装修”钢结构最南侧一跨室内和立面,作为 2 号楼的入口大厅,不过这种程度的动作显然无法契合项目目标。在我们看来,一个清晰明确又有足够尺度的入口空间是迫切需要的。
▲2 号楼西侧位置曾依次是厂区门房、临时性餐饮棚和钢结构商铺
©行止计画
在厂方只肯出让商铺的最南侧一跨的情况下,我们选择拆除这一跨并协商降低第二跨,同时置入走上屋顶的台阶,打开屋顶成为连接多个楼层的入口。
沉闷封闭的门厅转化成了开敞的台阶广场;台阶层层上行,不仅引导人流进入上层空间,还成为了菜场公共生活的舞台。
▲2 号楼入口
©LEON
具体操作层面,设计拆除现结构南一跨门厅,将空间的一边设为喇叭形梯段,另一边打开作竖向交通核的入口,同时保持北侧数跨售卖空间的中走廊通达;继而,方案降低南二跨屋面高度至 2.8m,使其平接 2 号楼的 1 层夹层空间,这个平台也成为继续向上进入主平台之前的休息点;在 4.6m 标高的主平台上,路径朝数个方向展开:往北是观演和活动区,向东到 5.5m 标高是 2 号楼 2 层的主入口,继续向北到 6.1m 标高则连向 1 号楼三层和四层。
▲台阶广场轴测图纸和新旧关系对比
©行止计画
为了最小化投资,方案尽量避免或转化了对现有产权单位的侵占影响,同时原位、移位利用了全部主体结构。台阶广场改造给项目新打开五个直接对外的出入口,把原本荒置的钢结构屋面转化为交通中枢和公共场地。空间中的诸多“力场”——包括原钢结构柱网、东侧砖楼各层高、西侧市政电线、一层商户的空间诉求、南侧远对的城墙等——都结实地在设计上留下了印记。
▲台阶广场回看信义巷及南侧城墙
©LEON
3.2 交通筒
相较而言,交通筒部分的设计条件更明确。原有建筑的楼梯和新设电梯被延续至屋顶层,它们的包裹体块被塑造为玻璃体块轻微出挑于老建筑檐口上方。体块以其抽象性比照出下方老厂房立面的材料重量和时间深度,也示意其介入者身份;玻璃带来的明亮和视野试图加强访者从拥挤到开阔的转换体验。
▲楼梯间:老楼梯与加建楼梯交接处
©行止计画
3.3 连桥
连桥的设计意在解决“孤岛”般的 3 号楼 5、6 层空间可达性问题。其平面和剖面上诸多空间可能性的探讨最终被结构因素简洁地作了了断:由于 3 号楼砖混结构的承载力有限,连桥体量被压缩至最小(1.5m×10.6m),结构采用了轻量化的钢桁架,并在 3 号楼一侧的 6 层地面和屋面双层搭接,以减小集中荷载。这个理性结构被钢网包裹,成为项目的标志性空间。
▲连桥©杨濛
4. 介入的选择性
在严格的成本控制下,调配资源是重要的设计工作——谨慎地决定“做什么”、“不做什么”,接下来才是“如何做”。在主要的三部分“修补”之外,我们将有限的资金用来稳定结构,加固屋顶,更换玻璃,整理疏通水暖电和各种管道。厂房空间大多保持着原有的空旷和冷酷,等待着未知的功能涌入。
仅有的几处改造,则选择了原有工业印记强烈的局部加以保持甚至放大:窗户改造选择打掉已破损的旧玻璃后保留铁艺窗框,并在内侧加装同尺寸铝窗形成两个层次;对公共空间的斑驳的墙面则仅上了一层清漆做保护,露出绿色的墙裙和遗留的生产标语;东侧梯井内的老曳引机和坑洼的墙面一起被新打开的天光打亮,尘封在黑暗中的机器成为带着故事的雕塑;顶层高窗的细碎的铁艺窗框被更新为整块的玻璃长窗,原本就光照充沛的标志空间变得更加轻盈,屋顶如同漂浮。
▲2 号楼老拽引机房成为新楼梯间的天窗光源
©行止计画
▲2 号楼顶层高窗的漂浮感被放大
©行止计画
5. 空间与场景
菜场项目是在朴实的日常社区空间中嫁接的平行空间;原本不以为意的日常城市场景,在被拉入这平行空间后获得新的意义。人们步入台阶广场,俯瞰喧嚣的信义巷、遥望沉默的老城墙;走上屋顶平台,看垛口门楼随护栏水平延申、不同时空的建筑分割并置;小店的灯光透进楼梯间的放大窗框;菜市场的嘈杂穿入新打开的墙壁洞口……菜场内外,永不落幕的戏剧被放置了舞台,循环往复,活色生香。
▲屋顶上水平的城墙视角
©行止计画
▲2 号楼一层夹层面向一层菜市场的新窗口
©行止计画
6. 结语
“老菜场市井街区一段”并不是一个传统意义上的“完整”项目,而是区域资源的整合、改造边界的明确和关键空间的实施。就结果而言,它更像是片区更新的基础设施,为后续的空间开发作出铺垫。第一阶段建成半年,厂房空间中策划了艺术展览、动漫节、屋顶市集等多次活动;菜市场运营照常,也时常与街区发生互动;同 1,2,3 号楼一起被租下的顺城巷 4,5 号楼、信义巷 6 号楼也逐步动工改造、招商营业;遥远的人群到来、全新的喧嚣翻涌……老菜场开始年轻起来。
▲第一阶段完成后承办的部分展览和活动©行止计画
小成本、多产权的开发模式使得“更新”成为漫长多变的过程;项目的呈现在过多的即兴改动之下难以完整;一些装饰浓艳失控、一些空间悬而未决……庆幸的是,种种问题之下,设计的核心内容仍然展现出清晰的有效性,给片区带来积极的改变。
项目图纸和模型
▲老菜场市井街区一段项目模型鸟瞰
©行止计画
▲项目总图落位
©行止计画
▲2 号楼一层平面图
©行止计画
▲2 号楼一层夹层平面图
©行止计画
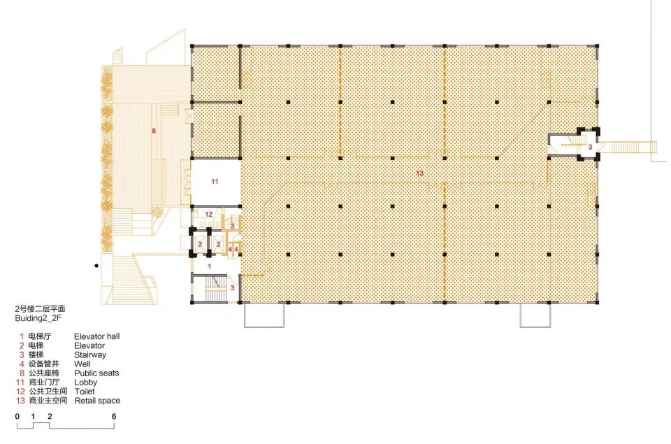
▲2 号楼二层平面图
©行止计画
▲2 号楼三层平面图
©行止计画
▲2 号楼屋顶平面图
©行止计画
▲交通筒加建剖面©行止计画
项目名称:“老菜场市井街区”一段
项目位置:西安市碑林区信义巷 5 号
整体面积:9656.1 平方米
设计时间:2018.12-2020.05
建设时间:2019.7-2020.05
设计单位:行止计画 (BoundsPlan)
设计主持:杨濛,吴涵儒
建筑设计:张诚,陈哲,林瑞祥 (实习),张秋砚 (实习),谢林静 (实习)
结构设计:吴占国
机电设计:谢超
业主单位:西安世界之窗在地商业运营管理有限公司
摄影:l’atelier de LEON+杨濛
小号小号
客服
消息
收藏
下载
最近




































