查看完整案例

收藏

下载
© ZhangChao
港中大学生中心是王维仁建筑设计研究室“都市合院主义系列”多层合院的另辟设计尝试,探讨在多层高密度的城市环境中,建筑如何将传统的四合院转化为新的空间形式。
感谢王维仁建筑设计研究室。
港中大深圳校园的学生中心,延续了传统岭南四合院建筑的空间特性,将垂直天井与水平穿廊的空间形式,转换为多层建筑穿透的院落空间。设计利用大中小功能量体逐次退缩的面对,形成层层而上的序列院落平台与天井,将学生由低层的穿廊逐渐带上中层的院落,逐步走到上层的平台与建筑框出的后山景观。背靠坡地的绿色山体,对外空间以长廊方院连接北侧的图书馆和东侧的教学楼,对内空间强化由校园绿地连接背后山体的视觉引导。
▲活动中心外观概览
© Wang Weijen Architecture
▲校园整体鸟瞰
© Zhang Chao
都市合院主义
港中大学生中心是王维仁建筑设计研究室“都市合院主义系列”多层合院的另辟设计尝试,探讨在多层高密度的城市环境中,建筑如何将传统的四合院转化为新的空间形式。
▲轴测分析图
© Wang Weijen Architecture
▲场地分析图
© Wang Weijen Architecture
有别于之前香港岭南大学的叠加式合院组合,或理工大学社区学院的竖向剖面合院,学生中心的建筑探讨如何在固定的方盒体量内部,透过垂直向和直向的切挖这个设计方式回应当代中国城市典型的方形地块,在多层建筑 24 米高度的规范说明下,如何透过对场地关系的回应建立一种高程的策略,形成一种步步高升层层框景的空间关系。期望透过新的合院类型在多层建筑里,重建低层建筑的空间尺度感以及建筑与自然的联系。
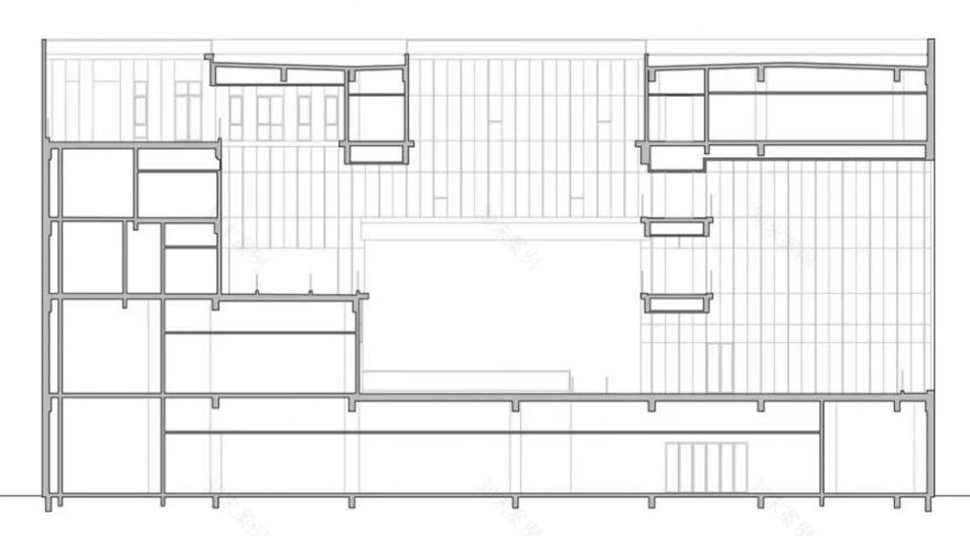
▲剖面分析图
© Wang Weijen Architecture
功能空间活动
学生中心与图书馆共同面对校园核心的下沉中庭广场,背靠自然山体,南侧连接逸夫书院。
▲鸟瞰学生中心与图书馆
© Zhang Chao
在功能布局上,学生中心将学校的主要餐厅放置于一、二层,多功能厅位于三层;由大台阶和平台组成的直接向走廊过渡建筑,将学生由广场引向后山,也将山景约会建筑入口与校园的中庭广场,强化了学生活动中心与校园绿地地形的结合。
▲下沉中庭广场
© Zhang Chao
▲平台连廊与立面细部
© Zhang Chao
▲由道路看活动中心与连廊
© Zhang Chao
▲由下沉广场看建筑
© Zhang Chao
▲连廊提供了阴凉与过渡空间
© Zhang Chao
三维院落空间形式
学生中心的建筑空间形式探讨了在六层高的量体中,如何透过不同高层的平台与连廊,以新的空间形式组织三维的中院落,反映传统岭南建筑院落,天井与穿廊的空间关系。在直向与竖向的空间关系上,学生中心的建筑中轴以序列台阶和平台的组成,平台平行同时向垂直延展,贯通半通道穿廊空间,层层框景步步高升。
▲不同高层的平台与连廊组织三维的中院落
© Zhang Chao
▲台阶和平台的组成
© Zhang Chao
配合穿廊的中轴线和空间功能,建筑在不同层高安排了大小和类型不同的四个院落,配合中间二三四层的主要的平台院落,量体的南北上方的又分别发展了四个小尺度的平台与天井。这些半室内与高层的空间不但是学生活动理想的生活广场,和岭南的传统建筑一样,这些中庭院落与天井小院与更形成了横直竖向向度的开口,引导通风采光与遮荫,可选舒适温度的微气候环境。
▲天井与穿廊
© Zhang Chao
▲由红色冲孔瓦楞铝板的缝隙看天井
© Zhang Chao
在整体建筑形式上,厚实方整的建筑方体尺寸透过光线材料表现内部空间的虚实关系。正立面以轻微的弯曲转向校园中庭,呼应了图书馆对称倾斜的建筑曲面形式,共同反映了单学生中心的立面造型遵循简约内敛的原则。外墙立面以青砖表征建筑淳朴厚重的体量,同时面对中庭平台布置立面,则以轻质的冲孔网版突出与外立面形成反差对比,反映传统建筑整体材料外砖石围护与内木装修「外实内透」材料的理念。
▲室内空间概览
© Wade Zimmerman
▲天窗引入充足的自然光线
© Wade Zimmerman
内走廊的外层立面更通过酒红色冲孔瓦楞铝板的运用,满足了视觉层次的丰富造型感,同时维持走廊面的视觉穿透,以及遮阴与开敞的通风,保证了建筑的节能环保。
▲夜景©Zhang Chao
项目图纸和模型
▲模型©Ji Xiang
▲总平面图
© Wang Weijen Architecture
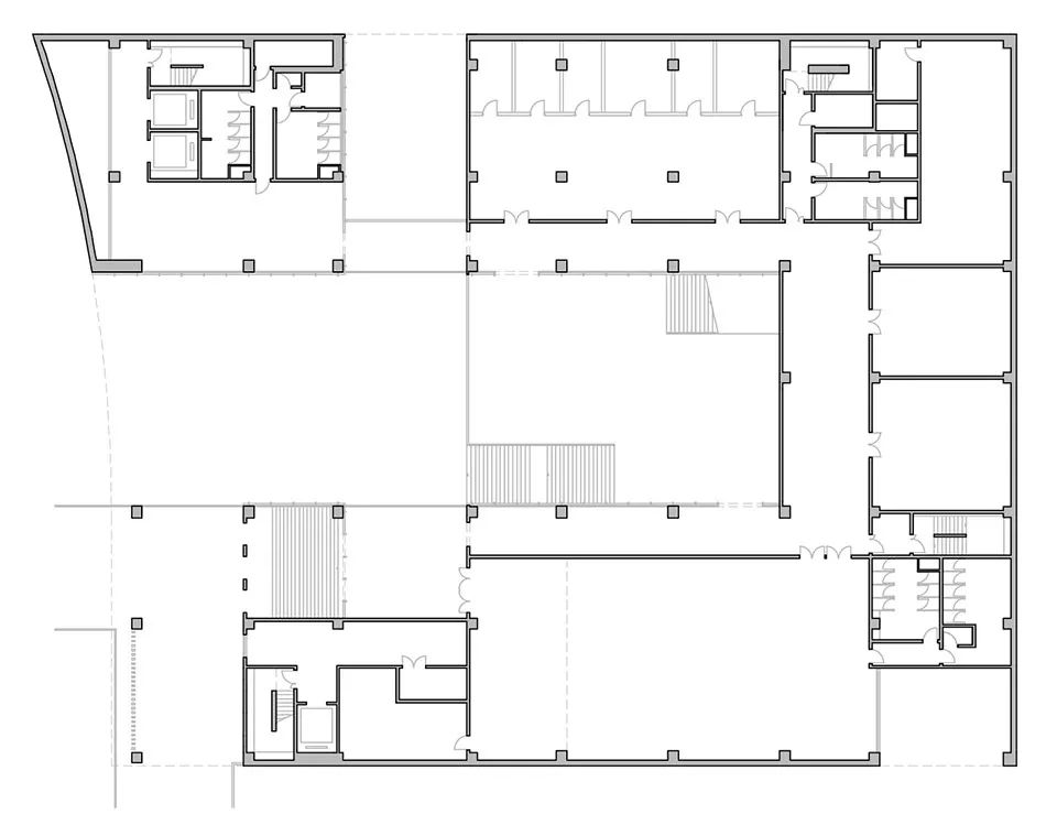
▲一层平面图
© Wang Weijen Architecture
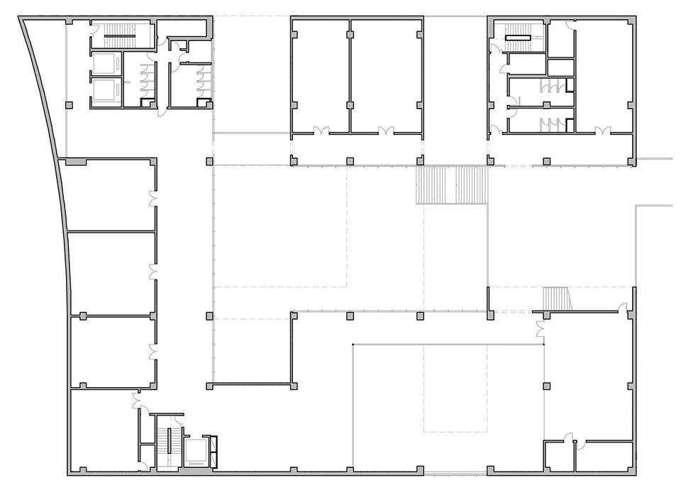
▲三层平面图
© Wang Weijen Architecture
▲五层平面图
© Wang Weijen Architecture
▲剖面图
© Wang Weijen Architecture
Principal Architect: Wang Weijen 王维仁
Project Architects: Thomas Cheng Xiao 程骁,Halley Qian Jianshi 钱健石,Xie Jing 谢菁,Feng Li 冯立,Li Shuqing 李抒青
Date: 2012-2019
客服
消息
收藏
下载
最近































