查看完整案例

收藏

下载
大楼中部打开视线通廊©姚力
感谢 gad
从位于中央商务区的选址来看,一座城市的最心脏地带通常意味着高度密集的片区开发,周边相嵌的绿地与交通系统为其勾勒出愈发清晰的边界。在面对集合了办公及商业需求的项目用地时,我们的设计更希望打破封闭园区的固化范式,以立足城市的根本,为往来匆匆的人群营造出生动亲切的界面。
▼项目鸟瞰©姚力
▼建筑外观©姚力
聚|| 植入广场的布局策略
基地在台州市椒江组团的区位着实令人兴奋。街角的方整地块与其环邻的行政文化商务区发生着密切的对话,南面川流不息的市府大道更进一步烘托了 Z 中心作为城市名片的形象定位。台州 Z 中心与对角所在的超高层中心体和购物中心,形成一道便捷的人流路径对穿基地。借由这道隐性斜轴的铺垫,L 型主楼与西侧南洋科技大厦、北侧玉兰广场住宅板楼自然围合成一座公共开放的城市广场。平面舒展地打开,将界内空间返还给城市。
▼形态生成©gad
▼人流功能分析图©gad
设计对底层商业乃至独立商业楼的充分布置,既是考虑到 CBD 从四面八方汇集的人气,具有一定的餐饮、购物等服务载体需求;另一方面也认同商业是经济势能的引擎,广场商业的成功引流亦能够带动周边业态发展,与城市脉搏共振。
▼建筑外观,街角广场引导游客进入©姚力
▼通透的底层空间汇聚人气©姚力
▼不同方向的沿街立面 ©姚力
叠|| 复合功能的竖向展开
在寸土寸金的城市轴心,用地条件显得尤为苛刻。建筑密度限定在 20%,虽是棘手的出发点,却在深化过程中将挑战转变为 Z 中心独特的标志性。基于城市行为模式的分析,底层大量运用悬挑、架空手法,为商业功能提供灰空间,昭示广场与城市的呼应关系。
▼悬挑形成底层灰空间©姚力
对于办公、商业等混杂业态,我们利用竖向空间及高度将地面容量向上转移。根据功能布局的差异性,主楼产生鲜明的体块咬接关系,同时采用色系相近的玻璃、穿孔铝板等材质,保持了整体造型语言的轻巧统一。90 米高的主体板楼沿市府大道尽量展开,跳脱于周边各色建筑,而又柔缓地纳入城市天际线。
▼主楼体块咬接 ©姚力
▼仰视咬接的体块©姚力
▼立面细部©姚力
联|提振活力的场所营造
中央公园正对项目南侧,与商务区毗邻的水景公园、市民广场和白云山构成一道连续的景观绿轴。L 型主楼的南面、东面打开了视线通廊,我们更在形体咬接的关键处设置了橱窗感的空中花园。它不仅为两个功能体块做出自然划分,且削弱了高层的体量感,从空间的垂直维度与远处景观打通联系,是相对共享的交往平台。
▼大楼中部打开视线通廊©姚力
▼不同的立面形式削弱建筑的体量感©姚力
地面花园意在通过连续性的街道界面放缓都市节奏。友好的步行尺度界定了地块内的特定领域感,户外座椅、公共雕塑等元素增强了公共空间的可停留性。建筑回应给人们的不再是冰冷的表情,而是以开敞的姿态将使用者的工作、休闲与生活融为一体。
▼底层室外空间采用友好的步行尺度©姚力
结语
Z 中心项目的地标性引自“∑”。这一符号指向主楼折板包裹的立面处理手法,以及体块切削对出入口的流向导引。它应用于数学求和,或许也包含了某种隐喻:在开发当中兼顾建筑本体与城市活力,有效激发触媒效应,从而在均衡之上实现超越。
▼夜景 ©姚力
项目图纸
▼总平面图©gad
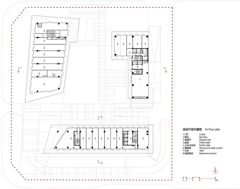
▼首层平面图©gad
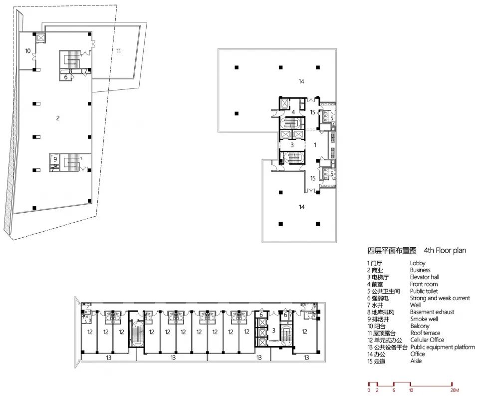
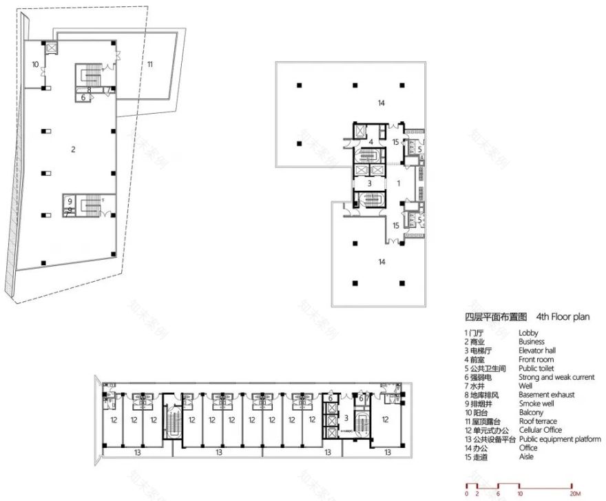
四层平面图 ©gad
▼十二层平面图 ©gad
▼立面图 ©gad
▼剖面图 ©gad
项目名称:台州 Z 中心
项目地点:浙江省,台州市,椒江区
项目类型:商业办公
设计时间:2017 年
建成时间:2020 年
项目规模:48141㎡
设计单位:gad
项目总监:张微
项目主创:张微,宋一村
建筑:张凯俭,宋一村,康鹏飞,邵俊燕,祖丰楠
结构:宋仁乾
给排水:赵晓亮
暖通:姚国财
电气:陈国平
业主:浙江景隆置业有限公司
摄影:建筑译者·姚力
客服
消息
收藏
下载
最近

































