查看完整案例

收藏

下载
开篇之前,我们先谈谈地产设计的价值。
毋庸置疑,地产公司要的是面对客户定位,区别于市场的、独一无二的产品。
设计公司在这个前提之下,实现出打动人心的生活场景,助力客户构建实实在在的产品力。
在佛山力合阳光城·云谷项目的产品开发上,阳光城地产佛山区域设计管理部与知名设计公司赫斯贝德纳(Studio HBA)、广州麦居设计戮力合作,以城市年轻人生活方式的研究开始,让建筑面积 28㎡的空间与他们的生活方式完美融合,并因此探索出一个体系的产品逻辑和解决方案,在 36㎡、52㎡的户型中,实现场景复合、型态多变的生活空间,实验性地打开了中小户型产品的新局面。
| 小户型的灵动百变|
建筑面积:28㎡
定位:思维自由而开放,注重生活意趣的年轻人
设计突破点:在极其有限的空间中设计出阅读、观影、演奏乐器、聚会等多维度生活场景
在年轻人的消费语境中,他们想要的,不是单纯在空间功能利用率上的最大化,而是基于不同审美和生活方式的偏好,能更直观地看到灵活百变的有效生活场景。
因此,在这个建面 28㎡的空间中,如何完成“麻雀虽小五脏俱全”的生活场景构设,是阳光城集团打磨产品时首先思考的问题。
空间的结构区划融贯共通,灵活、多变、复合的家具将空间打散再重组,个性化地围合出多元日常所需的场域。
入口处的桌子平时可收置于墙内,使空间视觉朗阔而动线流畅,当人需要用餐、学习、或是工作时,则可折叠展开,进退有度地完成多样化的场景需求。
在空间的休闲场域,书架的折叠、变形、移动,丰富了娱乐场景自由组合与灵活调度的可能性,而每一次重组都伴随着新的画面感浮现——闲暇午后,窝在沙发里,选择观赏电影、阅读书籍、弹奏音乐、或是伴着歌声小憩片刻......一个功能百变、有艺术个性的空间,即时满足着年轻人所探寻的生活乐趣。
不锈钢天花板有着水光潋滟、波纹微闪的美感,映衬在发光亚克力材质的大幅墙面上,配以全屋的光效脚线,镜与光、光与影美学关系变幻之间,达到视线的延伸,加强空间的纵深感和无限感,个性化的符号语言与年轻人的生活方式、审美态度在空间内融为一体。
年轻人群对于未来生活的构想从“自我”出发,因此空间的设色布局整体上以黑白为基调,加入玫瑰金、茶棕等含金属光泽的元素,搭配黄铜、玻璃、皮毛等材质细节,更显复古、低调气质,也为空间注入一丝个性不羁的气息。
休憩场域里怪趣活泼的摆件和唱片杂志等,展现出丰富的生活细节,为空间注入年轻的活力气息。
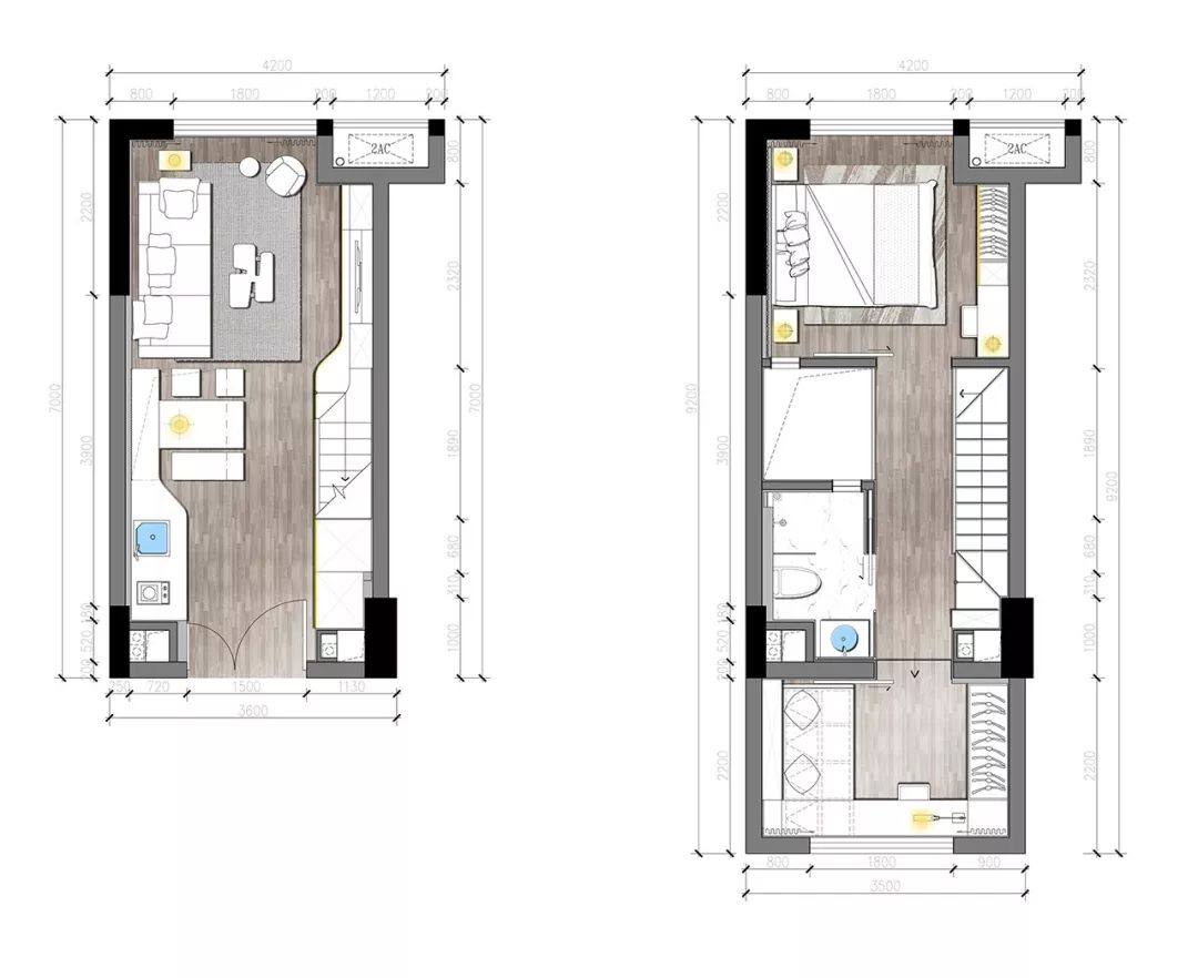
| 高拓展型动空间 |
建筑面积:52㎡
定位:爱生活,爱聚会,习惯共享的年轻人
设计突破点:在有限空间内容纳多人的玩乐与休息空间,适时地处理动与静的空间分隔
挑空两层设计的餐厅,最大程度地引入充沛的自然光,明净的光影艺术在上下两层之间构成强烈的纵深感,予人开阔明朗的视觉感受。
灰色大理石阶梯搭配皮质金属扶手,几何流线精致而时尚。
楼梯下的空间打造成小型的置物架,充盈着现代都市的日常收纳场景,秩序井然的空间布局可见一斑。
二层在研发模型中,是高拓展的工作休闲区域。
设计上运用了玻璃趟门,以不同的开启方式,或隔断、或打开活动区和休息区的动静秩序,形成既独立又共享的并存关系,灵活、开放又便捷。
伴随玻璃趟门的打开或隐匿,数种可能的动态场景变得清晰起来——阅读、交流、游戏......这里是一个独具创意的工作和生活空间,到了夜晚,当玻璃趟门围合起来,则营造出静谧的安睡环境。
空间整体设色以温暖的大地色系为主,暖白色打底,搭配卡其橙与星辰蓝,柔和又温馨。背景墙运用大理石材料,以几何分割的手法描摹肌理质感,与皮革材质的饰物形成强烈对比,构就丰富的层次和线条的秩序,用艺术的方式表达沉稳静宁的空间气韵。
时尚优雅温润有度
建筑面积:36㎡
定位:时尚优雅又富有个性的年轻人
设计突破点:生活场景预设,合理空间分配
空间大面积运用木艺材质,并适量点缀以雅润有加的木色摆件。齐整有序的木艺电视柜、错落有致的木艺屏风隔断、朴拙质感的原木矮几、藤艺单椅,看似简单的工艺与材质,均散发着清简雅澹的自然韵味。
空间涵容着当代设计的美感和深度,饱含艺术的张力与渲染力,随温润的色泽,缓缓流淌进居者心底,唤醒纯净优雅而洒脱恣意的年轻活力。
空间以藏光、间接光源的形式丰盈视觉美感,半空中的书页水晶吊灯让光线自由散落,不设限的光影层次勾勒出流畅的空间线条。
二层空间从固化的常规墙体中抽离出来,大量运用透光玻璃,予人轻盈灵动的视觉观感,折射着现代时尚的优雅格调。
生活的灵感迸发于细节之中,书房一隅的层叠书籍、木艺古建小模型、雪白瓷瓶等陈设品,展现了优雅随性的生活风格。
静坐此间,闲时读书品茶,忙时埋首工作,生活与工作各不耽误。
地产产品设计,事实上不仅仅研究客户的“现状”和迎合需求,而是根据客户的生命周期或生活方式,推敲客户更深层次的的“需求”,为客户创造具有想象力的未来生活场景。
阳光城集团对年轻一代的城市生活梦想的探索与研究,深入触及了审美趋向和生活方式大相径庭的三类年轻人。
在品质与价值的驱动下,其为本案三个小户型的空间产品打造了不同的生活场景,以小尺度空间的百变型态,为空间注入鲜活的灵魂,适配新一代年轻人群的多元生活主张,无限趋近他们心目中理想生活的美好模样。
项目名称 | 力合阳光城·云谷
项目地址 | 广东 佛山
业主单位 | 阳光城地产佛山区域
团队 |设计管理部
硬装设计 | Studio HBA |赫斯贝德纳室内设计(上海)软装设计 |广州麦居室内装饰设计
点击链接查看相关阅读
1400㎡新中式:风华再现,万绿烟云
现代轻奢,要的就是这个格调
1100㎡新中式:写一纸墨香,倾一世芳华
微风吹淡的蓝,相思“云想衣裳花想容”1200m²售楼处:水墨雅韵,写意冰城
简约新中式,时尚与传统并存的美好
美学生活接待中心:隐喻东方,自在尔雅
最新游学活动
点击上方图片,可了解行程介绍
客服
消息
收藏
下载
最近






































