查看完整案例

收藏

下载
湖畔一侧夜景© Tom Harris
感谢Studio Gang
为了提高学生的体验,帮助复兴当地的滨河地区,贝洛伊特学院与 Gang 工作室合作,将一个旧燃煤电厂改造为一个以娱乐和健康为主题的学生联盟中心。项目坐落于洛克河沿岸,毗邻学院校园,靠近贝洛伊特市中心。除了对 1908-1947 年间的黑鹰发电站历史建筑群进行改造外,项目还包括一座新建的学生体育馆。
▼项目周边环境鸟瞰© Tom Harris
▼项目湖畔一侧鸟瞰© Tom Harris
对于建筑师而言,合理地改造这栋拥有百年历史建筑是一项艰巨的挑战,尤其是在有效利用能源方面。历史建筑的部分新增了墙体隔热层,营造出舒适的室内环境。而体育馆的外立面则采用更为先进的隔热材料——聚碳酸酯,同时,半透明的聚碳酸酯材料也将自然光线引入室内,营造出全天候的柔和光环境。此外,项目还采用了辐射板恒温系统,利用来自罗克河的天然能源来满足大部分厂房的供暖与制冷需求。这种设置在提高建筑内部舒适度,保持最高的空气质量的同时,也最大限度地减少总能源消耗。
▼体育馆鸟瞰© Tom Harris
▼项目外观细部© Tom Harris
设计保留了原有结构、建筑特色以及工业设备,同时融合了一系列全新的可持续实践活动空间与聚会空间,旨在鼓励学生之间的相互交流与互动,使学生更好的的融入整个贝洛伊特社区。
▼分析图© Studio Gang
一条悬浮的三道跑道贯穿了建筑的所有部分,成为视觉焦点,增加了空间趣味性。项目内功能丰富,活动空间充足,包括:健身中心、娱乐健身房,八泳道竞技游泳池,室内人造草坪运动场,以及一系列用于讨论、合作的学习空间。其他设施包括咖啡厅、学生休息室、俱乐部房间、会议中心以及一个 164 座位的礼堂。
▼一条悬浮的三道跑道贯穿了建筑的所有部分© Tom Harris
▼跑道成为视觉焦点,增加了空间趣味性© Tom Harris
▼跑道上侧 © Tom Harris
▼楼梯间内阳光充足© Tom Harris
▼游泳池© Tom Harris
▼室内人造草坪运动场© Tom Harris
全新的人行天桥与公共电梯将坐落在山上的贝洛伊特学院、发电站厂房、河边小路以及河畔公园连接起来,改造后的发电站使城市、校园与河流之间产生对话,为当地社区带来了更多的活力与生机。
▼湖畔一侧夜景© Tom Harris
▼全新的人行天桥与公共电梯将项目与城市连接起来© Tom Harris
▼体育馆夜景© Tom Harris
项目图纸
▼区位图© Studio Gang
▼首层平面图© Studio Gang
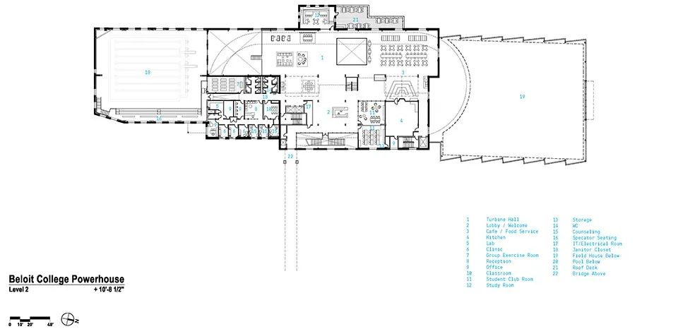
▼二层平面图© Studio Gang
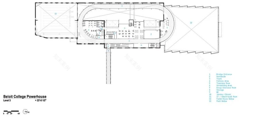
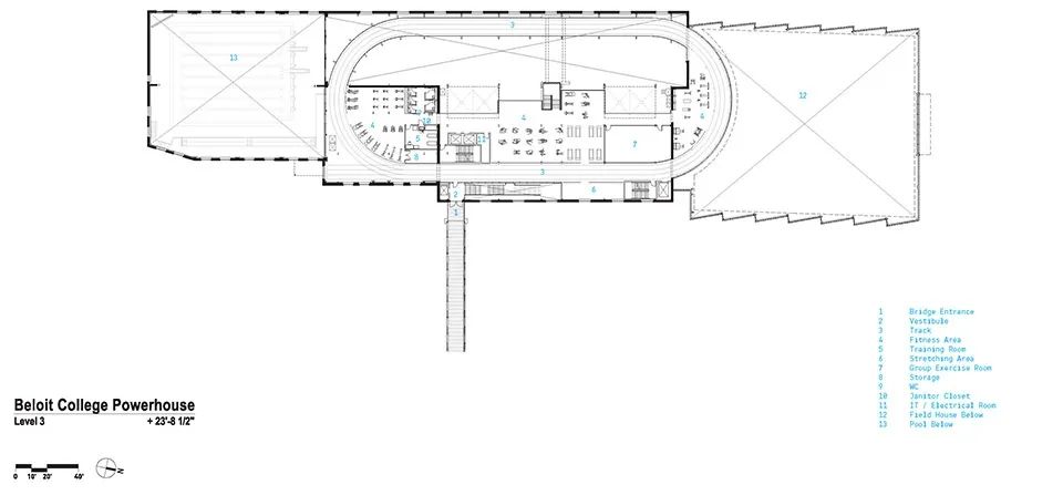
▼三层平面图© Studio Gang
▼四层平面图© Studio Gang
▼剖面分析图© Studio Gang
Beloit College Powerhouse
Location:Beloit,, WI
Status:Built, 2020
Client:Beloitt College
Type:EducationalSize:120,,000 sf
Sustainability:Targetingg LEED Silver
Consultant Team:Angus Young Associates, associate architect, electrical engineer, plumbing engineer, fire protection engineer, structural engineer, LEED consultant, commissioning consultant
R.H. Batterman & Co., civil engineer
dbHMS, lighting and mechanical/environmental engineer
Applied Ecological Services, landscape architect
Threshold, acoustics and A/V consultant
3st/
Span, signage, wayfinding consultant Ramaker & Associates, pool consultant Hastings+Chivetta Architects, athletic & recreation design consultant True North Consulting Group, IT consultant Dharam, cost consultant.
客服
消息
收藏
下载
最近























