查看完整案例

收藏

下载
屋顶降下时的漂浮教堂 ©Gilbert McCarragher
感谢Denizen Works
伦敦主教教区通过 Genesis 实现了其发展圣哥伦巴社区的愿景:Genesis 是一艘宽梁运河船,并带有一个伸缩的屋顶。Genesis 由伦敦建筑事务所 Denizen Works 担任设计,它被构想为一个可移动的集会空间,停泊在伊丽莎白女王奥林匹克公园 Here East 创意区旁边的 Lee Navigation 河岸。在前往其他运河沿岸的社区之前,它将在这里停留 3-5 年的时间。
▼Genesis 被构想为一个可移动的集会空间,停泊在 Lee Navigation 河岸©Gilbert McCarragher
Genesis 是在与 Turks Shipyard 造船厂和造船工程师 Tony Tucker 的密切合作下开发并建造的,它肩负着将东伦敦运河周围不断发展的社区相互连接起来的现代使命。船只的流动性和灵活性能够保证其为关键性的重建场地(包括 Sweetwater、Eastwick 和 Hackney Wick)带来长期的积极影响。除了作为交通空间外,驳船的内部空间也经过了特别设计,以容纳广泛的社区活动和服务,包括亲子活动、普拉提课和艺术课、不同宗教的庆祝活动、午餐和晚餐俱乐部、音乐表演、员工培训、工作坊和咨询会等。
▼场地平面图 ©Denizen Works
▼船只的流动性和灵活性能够保证其为周围社区带来长期的积极影响©Gilbert McCarragher
Genesis 以《圣经》第一卷为名,暗含了有关创世纪的讲述。这艘驳船首先服务于 Stepney 主教区内的两个现有教区 St Paul Old Ford 和 St Mary of Eton,并将在未来接触到其他新的社区,并逐步促进伦敦主教教区内其他教区之间的连接。新兴的东圣哥伦巴区(St Columba East)将由 2019 年 6 月上任的 Dave Pilkington 主教领导——他曾经于 Genesis 的前身“Elsdale II”临时船只上服务。
▼船内空间 ©Gilbert McCarragher
Denizen Works 提出的创新方案以风琴的风箱为灵感,为驳船赋予了一个富有动感的屋顶。该屋顶由半透明的帆布构成,沿边缘安装了 LED 灯,并由液压油缸驱动。在屋顶降下时,驳船得以凭借小巧的身姿从桥梁下方通过;而在屋顶完全抬起时,又充盈为一座明亮的灯塔,吸引着人们观察和走近。通过触摸按钮,屋顶最多能够上升至 3.6 米的高度,创造出一个向所有人开放的、富有戏剧性的内部环境。
▼屋顶设计以风琴的风箱为灵感©Gilbert McCarragher
▼从室内看屋顶边缘©Gilbert McCarragher
▼抬起的屋顶和结构细部©Gilbert McCarragher
▼屋顶在完全抬起时,驳船变成一座明亮的灯塔©Gilbert McCarragher
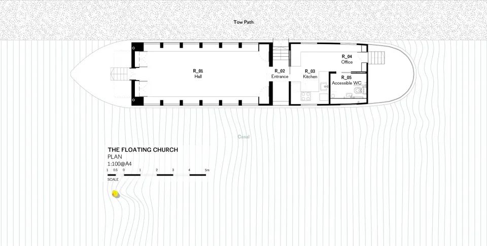
上船处设置在船的中部,靠船尾的一侧是厨房、办公室和洗手间等服务设施;另一侧是主集会空间,轻质胶合板墙和绿色油毡地面带来优雅和平滑无缝的感觉,在可动态的屋顶下形成一个可供 40 人就座的宽阔集会场地(船静止时可容纳 60 名乘客)。
▼平面图©Denizen Works
▼从入口望向主集会空间©Gilbert McCarragher
▼主集会空间©Gilbert McCarragher
▼轻质胶合板墙和绿色油毡地面带来优雅和平滑无缝的感觉©Gilbert McCarragher
▼灵活的场景布置©Gilbert McCarragher
墙壁边缘设有固定式的 Valchromat 长椅,同时结合了储物的功能。航海风格的舱壁灯营造出舒适温馨的氛围。家具由当地公司 Plyco 设计,包括定制的胶合板坐凳和可折叠桌子,可用于公共活动和服务。Denizen Works 还特别为教堂设计了圣坛,其多面的形状与船头相呼应,独特的装配式设计使其可以折叠为一个扁平的结构,非常便于存放。
▼墙壁边缘的长椅结合了储物的功能©Gilbert McCarragher
▼航海风格的舱壁灯©Gilbert McCarragher
▼圣坛©Gilbert McCarragher
用于缝合帆布的针脚图案被作为一个主题应用到整个设计当中,并体现于室内空间的诸多细节,包括窗户的铝制纱窗、厨房的瓷砖图案以及定制家具的腿部结构等。除此之外,这一主题也出现在船的外部:当地的标识制作者将这一图案画在了屋顶的表面。
▼用于缝合帆布的针脚图案被作为一个主题应用到整个设计当中©Gilbert McCarragher
▼室内细节©Gilbert McCarragher
针脚图案也被绘制在屋顶外部©Gilbert McCarragher
Genesis 的灵活设计使其既能容纳不同类型的活动,又能供私人或当地学校使用,从而凭借自给自足的特征来更好地为社区服务。
DenizenWorks 主创建筑师 MurrayKerr 表示:“该项目展示了我们在实践中最擅长的部分:集众家之所长,打造富有创意和乐趣的设计解决方案。作为一个多用途的宗教性社区项目,Genesis 将成为我们思考的第一步,即如何持续地为不断发展并脱离传统区域和建筑类型的社区提供服务。最为重要的是,该项目还向我们展示了在紧密的合作下,勇于突破的客户、激动人心的设计任务和充满雄心壮志的设计团队能够取得怎样的成就。”▼屋顶降下时的漂浮教堂 ©GilbertMcCarragher
伦敦主教萨拉·穆拉利夫人表示:“Genesis 的交付标志着实现伦敦东部社区振兴和创造性发展的 4 年伟大计划的完成。而 Genesis 的旅程才刚刚开始,以伊丽莎白女王奥林匹克为起点,它将在未来的几年中沿着东伦敦的运河移动,在这座多元且多变的城市中为充满活力的宗教发展起到积极的促进作用。”
▼河岸近景©Gilbert McCarragher
Dave Pilkington 主教表示:“Genesis 所处的 Lee Navigation 河岸地区正处于绝佳的发展时期,在 Hackney Wick 和 Fish Island 承担了一系列变化的情况下,我们必须不断寻求帮助建立社区的方法。因此,能够向人们宣布东圣哥伦巴区不断壮大的事实,我感到无比的喜悦。随着 Genesis 项目的落成,如今我们拥有了一个能够为我们的行动、反省和沉思提供支持的场所,这使我们得以继续期待下一个阶段的发展。在项目交付之后,我们将在其正式开放之前做好必要的风险管理和保护措施。我们将以谨慎负责的态度来完成这项工作。
▼夜晚的漂浮教堂©Gilbert McCarragher
项目图纸
▼纵剖面图(屋顶开启)©Denizen Works
▼纵剖面图(屋顶关闭)©Denizen Works
▼横剖面图©Denizen Works
▼工程图©Denizen Works
Location: Here East, Queen Elizabeth Olympic Park, Stratford, London E15 2GW
Area: 45m2
Measurements: 8.5m length, 3.6m height (when kinetic roof is raised)Construction Cost: £650,000
Client: Diocese of London
Architect: Denizen Works
Naval architect: Tucker Designs
Boatbuilder: Turks Shipyard
Sailmakers: JeckellsFurniture: Plyco
Interior fit-out: ANR Developments
Photography: ©Gilbert McCarragher
客服
消息
收藏
下载
最近































