查看完整案例

收藏

下载
主题作品展示区 局部感谢李兴钢建筑工作室李兴钢工作室办公空间于 2019 年初由北京车公庄大街十九号院的 2 号楼 7 层迁入新落成的创新楼 11 层。在这个城市深处大院写字楼内的日常工作空间中,借用家具、展架、展板、大比例模型及室外建筑小品等,建筑师对办公空间进行“微改造”,形成了一组既能适应常态化办公需求,又能满足展览和休憩要求的室内外空间,以实地和日常的方式,呈现出一个中国当代建筑师的思考和工作场景,即“胜景几何——一个中国当代建筑师的工作现场”展。
▼视频
▼从文兴西街看 19 号院创新楼
十九号院创新楼是一栋 14 层的建筑,为退让出场地西北侧一栋住宅楼的日照通道,整个建筑形体由矩形沿对角线被逐渐削减为直角三角形,并在体量东南侧形成了由低至高层层叠退的屋顶平台,如同一座几何化的人工山体。
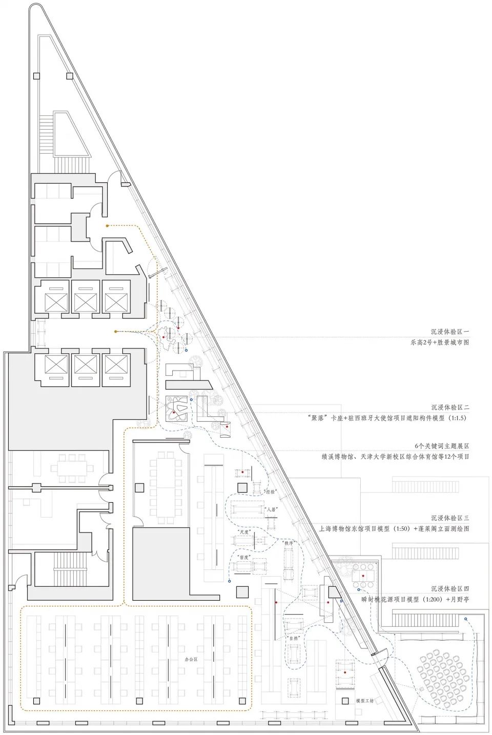
工作室所在的建筑 11 层刚好位于退台体量的最高层,室内平面呈一个由南至北逐渐收窄的梯形,东南角是一大一小两个相连通的室外屋顶平台。
▼号院创新楼北侧
▼工作模型照片
▼工作室布局轴测图©李兴钢建筑工作室
▼工作室布局平面图©李兴钢建筑工作室
位于入口门厅的沉浸式体验区一由乐高 2 号(2008 年完成)和 6 张竖向转屏拼成的“胜景城市图”(2020 年完成)组成。微小与宏大、立体构成与平面图景,共同形成了入口对景。转屏背面亦可作为日常钉图板使用,根据不同需求旋转形成不同空间。
▼沉浸式体验区
▼乐高 2 号与“胜景城市图”
▼沉浸式体验区二
▼沉浸式体验区二 局部
沉浸式体验区三重点展示了工作室近年的上海博物馆东馆竞赛项目(2017 年设计)。1:50 的局部剖切素白模型如同空间中的庞然“异物”,又巧借条凳形成了一个独处冥想的半围合空间。通过模型上的洞口,遥见对面徐徐展开的蓬莱阁立面测绘图(李兴钢 1989 年绘制),二者共同提示着对人工与自然所构成的理想世界的追索。
▼沉浸式体验区三
▼沉浸式体验区三 局部
▼主题作品展示区
▼主题作品展示区 局部
▼主题作品展示区
▼展架系统
位于平面东南角模型工坊附近的沉浸式体验区四则围绕着“瞬时桃花源”项目(2015 年完成)和室外屋顶平台展开。平台北端以月形展架梁转换为柱搭起一座小亭,兼作出入平台的雨篷,轻盈地从建筑东立面的“人工山体崖壁”上探向城市,如同被月形柱拉住的一只轻盈的风筝,名“月野亭”(2020 年完成)。
夜幕降临,忙碌后的建筑师们围坐在亭下小憩,包容着千年历史沧桑发展的北京城尽收眼底,正是一幅“都市胜景”。
▼沉浸体验区四 室内部分
▼沉浸体验区四 室外平台
以“聚落”卡座(2015 年完成)的基本形式语言构建的几组木制家具不断出现在几个体验区中,提示了一系列身体行为:在体验区一中,“漂浮”的前台既是木制书柜在空间中的延续,也是极小尺度(乐高 2 号)与极大尺度(“胜景城市图”)之间的一种调和(身体尺度);在体验区二中,新旧两组木制家具形成了更完整的围合,也为憩坐提供了更丰富的可能性(卡座、长椅、条凳、吧台等);在体验区三中,抽象的模型(上海博物馆东馆项目的大尺度模型)与具象的家具(木制靠椅和吧台)及植物共同作为空间要素,围合出一个半私密的“内室”。
▼体验区一 前台
▼体验区二 新旧木质家具
体验区三 半私密的“内室”
钢制展架成为空间中另一个重要线索。16mm 的纤细方钢管构成的竖向排架在空间中构成一层抽象网格,月形钢片梁横向拉结了排架,并赋予展架以识别性。月形梁可根据模型尺寸灵活更改架设宽度,从而使传统展架的置物板得以取消,模型在空间中“漂浮”起来。位于展览流线上的展架底端,方钢管被替换为薄钢板以保障行进安全,这一类展架倒置之后恰好可以用作室外咖啡桌。屋顶平台上的月野亭如同一个横置的展架,以 3 根放大的月梁作柱,在城市上空勾勒出纤盈却又肯定的线条。
▼展架、咖啡桌系统图 & 钢制展架
▼月野亭下& 月野亭系统图
▼施工过程
以布展的方式对日常工作空间进行干预和改造,既是对李兴钢工作室“胜景几何”理念思考和设计作品的集中呈现,也是对当代中国建筑师工作现场的真实展现,是一个可以不断变化、不会闭幕的展览。这些已实现或未实现的作品原本散布在自然和城市中,又彷佛在这里构成了另一个历时性的“虚拟”微型城市,片段式地记载着建筑师为之服务的当代城市如何从过去走到现在,又将可能怎样步入未来。
▼工作模型照片
▼工作模型照片
展讯++ 书讯:“胜景几何:一个中国当代建筑师的工作现场”展览将于 2020 年 9 月 16 日下午正式开幕,届时新书《行者图语》《胜景几何论稿》《李兴钢 2001-2020》将同步发布。配合展览开幕及新书发布而举办的“观想做:中国建筑师工作法的传承与实验”学术沙龙将于 2020 年 9 月 26 日下午举办。
展览及学术沙龙举办地点:北京市西城区车公庄大街 19 号中国建筑设计研究院创新楼 11 层李兴钢建筑工作室。
▼开幕式及论坛海报
项目名称:李兴钢建筑工作室空间微改造暨“胜景几何”展展陈设计
建筑事务所:李兴钢建筑工作室
主创建筑师:李兴钢、姜汶林、袁智敏、侯新觉、邓建祥、孔祥惠
项目详细地址:北京
项目完成年份:2020 年
改造面积(平方米):500 平方米
摄影师:侯新觉、郭文嘉、袁智敏
设计团队:李兴钢、姜汶林、袁智敏、侯新觉、邓建祥、孔祥惠
结构顾问:董越
施工顾问:颜建明
制作厂家:北京博时文仪家具有限公司
施工单位:中科建建设发展有限公司
视频:视频拍摄:张玉婷、袁智敏
视频剪辑:孔祥惠
视频音乐:《Alone in Kyoto》- Air
模型制作:邓建祥、李兴钢工作室团队、中央美术学院建筑学院模型制作团体。
客服
消息
收藏
下载
最近





























