查看完整案例

收藏

下载
榭酒吧©刘鹰感谢
大器空间
“建筑师通过使一些形式有序化,实现一种秩序,这秩序是他精神的纯创造;他用这些形式强烈的影响我们的意识,诱发造型的激情;他以他创造的协调,在我们心里唤起深刻的共鸣,这时我们感受到了美。—— 勒·柯布西耶”▼项目概览 ©刘鹰
以一个简单的几何形状来构建空间秩序,用最简单的方法去解决复杂的问题。
▼版画式设计理念表达:趣味 FUN+想象 IMAGINATION©大器空间
QI STUDIO 是大器设计师的一个创作空间。原建筑本身,是上世纪九十年代伊始,一个不是有太多历史印迹的传统印刷工厂。主体外围往往搭建大量的搭棚,用来增大仓储,制作等使用空间。外立面是沾满粉尘的土黄,与渗入泥土的油墨味道,构成了尚在市区内,典型的江南小工厂。
▼建筑外观©刘鹰
“我想把它用途转变,做成一个更加符合该城市地段,满足当代办公创作需求的空间。空间的大量‘放松’,能让空间内的人,在繁复的城市工作中,给予精神上的释放,思想更加自由的游走。创作者们在这里寻找彼此,想象自由的在这里混合,碰撞,激发。我们希望,这样的空间设计在这个江南城市变迁中,能带来一些典型并且有意义的参考。” —— 大器如是说。
▼室内空间的系列版画 (印象立面+第五立面|| 实体空间+动态想象|| 黑白+光影)©大器空间
建筑结构并没有太多的改造,但空间形象与感受确是彻底的变化。办公空间主要分布在 L 形建筑的两个楼层,专门为员工及客户设置了生活艺术展厅,VIP 洽谈室,酒吧区,健身房,多功能会议室,多功能餐厅,休闲娱乐空间。此外,在建筑的顶层还建造了一个屋顶花园,设计师在这里体验“城市农夫”的快乐,为员工创造了强烈的归属感,将“工作场所”转变成舒适的“生活空间”。
▼主入口:邀请光来做客,平衡黑白,恣意于这片纯粹©刘鹰
▼榭(酒吧)©刘鹰
▼室内细节©刘鹰
▼榭酒吧
落地玻璃窗将建筑物周边大片绿化景观充分引入室内 ©刘鹰
▼皮椅细节
©刘鹰
用建筑的语言设计空间和明暗、线面对话。MR.BEAR 用作空间装饰,跳跃的红色给整个空间带来一份趣味与悸动。
▼过道©刘鹰
▼大器自创家具系列之一“RED KISS”©刘鹰
办公空间
黑白调的纯粹办公区域开敞且无距离感。
在这次设计中,办公空间打破了传统意义上的封闭式秩序感,创造一个自由办公的环境,设计师都在肉眼可见的范围内,彼此沟通,共享资源,整个工作区域都为开放式的无遮挡状态,所有的行为规范及秩序性都在大家的自我约束中产生,构成积极化的工作环境。二层吊顶的设计巧妙地隐藏了空调、排水管、电线等走线,利用原结构表现出结构的秩序。
▼走廊&办公区域 ©刘鹰
▼办公区域©刘鹰
会议室©刘鹰
生活艺术展厅©刘鹰
▼展厅细节©刘鹰
▼材料间©刘鹰
VIP 接待室©刘鹰
禾器园:设计师在这里体验“城市农夫”的快乐©刘鹰
▼建筑外立面©刘鹰
▼壁画©大器空间
▼DAQI 自创系列 LOGO©大器空间
▼建筑生成图©大器空间
▼剖面图透视图©大器空间
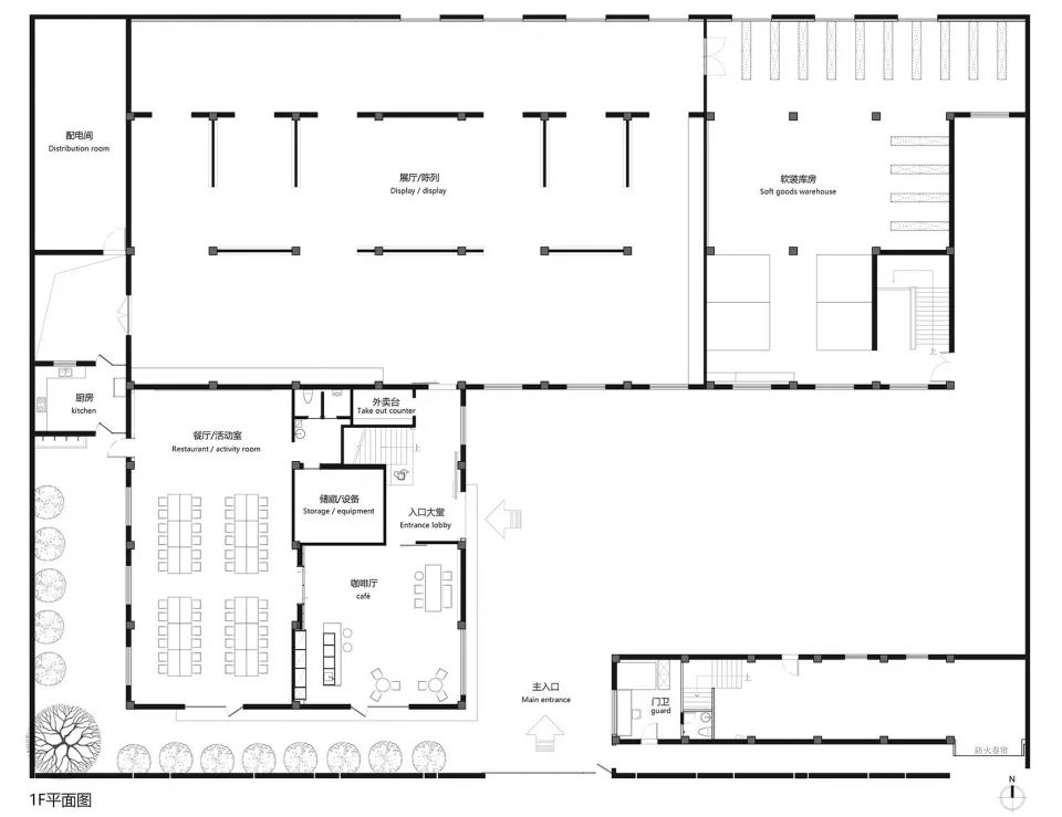
▼1 层平面图©大器空间
▼2 层平面图©大器空间
项目名称 | QI STUDIO | 白墙之下
项目地址 | 宁波
项目面积 | 2000㎡
设计公司 | 大器空间
室内摄影 | 刘鹰
主要材料 | 质感涂料 水磨石砖 木饰面
客服
消息
收藏
下载
最近











































