查看完整案例


收藏

下载
这套40㎡的老破小是屋主买的学区房,夫妻双方各自有独立事业,因此平时外婆常住,照顾正在上幼儿园的宝宝。
设计师通过精确的细节把控,将多功能组合叠加,一室改两室,在有限面积内重新定义舒适开阔的二居布局。
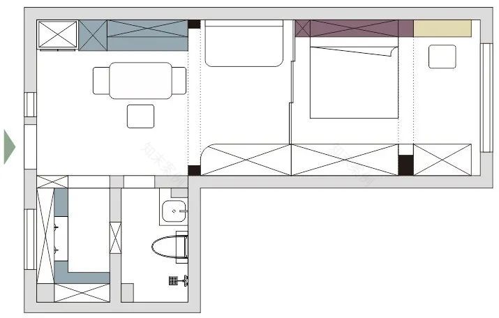
▲原始户型图
存在缺陷&屋主需求:1、墙体基本为承重结构,拆改变动空间很有限;
2、主要功能区面积狭小,采光不足,使用和居住都没有太舒适;
3、房子的旧布局动线并不适应当下的生活方式和需求;
4、需要一室改两室;
5、喜欢带色彩的空间,细节主义,追求生活品质。
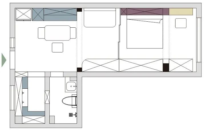
▲平面布局图
设计策略:1、开放式餐区结合客厅,空间利用率大大提升;
2、去掉阳台移门,引光入室,视野开阔;
3、拆除原本卧室的墙体,分隔客厅增加隔音玻璃移门,从而增加了客卧空间;
4、利用客厅一房多用,完美实现了二居室两代人的生活需求。
改造前
左右滑动查看更多
一起来看看改造后的样子吧!
餐厅的总宽度只有3米,为了给左侧留出更大的活动过道,餐厅右侧选择卡座+立柜,既有收纳又有座位空间,完美协调美观和实用性。
▲隐形门后是卫生间和厨房
不大的空间,两扇隐形门随意开合,关上就能变投影墙,灵活使用。
为四口之家准备的双门冰箱,完美嵌入柜体,弱化存在感,小房子不将就。
餐桌我们选用可伸缩的款式,两个人住不占空间,打开又能满足多人用餐需求,对小户型很友好。
高级的灰蓝色搭配极简橱柜,和谐的材质与暗含秩序的造型线条,品质感悦然而升。
客厅和餐厅的交接处用两种色块区分,界定不同的使用功能,撞色设计使视觉更加舒适。
▲客厅可变小卧室
客厅和卧室选用隔音玻璃移门+纱帘隔断,沙发可以展开变成一米五的沙发床,到晚上可独立变成小卧室。
大面积米色和紫灰色自然分割空间,视觉随客厅到主卧延伸,形成有主有次的空间递进。
沙发对面是严丝合缝的超长定制衣柜,完善的收纳系统,保证入住后,空间依然整洁有序。
▲一圈灯带,增加悬浮感
完善的灯光系统是卧房的必备设计,床头阅读灯+柔和灯带的组合,既有氛围感,又非常实用。
床两侧都设计了开关,无论是夜读还是起夜、晨起,随手就能打开。
隐藏式的床头灯作为补充光源,小巧隐形又能提供足够的光亮。
▲开放柜格取代床头柜
紫色的烤漆床头立柜实用性很好,也不会感觉压抑,造型质感高级、简洁而优雅。床侧的开放格代替床头柜的功能,放书、放手机都很方便。
将卧室和阳台原移门打通,柔和过渡不同功能区,同时引入充足的自然光线,视觉上通透舒适。
紫色、奶油色、几何纹理组合,整体搭配和谐,优雅宁静。
▲家政区
另一侧设置洗衣区,延续了客厅和卧室的白色橱柜,保证空间的一致性。
卫生间以白色为主,黑色的五金作为点缀,白色在视觉上放大空间,不显拥挤。
在极小的空间,用具有纹理的小砖来满足设计感最适合不过了,不同的纹理、亚光质感的小砖不规则排列,简约且高级。
一组对比图
▲餐厅
▲卧室
▲厨房
▲卫生间
设计机构:波形设计
文章来源:家的要素 jiayaosu
客服
消息
收藏
下载
最近






























