查看完整案例

收藏

下载
"城中城"(Town In Town)距离曼谷市中心约 15 公里,是位于 Sriwara 路上的一个著名商业区,周围分布着众多社区和公司。该项目的业主是几位年轻的创业者,他们选择了一座建造于 2014 年的四层高的半独立建筑,希望将其改造为能够适应当下需求的办公场所。▼建筑外观
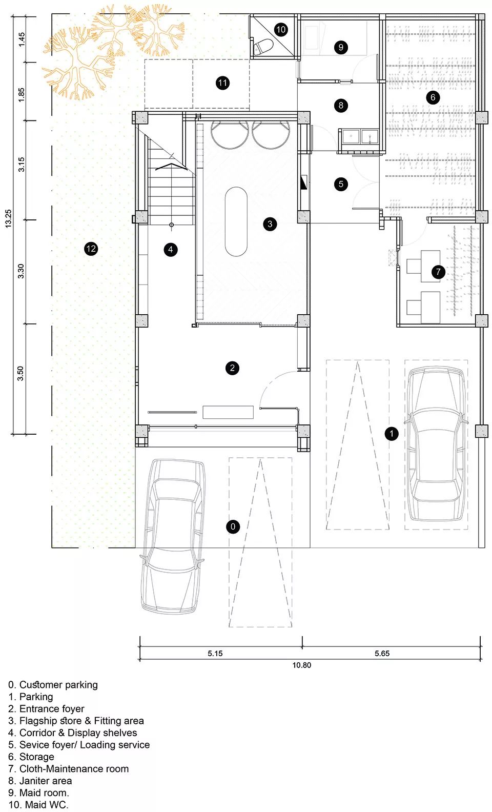
一层空间的布局根据停车场的数量进行了调整。横梁下方的空间净高约 2.5 米,只能用作接待空间和商店。因此设计师在这里设置了贯穿 4 个楼层的悬挂金属格栅,而非平坦的天花板。等候区位于化妆品旗舰店前方,同时用作退货和提取区。产品沿着走廊陈列,楼梯尽头的大门通向半露天的金属楼梯,将人们引向上方的楼层。▼入口空间
▼首层楼梯
▼化妆品旗舰店
▼从楼梯间望向一二层
二层展示区
▼贯穿 4 个楼层的悬挂金属格栅
总监办公室
“L”字型的服务区位于建筑后方,员工们可以在这里散步。同样位于建筑后部的防火楼梯经过了重新设计,使自然光得以通过。原先的楼梯被拆除,使顾客们可以围绕着服装店行走。原先的两个洗手间被隐藏进一个化妆室中。▼轴测示意图
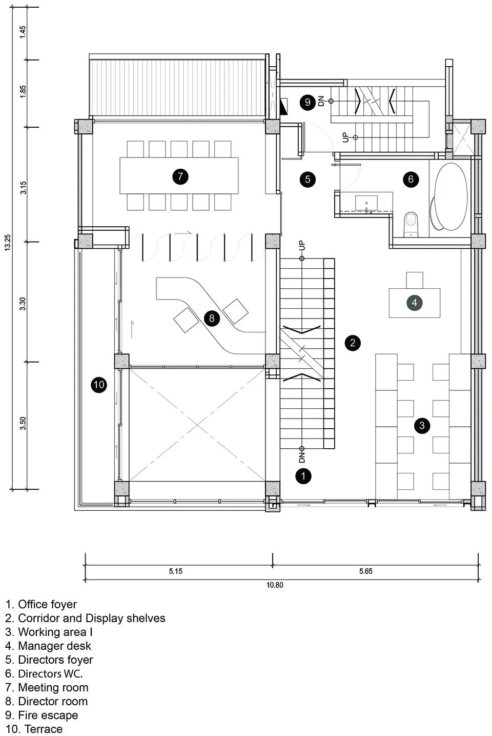
在建筑中央,纤细的框架支撑着主楼梯,增强了整个建筑的特征。在另一侧,白色的金属置物架同时具备了陈列产品和承载楼梯的作用。三层的楼板被部分移除,为下方的陈列室留出吊顶空间。中庭旁边的创始人办公室在打开门时可以直接与后方的会议室相连。悬挂在天花板上的荧光灯为工作区域提供了照明。▼纤细的框架支撑着主楼梯
▼栅格和置物架细部
四层空间的后方设有茶水间、储存室和两个淋浴间。其他部分在平时被用作酒吧和办公室,员工们可以在工作期间随意地使用任何空间。此外,天花板的下方还设有一张可供小憩的床。▼四层空间
▼茶水间
▼金属置物架
▼入口夜间外观
项目图纸
▼轴测图示意
▼一层平面图
二层平面图
▼三层平面图
四层平面图
Project Year: 2017Project finished: 2019
Project name : The Renovation of Sriwara office
Category: Office, Showroom and shop Interior Renovation
Client: Bchu runway
Design Director: Supanna Chanpensri
Interior project: Viphada Simthamnimit
Design Team : Supanna Chanpensri, Wattikon Kosonkit, Gultida Maneewong, Aphinat Jongphianmungmat, Pompetch
Lighting design team : Supanna Chanpensri with Truelight CO.,Ltd
Contractor: WAWARA design
Project location: The District Sriwara, Bangkokhttps://goo.gl/maps/5YTmrCaDgeKxqrXy5
Area: 490 Sqm
Photographer: Ketsiree Wongwan
版权
▼ 网站最新 24 小时精彩项目集锦
客服
消息
收藏
下载
最近






























