查看完整案例


收藏

下载
洁净色调中牵引出层次
安静的自然色彩和独特的质感
一种新的空间力量得以重生
Pull out the layers in clean tones
Quiet natural color and unique texture
A new space power has been reborn
设计师/高成
Designer/ Gao Cheng
项目地址 / 萧山周宅
Location / XIaoshan Zhouzhai
设计时间 / 2020 年 6 月
Design time / June2020
01LivingRoom
本案是一套 800 方的别墅设计,现代自然主义手法简单的几何形状,无主灯设计,以简单到极致为追求简洁有力的线条结构,与生俱来的线性美感散发出空间独特的气质。
天然的材质,清晰的几何轮廓
富有质感的空间,细节精致考究,体现着绅士的品格
从威士忌到真皮沙发,从生活的细节上展现优雅格调
赋予质感更美好的诠释和更深层的意义
02Bedroom
简约不等于简单
不需要多余的空间隔断
也不用过多的饰品去“庇护”它凝结着设计师的独具匠心
03Bedroom
自由和灵活的构图,舒适的极简主义原木以它百搭、温润的气质在空间中呈现没有特别鲜艳的颜色,但有着大地的色调,温暖的木质纹理 04
Bedroom
剔除一切繁琐的设计元素
用直白的装饰语言体现空间和家具所营造的氛围
赋予空间以高贵和个性
05TOILET
双台盆设计极简线条同时也加入了木质元素稀释大理石和白墙带来的冰冷让卫浴空间不再只是短暂停留之地更是心灵休憩之所
Original Structure
(向左滑动)
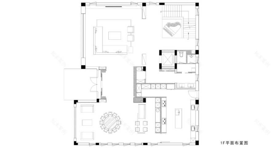
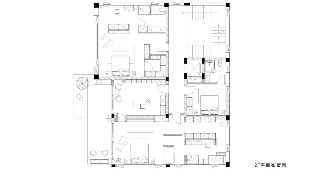
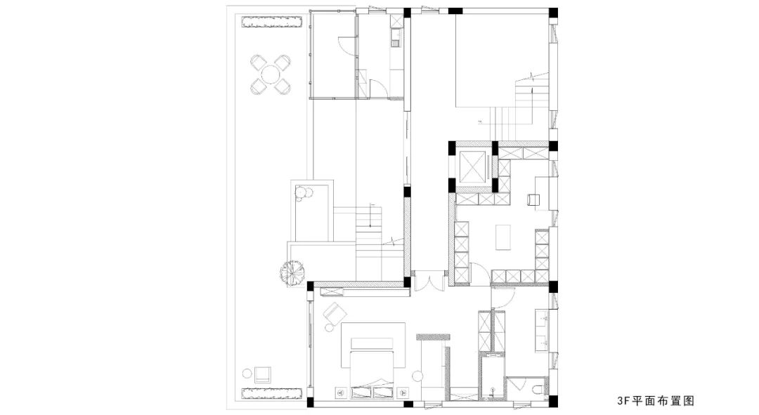
Layout Plan
设计师简介/Designer Profile
高成室内设计师辰佑设计合伙人设计理念:我们尝试打破私宅空间常规的表现形态,通过对结构的梳理和调整使空间的视觉表现上更具丰富性荣获奖项及专访:杭州电视台【爱上家居】栏目专访央视 CCTV2【交换空间·空间榜样】栏目专访荣获 2018 年艾鼎奖国际设计大奖荣获金堂奖 2017 中国室内设计“年度优秀住宅公寓”荣获第十一届大金内装设计大赛“全国美宅设计公寓组-- 银奖点击链接查看相关阅读 ENJOYDESIGN 丨重庆万科招商理想城:城市人文,艺术写映绿地香港·樾湖书院:风雅如斯,诗意化境趣味性、艺术性、启发性的儿童家具展示空间建发·中央湾区:于当代中创新,定义生活易和新作∣360㎡ 极简、艺术售楼中心曾建龙新作∣把水做到顶上的餐厅 140㎡ & 125㎡样板房,“自然主义”的生活艺术
客服
消息
收藏
下载
最近

























