查看完整案例

收藏

下载
本项目的设计任务是对位于阿姆斯特丹的 Hotel Casa Amsterdam 多功能酒店进行更新改造。酒店包含三个功能分区,每个分区都有特定的功能和目标人群,从而尽可能地满足所有客户的服务需求,同时这三个功能区也需要彼此联系,共同组成一个巨型的生活区域。
▼酒店大堂一览
©Ewout Huibers
Hotel Casa 酒店建于 20 世纪 50 年代末期,初衷是解决学生住房短缺的问题,随后它被拓展为一个多功能的居住空间,致力于为旅客、当地人、学生、甚至是来阿姆斯特丹参加会议的人等提供临时住所。2010 年,Hotel Casa 酒店入驻新址,但仍然坚持其原有的品牌理念。在本项目中,建筑师们需要对现有公共空间和会议区进行彻底的翻新,将其变为一个现代化的会展中心。
在本项目中,各功能区之间的联系是设计的重中之重。设计团队设计了一个中央公共空间以供所有的入住者使用。此时,一系列具体功能空间(如酒吧、餐厅或是入住办理区等)的设计退居二线。与此同时,公共空间起到了大型起居室般的作用,人们可以根据时间和自己的需要,在这里放松身心、工作、学习甚至是享受美食。该空间的设计概念类似于(学生)合租房内公共空间的设计:一个人贡献一把椅子,另一个人贡献一个柜子,然后将所有家具有机地布置,组成一个独具特色的居住空间。尽管空间里都是新家具,但各式各样的家具样式、纹理和造型等无一不在呼应着 Hotel Casa 酒店的初衷。
▼酒店大堂局部,如同大型的起居室,玻璃外墙保证了空间的自然采光
©Ewout Huibers
▼酒店大堂局部
©Francisco Paramos
新的酒吧连接着不同的区域,因此成为了酒店的核心和关键性元素。酒吧朝向接待区的一侧是功能齐全的咖啡吧台,为人们提供可外带的热咖啡,而朝向餐厅的一侧则是传统的酒店吧台,为人们提供精致的饮品和时令性晚餐。
▼公共空间的中心吧台,设有传统的酒店吧台和功能齐全的咖啡吧
©Ewout Huibers
▼中心吧台局部
©Francisco Paramos
这部分空间的家具在选择上主要考虑用餐的舒适性,在保证起居室主基调的前提下,选用大型的共享餐桌和舒适的座椅。至此,原仅用于会议和会客的二层空间被囊括进酒店的大堂空间之中。
▼用餐空间,木制厚隔墙内凹创造出座椅空间
©selectie 15 afb
▼绿色调的餐厅空间
©Francisco Paramos
为了增加酒店大堂与二层空间之间的连通性,建筑师设计了一个对外开放的新夹层空间和一个通向夹层的楼梯。此外,沿着室外的绿色露台设置一个新的橡木楼梯,以增强室内外空间之间的视觉联系。建筑师通过增加一个宽敞的夹层空间,将一二层空间在实体上联系了起来,为人们提供了更多交流的机会,各式各样的故事将在这里上演。
▼夹层空间总览,与首层大堂具有视线联系
©Ewout Huibers
夹层空间中设有由蓝色中密度纤维板制成的书柜,这些书柜与空间同高,彼此之间的间隙被用作小型的起居室。沿着玻璃外墙面和夹层的绿色穿孔板围栏的设置长桌,作为办公场所。
▼夹层空间中的小型起居室和工作空间
©Ewout Huibers
▼夹层空间中的办公空间
©Francisco Paramos
▼夹层空间的墙体细节
©Francisco Paramos
在这里,来参加会议的人们可以在休息时间内在不同的地方碰面交流,而入住的旅客也可以轻而易举地找到心仪的放松地点。休息区位于绿色庭院的周围,从这里可以俯瞰整个大堂空间。空间的布置和配套设施能够满足不同人群的不同需求,人们既可以与其他的旅客或是与会人员坐下交谈,也可以在安静的空间内独自工作,更可以与自己的小团体小聚一下,享受一段美好的时光。
▼夹层空间中的休息区
©Ewout Huibers
▼明亮的大会议厅
©Francisco Paramos
▼会议大厅细节
©Francisco Paramos
▼小会议室,设有落地窗
©Francisco Paramos
▼小会议室,设有落地窗,墙体由磁性白板构成
©selectie 15 afb
会议室细节,配有必要的办公工具
©Francisco Paramo
从外面看,Hotel Casa 多功能酒店较为规整,以白色和灰色的色调为主。这种井然有序的设计语言也清晰地反映在了室内空间上:材料和色彩设计都是精挑细选后的结果。在材料上,橡木在室内空间中随处可见,平添了几抹温暖和自然感。在颜色上,丰富的色彩将 Hotel Casa 酒店的俏皮感表现得淋漓尽致,具体来讲,一系列固定构件,如用于分隔空间的半高条形墙以及各钢架的内饰等,都具有独特的色调。置身于酒店中,人们可以不动声色地感受到从大堂区域的浅色调向餐厅区域的暗色调的渐变。
▼沿着室外绿色庭院设置的橡木楼梯
©Ewout Huibers
通向夹层空间的楼梯,采用绿色穿孔板围栏
©Francisco Paramos
▼空间细节
©Francisco Paramos
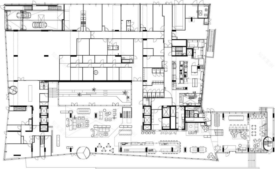
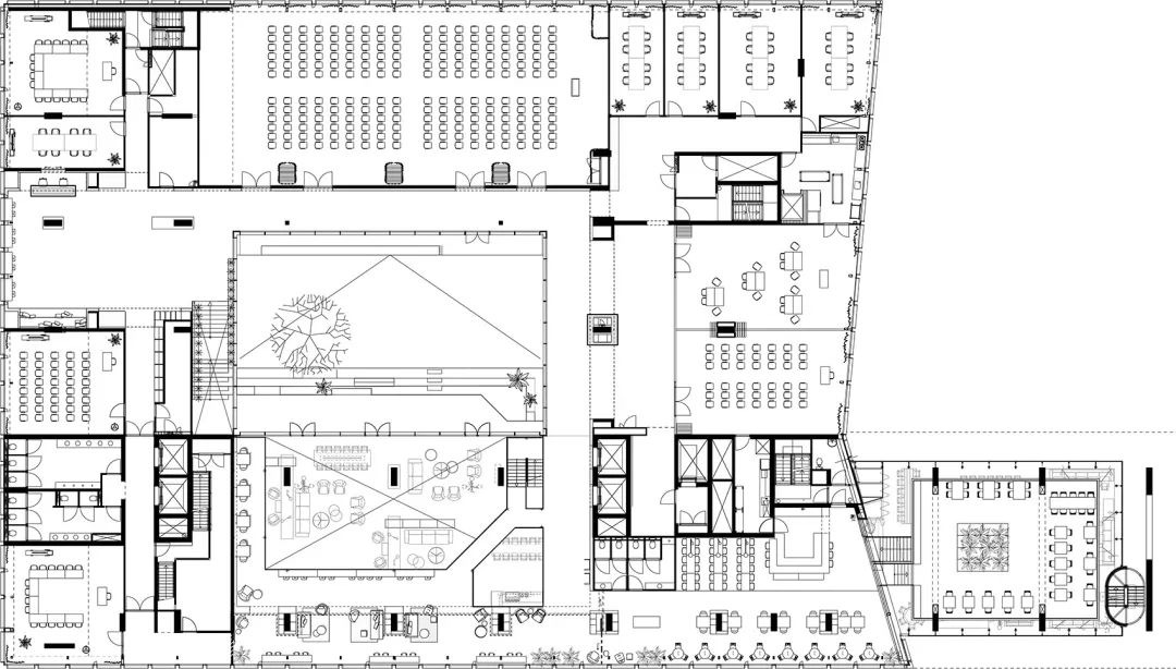
项目图纸
▼首层平面图
▼二层平面图
Project: Hotel Casa Amsterdam
Address: Eerste Ringdijkstraat 4, Amsterdam, The Netherlands
City: Amsterdam, The Netherlands
Area: 2400m2Delivery: April 2019
Interior Design: Ninetynine
Photos: Ewout Huibers / Francisco Paramos
Contractor: Roord Binnenbouw / Holmris B8
版权
▼ 网站最新 24 小时精彩项目集锦
客服
消息
收藏
下载
最近





























