查看完整案例


收藏

下载
摄影:蒋镇东
最早提出“中介空间”这一概念,并对其释义的是阿尔多·凡·艾克 (Aldo van Eyck),意在创造出更多富有人性的建筑空间。他将中介空间分为狭义和广义中介空间,其中狭义中介空间更多关注于室内空间与室外空间的过渡融合,而广义中介空间,则从单体建筑的内外空间延伸至整体城市规划层面。此后又有日本建筑师黑川纪章,提出了“灰空间”理论。他认为灰空间本质为中介空间中的一类,能够缓解现代建筑和城市原有空间的割裂感,以此减少建筑空间性质过于绝对而导致的人类感情上的疏远。
Aldo van Eyck was the first to propose the concept of "intermediary space", and it was interpreted by Aldo van Eyck, who intended to create more humane architectural spaces. He divided the intermediary space into a narrow sense and a broad sense. The narrow intermediary space pays more attention to the transition and integration of indoor space and outdoor space, while the general intermediary space extends from the internal and external space of a single building to the overall urban planning level. After that, Japanese architect Kisho Kurokawa proposed the "gray space" theory. He believes that gray space is essentially a kind of intermediary space, which can alleviate the sense of separation between modern architecture and the original space of the city, thereby reducing the emotional alienation of humans caused by the over-absolute nature of architectural space.
研究院办公室内的“中介空间” "Intermediate space" in the office
本项目在设计中起意于对“中介空间”观念的引入,这个起源于建筑与城市设计思想的概念,在博乐工业设计集团委托我们设计重庆消费品设计研究院中,被转化为本案最重要的方案生成策略。
The project was designed to introduce the concept of "intermediate space" which originated from the concept of architecture and urban design, and was transformed into the most important program-generating strategy of this project of Chongqing Consumer Goods Design and Research Institute commissioned by Bo le Industrial Design Group.
△ 原始内部空间状况 Internal space condition of the Site © 植田建筑工作室
重庆研究院办公室位于重庆巴南区的巴南体育中心办公楼的顶层。原始建筑空间正如我们常见办公楼的格局,矩形空间,由建筑结构围合而成的室内,采光幕墙、整体平面缺少变化。我们希望打破这种常态化办公空间的格局,创造一种整体性开放格局,同时又确保相对的独立性空间,以适应办公功能需求。
The office of Chongqing Institute is located on the top floor of Ba Nan Sports Center, Ba Nan District, Chongqing. The original building space seems like the pattern of our common office buildings: rectangular space, enclosed by the architectural structure of the interior, glass curtain wall, the overall plane lack of change. We hope to break the normal pattern of office space and create an overall open pattern, while ensuring the relative independence space to meet the needs of office functions.
“中介空间”内部的纯白色内腔 The pure white internal cavity of the intermediate space
空间生成策略 Design strategy for generating space © 植田建筑工作室
植田建筑室内设计事务所创办人方润武及其合伙人王明皓,在本案室内空间设计中,也非常明显地,基于二位一贯的内空间建构模式语言的设计思路。
在重庆消费品设计研究院设计中,有意植入的一个重要的空间结构:从楼层交通核心筒走出,进入办公空间之前一个有机多边形的纯白色腔体空间。这个空间在设计中被定义为“中介空间”。
Fang runwu, the founder of Ray&Emilio studio, and Wang Minghao, the partner of Ray&Emilio studio, in the interior space design of this case, it is also very obvious, based on the two consistent interior space construction model language design ideas. In the design of Chongqing Consumer Goods Design and Research Institute, an important spatial structure was deliberately implanted: stepping out of the traffic core tube on the floor, entering an organic polygonal pure white cavity space before entering the office space. This space is defined as "intermediary space" of the office.
办公区域、中介长廊与外走廊形成的多重维度空间 The multidimensional space of office area and intermediate corridor and outer corridor 中介空间的本质是空间,空间则根据在场者的生活记忆具备一定的功能与特殊的形态。例如中国传统建筑中的廊道空间,在作为中介空间模糊边界的同时具备各类功能,如休闲娱乐、互动交谈、交通、景等。
The essence of the intermediary space is space, which has certain functions and special forms according to the living memory of the present person. For example, corridor space in traditional Chinese buildings has a variety of functions, such as leisure entertainment, interactive conversation, transportation, viewing and so on, while acting as a brokering space.
△“中介浮岛”与“海域”的关系 Relations between Intermediate Island and Sea Area
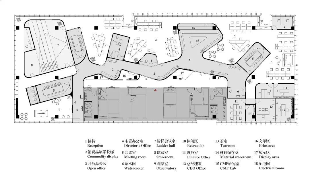
△ 平面图 The Layout © 植田建筑工作室
在重庆消费品设计研究院,这个空间集合了前台接待空间、设计展示长廊、多个会议室、DMF 材料研究室等一系列“浮岛”式空间,这些浮岛组合成为了一条连续的“展示长廊”。这个被植入的空间,内部材料采用均质的纯色空间,在空间体外部则采用建筑外墙所用的曲面钢板塑造这一装置体的立面,并为剩下的“海域”——办公空间提供颇具意味的室内空间中的室外氛围。
In Chongqing Consumer Goods Design and Research Institute, this space integrates a series of "floating island"-style spaces such as reception space, design display gallery, multiple meeting rooms, and DMF material research room. These floating islands are combined into a continuous "display / gallery". In this implanted space, the internal materials are homogeneous and pure white color space, and the curved steel plate which used in the exterior wall of the building is used to shape the facade of the installation body outside the space body, and is the remaining "sea area"-office space Provides an outdoor atmosphere in a meaningful indoor space.
△ 纯白色的中介长廊 The pure white intermediary gallery
“中介长廊”成为了平面空间中的正形部分,它集中化了所有的公共功能,将它们视作为一个统一的内部建筑体。而“办公场”则以负性的方式充斥其中。两者之间的咬合穿插则得到了一个具有褶皱感、层次感、丰富多变的内空间系统,让原本单一的空间转为具备完整功能的同时,在空间操作逻辑上有效地转化为可以被解读与感知的中介结构。两者之间交界线则形成了内与外的边界,同时也是空间不断转换、不断穿越的切入口。
The "intermediate gallery" becomes a positive part of the plane space, which centralizes all public functions and views them as a unified internal building. All but “office” is filled in a negative way. The biting interpolation between the two gives a fold, hierarchical and variable inner space system, which transforms the original single space into complete function, effectively transforms the space operation logically into a intermediate structure that can be interpreted and perceived. The intersection between the two forms the internal and external boundary, and is also the intersection of space to continuously convert and cross.
△ 通过一些列窗口界面看到远景的空间片段 The space segment of the vision is seen through a series of windows
△ 纯白色的中介长廊 The pure white intermediary gallery
△ 建筑轴测图 Model of architectural axis © 植田建筑工作室
“中介长廊”所形成的产品展廊,消除了单一的通过属性,让空间可以在多个维度流动起来。这些动态空间促进了活动与运动的发生,也促进了空间在多个维度的连接。随着光线射入角度和人对空间观察位置的变化,曲面波纹的墙体的明暗交界也会随之变化,这便让内部空间有了时间性,有了动态感,使得人在空间中每一个微小的位置变化都会引起对空间感知的巨大差异,每一个参与到这个空间的个体在自身运动的过程中又可以成为其他观察者的景观,使得空间不再是简单的三维物理空间,而是成为了一系列创造了具有内与外多重维度的动态空间剧场。
The product gallery formed by the "Intermediary Corridor" eliminates a single pass attribute, allowing the space to flow in multiple dimensions. These dynamic spaces promote the occurrence of activities and movements, and also promote the connection of spaces in multiple dimensions. As the angle of light incident and the person’s observation position in the space change, the light-dark junction of the curved curved wall will also change. This gives the internal space a sense of time and dynamics, making people in the space every time. A small change in position will cause a huge difference in perception of space. Each individual participating in this space can become a landscape for other observers in the course of its own movement, making the space no longer a simple three-dimensional physical space, but It has become a series of dynamic space theaters created with multiple dimensions inside and outside.
△ 纯白色的中介长廊
△多个空间剧场以长卷的方式展开
△ 空间叙事结构分析 © 植田建筑工作室
这是一个“同时发生的剧场”,不同的行为在空间的多个维度并置在一起,类似于一种立体主义的拼贴画,这些行为的并置得到了空间的另外一种状态,让空间能够在最小的物理层级中展现事件繁杂的多样性,同时连续的空间结构又规范了这繁杂背后的逻辑性。这需要在空间的建构中既具有理性的系统为支撑,同时兼有叙事性的表达。
This is a "simultaneous theater" in which different behaviors are juxtaposed in multiple dimensions of the space, similar to a Cubist collage. The juxtaposition of these behaviors results in another state of the space, allowing the space to show the complex variety of events in the smallest physical level, while the continuous spatial structure regulates the logic behind the complexity. This requires not only a rational system as the support in the construction of space, but also a narrative expression.
△窗口形成的框景,定义了内部的剧场感空间
The frame of the window defines the internal theatre space
内部剧场空间的营造
The frame of the window defines the internal theatre space
这种对“中介空间”的集中定义还带来了另外一个层面的好处,我们可以将有限成本集中性地控制,集中成本建造的“长廊”空间集中了例如会议室、CMF 研究室等具有表达力的公共空间,而其余的负形空间则采取最朴素的方式,深色裸顶加上部分射灯,让工作的位置自然地发生在这些缝隙中。用最小的代价带来空间最大化的品质,这也是清晰的空间结构逻辑所带来的。
This centralized definition of "intermediary space" also brings another benefit. We can control limited costs centrally. The "Intermediary Corridor" space built with centralized costs can be centralized, such as meeting rooms, CMF research rooms, etc. The expressive public space, while the rest of the negative space adopts the simplest way, with dark nude tops and some spotlights, so that the working position naturally occurs in these gaps. Bringing the quality of space maximization with the least cost is also brought by the clear spatial structure logic.
多个维度的空间并置 Multiple dimensions is concurrent
△ 通过一些列窗口界面看到远景的空间片段
完整项目信息
项目名称:重庆消费品研究院办公室
项目类型:办公、共享办公、众创空间、展示、文化社交
地点:重庆市巴南区华熙 LIVE
设计单位:杭州植田建筑室内设计工作室(Ray&Emilio studio)
主创建筑师:方润武、王明皓
设计团队:麻智超、樊江南
材料:白色烤漆波纹铝板、白色打孔铝板、乳胶漆
项目委托方:杭州博乐工业设计股份有限公司
业主:重庆消费品工业创新设计研究院
施工:重庆茂宇装饰有限公司
设计时间:2020.06
完工时间:2021.05
摄影师:蒋镇东
文字:方润武、王明皓
END
渠禾空间·新作 / 这才是科技感,未来感十足的顶级办公空间「星作」
灰白之间,极简之家 | 李友友「星作」
九度设计丨 1500㎡办公室:为舒适办公而升级「星作」
老厂房转身变新花园·中关村数创产业基地 | 清石设计「星作」
客服
消息
收藏
下载
最近





























