查看完整案例

收藏

下载
Heim Balp Architekten 为 ASTORIA MCE 在罗马尼亚蒂米什瓦拉设计了工业厂房和公司新总部,旨在拓展欧洲东部市场。
Astoria 是意大利历史悠久的咖啡机品牌,同时也是全球产量第三的专业咖啡机生产商。
该项目作为公司主要的两个总部之一,将专注于专业咖啡机的制造。
▼建筑立面
MCE 公司隶属于 Astoria 集团,从 2002 年末开始在蒂米什瓦拉开展制造业务。随着新工厂的建设,公司的生产能力将得到显著提高。该设计方案满足了客户在规划新布局上的要求,将在增加日生产量的同时,为整个公司赋予更加年轻和进步的形象和态度。▼建筑外观
该项目在原有建筑的基础上进行,未进行拆除和加建,而是通过重要的干预和介入来改善建筑的功能,并对工作空间、展示间和办公空间进行了更新。
建筑的功能空间包含了新的生产线、物流空间、新的行政办公室和商业办公室、培训区域以及展示间等。
既有的结构经过改造后容纳了更衣室、员工食堂以及一些技术空间。
▼轴测分析图
▼场地平面图
新的 MCE 厂房由两栋体量构成:一栋是 7 米高的单层建筑,作为生产区域;
另一栋包含两个楼层,容纳了办公室、会议室、展示间和培训空间。
▼两栋相互连接的体量
主要的公共入口连接至双层高的空间,接待区和展示间均位于此处,起到迎接访客的作用;
办公室和会议室位于二层,可以俯瞰到首层宽阔的中庭。
该项目的建筑师表示:“这座办公及公共建筑一方面满足了公司自我表达的需要,使其能够向客户和经销商展示自身的产品和价值观;
另一方面也满足了行政部门对于效率和活力的追求。
▼双层高的展示间
▼咖啡机产品展示
同样位于首层的接待区
▼从接待区望向二层办公空间
▼二层空间俯瞰
▼活动室
生产区域占地 4000 平方米,使咖啡机的日产量提升至 100 台。
Heim Balp Architekten 事务所创始人之一 Pietro Balp 表示:“生产线的设计遵循了准时化的循环理念,生产所需的材料会在需要时运进厂房,生产好的产品也会立刻从厂房中运出,这使得存储空间的需求量大大降低。
▼生产空间
立面设计是该项目的一个重要内容,实体墙面与玻璃的不连续组合搭配以红色的铝制包层,为整个建筑体量赋予了变化的透明度。
“我们的目标是使建筑成为蒂米什瓦拉的一个显著的新地标,使其从周围的景观和高速公路上清晰可见,尤其是在这样一个缺乏视觉参照物的工业环境当中。”建筑师解释道。
两座建筑通过红色的金属包层实现了视觉上的连接和统一,并根据不同的功能来改变密度。
▼实体墙面与玻璃的不连续组合搭配以红色的铝制包层
▼两座建筑通过红色的金属包层实现了视觉上的连接和统一
建筑首层的生产区域以封闭的立面围合,展示间则采用了透明的玻璃幕墙,使公众可以一览公司的产品和文化传统。
遮阳系统为二层赋予了一种半透明的特征,同时改善了建筑内部的自然通风。
▼玻璃幕墙和遮阳系统
室内空间的选材和配色均保持了简洁,突显了建筑的轻盈感和通透感。木质镶板为一些特定空间增添了温暖的气息,办公区域采用了玻璃隔断,地面则以微粒混凝土铺设。所有的管线设备均保持了裸露,强调出厂房整体的工业美。办公室采用了浅蓝色的家具,与灰色和白色的背景形成对比。▼简洁的室内空间
▼办公区域采用了玻璃隔断
▼浅蓝色家具与灰色和白色的背景形成对比
▼办公室细部
▼上下层关系
项目还规划了场地的整体布局,包括装卸区和车辆空间等,提高了物流方面的效率。
▼外观细部
项目图纸
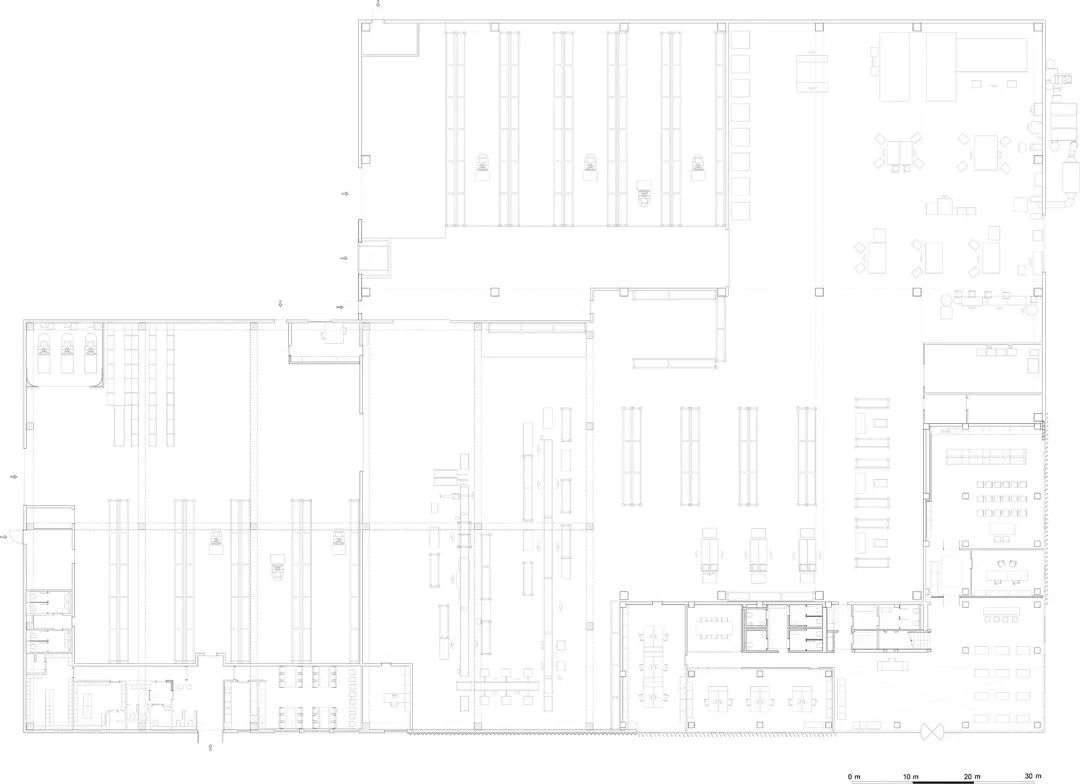
▼首层平面图
▼立面图
▼剖面图
MCE Production Facility
Location: Timisoara (Romania)Architecture: Heim Balp Architekten
Design Team: Lorenzo Soldi, Michael Cradock, Federica Carletto
Client: Macchine per Caffe Espresso- Astoria group
Programme: offices, showroom, training areas, production facility
Year: 2016-2019Surface: 4.000 m²
Main Contractor: S.C. Borghesi
Suppliers
Prefab Concrete: S.C. Incontro Prefabbricati
Aluminum Sun-shading: Metadecor
Aluminum Skin: Marcegaglia
Technical Installations: Ambra Service
Arredi: Gruppo Spagnol
Consultants
Local Architects: S.C. Euro Architect
Technical Planners: S.C. Proiect Proconstruct / S.C. Parsymonia / S.C. Electric Eye
Site inspector: S.C. RC Deinra
Photography: Marco Dapino
版权
客服
消息
收藏
下载
最近






































