查看完整案例

收藏

下载
背景
该住宅位于科多帕希的乡村环境中,其所在场地属于 San José牧场的一部分。业主的要求是打造一座能够享受乡村、农场和自然景观的家庭住宅。
▼住宅外观
设计方案充分考量了实施和运作的条件,以原始而天然的材料构建了一个几乎感觉不到的独立结构。
住宅的体量沉入地面,看上去几乎要从周围环境中消失。
▼设计示意图
▼剖面图
设计思路
住宅可以被看做一个埋入地下的部件,在保持独立性的同时并未对土地形成干扰。
坚固的石砌墙壁支撑着从土壤中升起的斜屋顶,使其成为陆地的一部分延伸。
出于功能需要而被建造为“C”形的石墙容纳了私人空间和主要功能区。
较低处的区域被用作浴室、仓库和机房等服务空间,以及电视间和游戏房等辅助空间。
▼坚固的石砌墙壁支撑着从土壤中升起的斜屋顶
▼“C”形的石墙容纳了私人空间和主要功能区
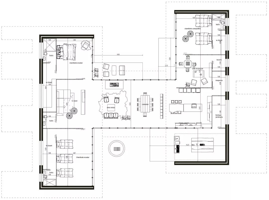
▼平面图
透明的公共区域连接了住宅的两个部分,并从物理和视觉上连接了两个户外庭院。
这一中央空间是所有空间的连接点,拥有宽敞、清晰且灵活的布局,其两端各装有一扇木质隔墙,将中央空间与厨房和电视间区分开来。
中央空间被构想为一个社交区域,为整个住宅提供了核心的热源(壁炉)。
▼中央空间被构想为一个社交区域
▼中央空间为整个住宅提供了核心的热源
▼中央空间两端各装有一扇木质隔墙
▼厨房和辅助空间
每个房间的墙壁均采用了 bahareque 板面和桉木构成的复合结构。
bahareque 板面能够改善房屋的气候和声学条件,其质地和颜色则强调了在景观中创建离散结构的意图。
住宅的外墙由桉木立柱、bahareque 木墙和玻璃构成,在引入光线的同时结合了住宅入口和设备通道。
▼bahareque 板面能够改善房屋的气候和声学条件
▼室内细部
倾斜的屋顶在石墙上方分为两个区域。
屋面由长度为 10 米和 12 米、厚度为 4 毫米的金属托盘构成,可以容纳隔热石材和土壤,以便在屋顶种植植被。
屋顶同时还与房屋两侧的陆地相连,人们可以直接在屋顶上方行走并跨越场地。
▼绿植屋顶剖面图
▼可以行走的屋顶
此外,屋顶还延伸到了住宅唯一的户外区域,创造出与厨房相连且开放于主庭院的烧烤空间。连接两个区域的中间部分以木梁和金属梁共同支撑,并在入口的上方转变为透明的屋檐。▼入口上方的透明屋檐
▼烧烤空间
从一开始,业主就希望打造一个能够融入环境且被植被覆盖的住宅。这一景观策略主导了整个场地的构想,使住宅完全被包围在葱郁的景观当中。植被从地面一直延伸至屋顶,并逐渐覆盖石墙。绿植屋顶之间的区域形成了两个开放的庭院,绿色的气息透过玻璃进一步被引入室内。庭院中种植有大量的本地植物,在房屋的外部形成与室内截然不同的微气候。在住宅周围,一系列植被过滤器构成了进入房屋的通道。树木、灌木和不同类型的地面材料区分出外部的区域,同时起到指引视野和路线的作用。▼融入环境的住宅
项目图纸
▼场地平面图
▼轴测分解图
▼剖面图
版权
▼ 网站最新 24 小时精彩项目集锦
客服
消息
收藏
下载
最近






























