查看完整案例

收藏

下载
扬州慢:古城里的宝藏盒子
Wutopia Lab 受扬州万科邀请在扬州古城区里把一间新华书店及其辅房改成了一个藏着书店、民宿、展览、会议、茶室的宝藏盒子。它向扬州人民展现了继承历史展现未来的可能性。
▼书店外观
具有 2500 多年的建城历史的扬州曾经一度是中国最繁华的城市。成立于 1949 年 1 月 28 日的国庆路新华书店是扬州的第一家新华书店,它的前身是原民国时期“建国书店”,解放后被接管。
经历 70 年发展,承载了几代人回忆的国庆路新华书店随着时代的发展逐渐破败,经营面积越来越小,部分门面租赁给服装店,曾经是扬州人的精神家园的书店开始被人遗忘。扬州市政府和万科希望联手复兴新华书店并带动古城区的城市更新。
▼城市肌理
▼屋顶鸟瞰
扬州慢就是一个层层嵌套惊喜的盒子
Wutopia Lab 拿到的新华书店是由一栋街面楼房以及 6 栋嵌在老城区肌理里的建筑组成的小群落,房子之间是堆满杂物的院子。Wutopia Lab 把它们整合成有联系的一个组团,命名为“扬州慢”。
▼设计分析图(场地原状)
第一个盒子是新华书店
▼书店轴测
1.1 幈宫书屋是最轻盈的白盒子
国庆路主基调是灰色,沉重,我想既然不能改变立面,那就创造一个白色轻盈的书店吧。我以“幈宫”为设计灵感,用白色亚克力书架作为屏风,在书店围合分割成书店的迷宫。
半透明亚克力创造了雾一般的体会,所有的书仿佛在空中,悬浮在白色的地坪上,这就是个轻盈的书店。书店虽然小,但在镜面映射下,仿佛无穷无尽,时间都不重要了。
▼幈宫书屋外观
▼白色亚克力书架围合分割成书店的迷宫
▼书架细部
1.2 童书馆是白盒子里的首饰盒子
二楼的童书馆是幈宫书屋升级版。布局延续了幈宫书屋,但书架改成木质,书架的形式也是木屋的轮廓线,地坪是明亮的黄色,其上有动物(书架)游栖。层层叠叠的木屋在镜面墙壁的反射下为孩子们打造了一个温暖的纳尼亚般的小世界。
▼童书馆
▼书架的形式也是木屋的轮廓线
1.3 移动书房是白盒子里的机关
我坚持把运送图书的升降平台设计成一个移动的小客厅,轿厢墙壁可以用作展览。它隐藏在镜面墙面后头。偶尔打开瞬间,可以让读者窥见正在展出的新华书店的历史变迁小记。
▼移动书房
1.4 观文书屋是白盒子上的黑盒子
书店三楼是一个小型的珍藏书籍区。以可移动的不锈钢书柜组合固定书架,结合镜面吊顶和黑色地面构成了一个让人失去场所感的“机关密室”,它就是扬州的观文书屋。
▼观文书屋
1.5 云上花园是个藏着自然的盒子
观文书屋出来就是屋顶花园。我以个园的竹子和个园的清漪亭为灵感,以耐候钢板形成涟漪的花纹作为花池的形状,并在里面种满竹子。这是老城屋顶上对个园的回响,这是一个改写的微型自然。
▼屋顶花园鸟瞰
▼耐候钢板构成的花池中种满竹子
▼花园细部
民宿和共享大厅轴测示意
2.1 住在诗歌里
新华书店的后场两栋小楼被改建成民宿和共享大厅。其中两层楼的小楼设计了 12 间客房。这就是民宿盒子。我牺牲了一部分客房面积,把客房独立成附着在大盒子里的小盒子。
我把它们看成巧克力,你打开这个大盒子,拿到的可能是李白,或者是欧阳修,一开始你无法确定会是谁,毕竟有 12 个诗人在等着你挑选。
▼民宿盒子外观
▼立面细部
客房内部
▼天窗
2.2 沐浴在灵感的彩虹下
毗邻民宿的小楼是供会议培训活动之用的共享大厅。它的外立面因为和民居很接近,被要求不做立面上的处理。
我把目光转移到屋顶,要有光,彩色的天窗把天光滤成五颜六色而让室内变成生动活泼。即便在羁绊中,想象力依然可以驰骋。这彩色的光就是庸常生活中忽现的灵感。
▼共享大厅未做立面上的处理
▼共享大厅内部
民宿盒子的宝藏是诗意的生活。第三个盒子是中央庭院
中央庭院轴测示意
在书店盒子和民宿盒子之间的杂院被清理干净,这才是整个扬州慢项目的中心。中央庭院是一个空盒子。我在在原本破败的庭院中植入一个亮晶晶的“空盒子”,它以空这个特征联系了书店、民宿和后院。
▼中央庭院鸟瞰
▼从入口望向庭院
你站在这个空旷,干净,灰色的盒子里,它是杂乱拥挤的古城的下句。它回应了片石山房,整个墙壁和地面都由灰色的石材铺就。这是一个独立的庭院,它的墙壁和四周建筑是脱开的。这是一种决心重新开始的姿态。
通过庭院设置的景窗,花砖墙,月洞门,你可以窥见不同颜色和肌理的旧城面貌。他们试图拥挤进来,但又被阻挡在外。在这个平静的院子里,你会慢下来,许多思绪和记忆会涌上心头。这个空盒子就是整个项目的中心。唯一开放的是天空,呼应天空的就是中央的红枫,可惜我等不及它变红就发表作品了,慢有时也是很奢侈的。
▼月洞门
▼整个墙壁和地面都由灰色的石材铺就
▼从庭院窥见不同颜色和肌理的旧城面貌
▼庭院细部
庭院盒子的宝藏是思考。
第四个盒子是秘密宝藏
4.1 曲水流觞是发现秘密宝藏的线索
你在后院入口会发现地面上镶嵌的暗寓“曲水流觞”的曲线铜条,这是一个帮助发现精细的线索。
▼地面上的曲线铜条
4.2 我们藏了 3 个秘密宝藏
▼茶室和独立民宿轴测示意
▼茶室与民宿间的楼梯
秘密宝藏盒子的宝藏是记忆和惊喜。
扬州慢是扬州的宝藏
扬州慢慢慢地向扬州人民一层层打开盒子,你站在扬州慢新华书店,休息一会,你会发现错对面是大麒麟阁,西侧的新胜街巷子里是民国名人最爱的绿杨旅社。
而不远处的巷子里是富春茶社。何园、个园、东关街都离书店不远。扬州慢这个宝藏盒子会告诉大家扬州的古城才是最大的宝藏盒子,等着我们去发掘。
▼扬州的古城是最大的宝藏盒子
▼洞见扬州
古城里的宝藏盒子
项目图纸
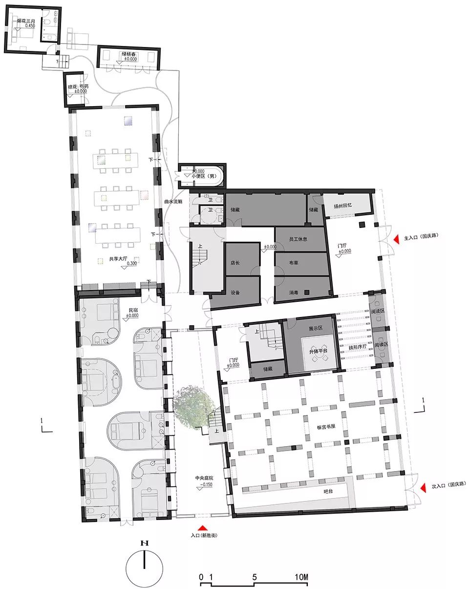
▼一层平面图
▼二层平面图
▼三层平面图
▼剖面图
项目名称:有浪|| 扬州慢×新华书店
方案设计(建筑、室内、景观):Wutopia Lab
主持建筑师:俞挺
项目建筑师:黄河
摄影:CreatAR Images
灯光顾问:张晨露
项目地址:扬州
建筑面积:1800㎡
建成时间:2019 年 1 月
业主:扬州万科房地产有限公司 苏州万科城市酵母投资有限公司
施工图设计:建筑 扬州市建筑设计研究院有限公司 室内 上海傲石设计咨询有限公司
景观 上海彤构建筑工程设计有限公司 幕墙 江苏建设控股集团有限公司
▼ 网站最新 24 小时精彩项目集锦
客服
消息
收藏
下载
最近

















































