查看完整案例

收藏

下载
该项目地处市郊,地势平坦,周边由果树林、农田和溪流环绕,风景优美。场地东侧比邻着一座粮食加工厂,这是由建筑营早年设计的坡屋顶围合式建筑。用地上曾有一栋木屋,是十多年前典型的木结构产品样式。
为了追求更好的空间品质,户主决定对其拆除并在原址新建一座房屋。建筑的基本功能是休闲度假,既可以居住,也可以用来接待客人。
▼宅院鸟瞰图
从四合院到四合宅
设计概念源自传统居住空间原型——四合院。四合院是一种内向型的建筑,由四向房屋围合一个庭院。建筑外部是封闭的,进入内部则完全开放,这使得个体生活缺乏私密性。
结合这个特定场地和度假休闲的使用条件,我们决定把四合院变型成为“四合宅”。
在保持四向房屋各自独立的条件下,将“院”置换为有顶的厅,将四面围合转变为四面开放,让厅堂与外部优美的风景互通共存,同时保证个体生活的私密性与接待活动的开放性各得其所。
▼概念图解
宅院俯瞰图,在保持四向房屋各自独立的条件下,将“院”置换为有顶的厅,将四面围合转变为四面开放
屋中有院,厅外有台
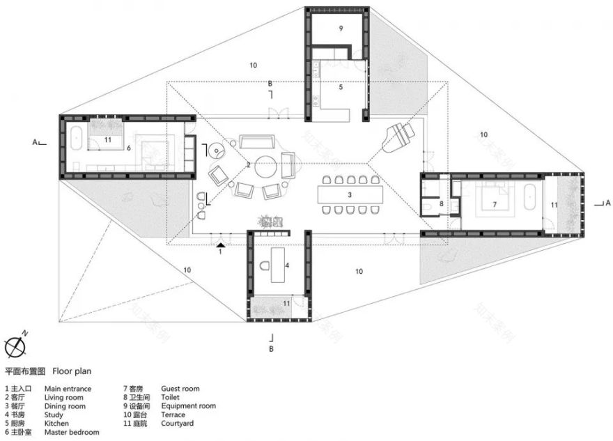
整座建筑建立在台基之上,四向房屋分居于台基的四角,共同构建出建筑的领域界限。四个房屋对外封闭,对内则包含不同尺度的内院,为室内提供景观和采光。房屋容纳了住宅中私密性功能和服务空间,比如卧房、书房以及厨房、设备间等,它们相互隔离避免干扰。
由四向房屋向内支撑起一片坡屋顶。屋顶之下是一个自由灵活的公共活动区域,包括会客、就餐、钢琴演奏等公共活动在此发生。透过透明的玻璃门窗,公共活动亦可向外延伸至四个方向的室外平台,共享周边绿意盎然的风景。
▼宅院生成过程
宅院外观,四个方向的房屋对外封闭
宅院外观,采用砖墙打造建筑,墙面在庭院部分由实砖渐变为漏砖
宅院主立面,整座建筑建立在台基之上,厅堂四面开放
宅院入口,四向房屋向内支撑起一片坡屋顶
▼可作为公共活动空间的室外平台,位于四个方向,共享周边绿意盎然的风景
显现物料的朴素之美
控制空间、结构与材料的逻辑关系,围绕乡村休闲空间的基本特征,呈现物料的本真之美。四间房屋采用钢框架++ 混凝土板,现浇木模板混凝土顶板直接显现于室内空间之内。墙面使用了一种米黄色页岩砖。
设计利用双层清水砖墙构造,在墙内空腔设有保温层,保证热工性能的同时,也保持了内外一体的砖材料肌理和质感,并隐藏结构、空调等设备管线。墙面在庭院部分由实砖渐变为漏砖,让房屋内外保持着光线和空气上的流通。室内外台基地面也全部由米黄色砖铺砌而成。公共空间屋顶采用了木结构密肋梁,屋面覆盖火烧板屋面瓦。木与砖材料的结合,共同营造出室内空间朴素、温暖、自然的氛围,并且由壁炉、餐台和钢琴进一步定义了不同公共活动区域。
▼室内公共空间一览,包括了起居室、餐厅、厨房等空间,公共空间屋顶采用了木结构密肋梁
▼从起居室看餐厅、厨房和钢琴演奏区,现浇木模板混凝土顶板直接显现于室内空间之内
▼从餐厅看向书房,墙面使用了一种米黄色页岩砖
▼起居室局部
▼厨房
▼书房,墙面在庭院部分由实砖渐变为漏砖,让房屋内外保持着光线和空气上的流通
客房,均设有内庭院
▼客房细节
▼材料细节
▼宅院夜景
▼实体模型
项目图纸
▼总平面图
▼平面布置图
▼南立面图
▼西立面图
▼A-A 剖面图
▼B-B 剖面图
▼构造详图
项目地址:河北,唐山
用地面积:约 820 平米
建筑面积:265 平米
主要材料:砖、木、玻璃等
设计时间:2017.05—2017.08
施工时间:2018.06—2019.01
设计公司:建筑营设计工作室
主持设计:韩文强
建筑及室内设计:姜兆、胡博
结构设计:张勇
水电设计:郑宝伟
暖通咨询:JAGA
摄影师:王宁
▼ 网站最新 24 小时精彩项目集锦
客服
消息
收藏
下载
最近





































