查看完整案例

收藏

下载
呼伦贝尔海拉尔机场位于内蒙古呼伦贝尔市海拉尔区,以世界最美草原、十佳冰雪城市的美誉享誉全国。原 T1 航站楼建筑面积 7600㎡,为了解决日益增长的草原旅游需求带来的旅客流量激增,需要扩建现有航站楼。
▼陆侧鸟瞰
©冯亮
设计之初,建筑外轮廓、平面流线都已通过评审确定,如何在限定条件下,打造既具有时代感、又兼具浓郁地方特色的门户航站楼建筑,成为设计最大的挑战。
▼西北角夜景
©张广源
概念生成
设计引入独特的结构形式,框架柱在二层呈双 V 形斜撑支撑屋面。柱、吊顶、屋面结构有机结合,消融垂直界面与水平界面的界限,营造如蒙古大帐一般连绵、贯通的空间感受。金色、白色的主色调使人仿佛置身于洒满阳光的白桦林间。
▼概念生成图
▼一层综合迎送厅
©张广源
二层候机厅
©于海为
▼柱、吊顶、屋面结构有机结合©刘珂
形态上采取南高北低的策略,陆侧形成通高檐下空间。双向波浪式单层网壳屋面的曲面造型呼应典型的草原文化地域特征——白云、羊群,使到达机场的使用者无论从云端还是路上都能感受到 T2 航站楼连绵起伏、富有韵律及层次感的特色形态。
▼陆侧檐下空间
©刘珂
▼富有韵律和层次感的形态
©于海为
▼北向陆侧夜景
©张广源
绵延的雨棚成为连接新老航站楼的重要元素,形成统一建筑语言,加强了新、旧航站楼前车道和等候空间的贯通性,创造了怡人尺度的室外灰空间。
▼雨棚作为统一元素
▼雪景效果
©刘珂
连接新老航站楼的雨棚 ©刘珂
单元设计
考虑到建造难度,将纵向 7 跨的航站楼的主体结构、屋面、内装整合成两跨的基本单元。以屋面网架结构的尺寸作为基本模数,对铝板的曲率、曲面进行分析和归类:曲率较小的简化为平面铝板,曲率略大的简化为单曲面铝板,极少数曲率较大的为双曲面铝板,进而将工艺难度和造价控制到最低。
▼单元控制
建造控制
在后期深化设计与建造过程中,我们创新性地深化异形龙骨幕墙、TPO 屋面、双曲铝板开花柱节点,并采取异地 1:1 放样的方式调整、确保实际建造效果。
▼铝板异地放样制作
©于海为
铝板开花柱节点
▼TPO屋面及天窗节点
呼伦贝尔海拉尔机场作为呼伦贝尔面向世界的窗口,我们希望能赋予 T2 航站楼国际先进的机场建筑特色与地方深厚的本土意蕴,让她成为带动草原旅游业发展的枢纽工程和城市名片,成为一颗轻盈、纯洁、璀璨的草原明珠。
▼陆侧立面
©于海为
▼空侧立面
©于海为
▼通高空间效果
©刘珂
▼陆侧幕墙
©刘珂
空侧幕墙
©刘珂
综合迎送厅
©刘珂
▼登机连廊©刘珂
▼综合迎送厅夜景
©于海为
▼陆侧夜景
©张广源
项目图纸
▼概念分析图
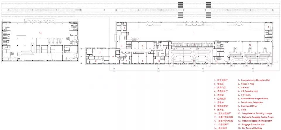
一层平面
▼二层平面
▼剖面
建设地点:内蒙古自治区呼伦贝尔市海拉尔区
建成时间:2018
建筑面积:20669㎡
设计单位:中国建筑设计研究院有限公司一合建筑设计研究中心 U10
设计主持:于海为、刘晏晏
设计团队:靳哲夫、吕妍、高超、贺帆、朱起鹏、匡月凡
建设单位:呼伦贝尔城市建设投资(集团)有限责任公司
使用单位:内蒙古自治区民航机场集团有限责任公司呼伦贝尔分公司
结构:中国建筑设计研究院有限公司施泓、王超等
室内设计:北京市辛迪森建筑装饰工程设计有限公司刘珂、刘春录等
照明设计:清华大学建筑学院张昕工作室张昕、韩晓伟、周轩宇
幕墙设计:深圳市三鑫幕墙工程有限公司
施工图设计合作单位:中国民航机场建设集团公司华北机场规划设计院南步涛等
摄影:张广源、于海为、刘珂、冯亮
撰文:吕妍
▼ 网站最新 24 小时精彩项目集锦
客服
消息
收藏
下载
最近




































