查看完整案例

收藏

下载
项目位于上海市区,紧贴轻轨,高架线路的弧线限定出了地块的南部边界。整个地块都暴露在周期明确的铁轨声中。地块北界也是一道弧线,围墙外就是公园,园内大树繁茂。从上面看,整个园区呈梭形,东边是唯一的入口。
弧形轨道和公园之间的场地
一期改造完成之后的 4 号楼和 5 号楼
场地北侧公园中的大树
园区总体及一期改造的 4 号楼与 5 号楼模型
地块中分布着不同时期多种类型的建筑,有办公楼也有仓库,体量与结构类型差异很大。场地内部缺乏秩序,一直被当做一个大停车场,供周边的办公区使用。现状的外部场地和建筑都没有被有效的利用,业主希望我们重新规划整个园区,并改造每个建筑。由于工程复杂,需要分三期进行,第一期的任务就是将 4 号楼和 5 号楼改造成办公楼,业主想把自己的办公从离铁路最近的 1 号楼迁移至其中。
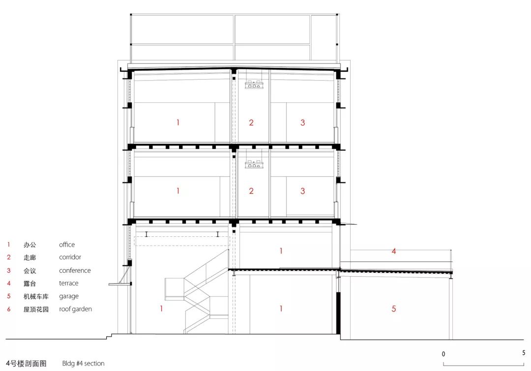
4 号楼和 5 号楼是混凝土预制框架结构,虽然从立面看起来都有五层楼那么高,但实际上 4 号楼是三层建筑,5 号楼只有两层。业主原打算直接在里面加上隔断,形成一间间小办公室,但这意味着有些办公室有 6 米的层高,却只有 3 米的面宽。我们建议做插层,把两个库房都变成了四层建筑。这带来了一些结构上的挑战,有很多问题需要解决。
改造前的 4 号楼与 5 号楼
4 号楼原为三层,底层层高 7 米,上面两层分别是 4.5 米,我们将底层变成了跃层,对外出租,上面两层隔成独立办公室。为了让内廊明亮,走廊两侧的隔断用了压花玻璃,同时,所有隔墙在 2.2 米高度以上都用透明玻璃,使每个房间能感受到更多的空间。我们希望暴露原有的厂房结构,不做吊顶,设备只能露明,所以一开始就要控制所有管线的排布及穿过玻璃的方式。
基于相关规定,设计任务书对每间办公室面积和位置都有明确要求,这使得办公室隔墙与原有的建筑结构无法对应。所以在立面上,我们保留了原来的横条窗,并用了深褐色的窗框,让错位的竖向分隔能消隐在横向条窗的檐口下。窗过梁以上的实墙全部替换为玻璃砖,让室内明亮起来,从立面上也能看到原有结构的秩序。原来的结构偏弱,我们做了局部加固,包括加粗柱子和增加斜撑。
保持上部连续的 4 号楼办公单元
4 号楼办公单元,窗过梁以上的实墙全部替换为玻璃砖,让室内明亮起来
自然光照亮的 4 号楼办公室走廊
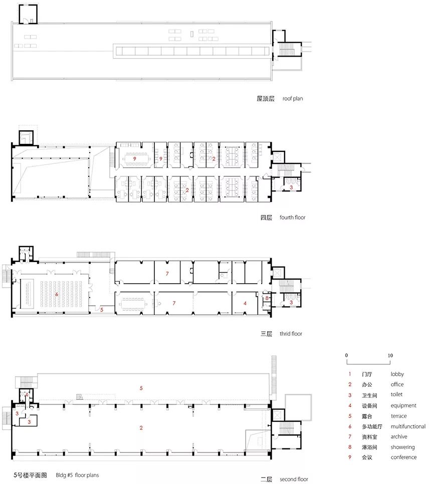
5 号楼原为两层,底层层高 9.9 米,第二层层高 5.7 米。我们将底层分割成 5.3 米和 4.6 米两层,供租赁使用。二层东边的 6 跨,在局部做了插层,下层层高 2.3 米,用作资料档案库,上面用作办公室。西边 4 跨保持原来的层高,作为一个完整的大空间,供会议和活动使用。为了达到任务书规定的独立小间办公的面积要求,插层的楼板做了出挑,立面上呈现为一个个突出的盒子。站在插层高度,离原来的大梁很近,为了减轻大梁的压抑感,我们把内廊向上延伸,并把顶部做成天窗,所有需要在楼内环通的设备管线也整合进了这个天窗的侧壁。
建筑的立面变动明显,一是源于内部空间的巨大变化,二是结构加固的需要,原来的仓库为单跨结构,不满足现行的结构规范要求,通过跟结构师反复讨论,评估了性能、造价和使用功能之后,确定了最终的加固方案和新加斜撑的具体位置。由于内部功能的剧变,原有的建筑外墙都不可用,新的外墙对应着新的内部空间划分,我们使用了一种轻盈的语言,强调了建筑的旧框架,在里面添补新的秩序,如同 Eames 夫妇设计的组合柜,在一个简单框架里容纳了多种语汇,实的、透明的、空的、孔洞、斜线、反射的……好像在零敲碎打的回应问题,但最后也呈现出了一种轻松明了的整体感。
最后,我们用廊桥把两个库房顶层办公空间连接在了一起。
5 号楼公共大厅外阳台
5号楼南立面
5号楼一层南立面
从 5 号楼公共大厅看向城市
从公共大厅看向公园
5 号楼公共活动室
5 号楼公共活动室北侧通道
5 号楼办公区走廊天窗
用于指导施工的大比例结构与设备管线实体模型
5 号楼新加楼板及结构补强
5 号楼一层扩展部分
5 号楼新加二层楼板及结构补强
结构补强斜撑
站在 5 号楼露台看北立面
5 号楼通向平台的楼梯
4 号楼加建平台
5 号楼办公入口
4 号楼与 5 号楼之间的廊桥
项目图纸
总平面图
一层平面图
4 号楼平面图
5 号楼平面图
4 号楼剖面图(场地)
5号楼剖面图(场地)
4 号楼剖面图
5 号楼剖面图
5 号楼详图
项目名称:交通物资仓库改造
设计单位:亘建筑事务所
主持建筑师:薛喆、范蓓蕾、孔锐
项目地点:上海静安
设计时间:2017.05-2018.01
建造时间:2017.11-2018.09
类型:改造
功能:办公
建筑面积:4500 平方米
项目建筑师:刘洋
设计团队:陶舒婷、王诗羽、冼浩辉、郭正浩
结构顾问:张准
机电顾问:万华军、潘珅、刘剑平
摄影:陈颢
▼ 网站最新 24 小时精彩项目集锦
更多海量精彩阅读
客服
消息
收藏
下载
最近








































