查看完整案例


收藏

下载
"精神只有在不成为支撑物时,它才会自由。"
——摘自卡夫卡的《变形记》
卡夫卡的那个年代,在世俗的纷繁压力下,人们渴望自由,他笔下那只“荒诞的甲虫”就像是人们寻求自由的一个出口。而现在,自由仍是人们不遗余力去追求的渴望,人们试图在茶酒、游戏、舞曲、运动等消遣中获得自由的可能,而酒吧,便是其中一个“出口”。
在往常的印象里,酒吧是一个狂欢夜晚的代言,歌舞升平;又或者是一方清净的精神场域,疗愈人心。而这座落址于深圳后海的渡悦笙酒吧,在李益中空间设计的笔触下,被赋予了当代酒吧设计的新定义。
从商业逻辑来判断,渡悦笙的选址其实并不足够理想,其周边高档居住社区居多,而办公、商业功能区域较少,周围的几家同行生意也颇清淡。因此,设计将渡悦笙的定位多元化,引入“城市客厅”的概念,一层的“会客厅”与三层的酒吧分时段经营,构筑一个既可社交沙龙,又可会友酣谈、酌酒享乐的小资酒馆。这里没有嗨吧那么喧嚣,也不似清吧那么寥淡,取舍居中,恰如在繁华都市中的惬意小歇。
基于这个出发点,设计师李益中尝试在空间中,以设计的自由唤醒生活的自在,令每个到渡悦笙的人,都能享受一刻属于自我的自由。设计从空间本质跳脱而出,超越其间复古而雅澹的美学意涵,再返回空间精神自身,达到逻辑与美的具体统一,由此予人的艺术体验从感官进入精神,从表层到深度地感受自由,触达自由。
空间策略与设计自由
|首层
行走在街边,人们不难被这深色而富有情调的店面吸引过去,通过折叠打开的玻璃窗,一眼便能窥见其内的雅韵。这是渡悦笙给人的第一感受——静然,优雅,还有些许浪漫。
入门居中迎来的是一坛璨斓如阳的花束,垂坠而下的琉璃吊灯,瑰丽而不失梦幻诗意,令初入渡悦笙的客人凝聚出视觉艺术与精神上的审美期待。
这原先是一座三层的中医养生馆,在思考如何改造成一个吸引人流量的酒吧时,李益中做出了大胆的空间规划。他将二层大部分空间舍弃,仅留洗手间的布局,令一层空间得到足够的挑高,形成高敞开放的“会客厅”,以彰显其公共性及尊贵感。
"作为周边居民社交会客功能的一种补充,这个小型城市会客厅应该是一个有调性的、舒适惬意的、慵懒的沙龙空间。"李益中思索道。设计从场景氛围营造着手,用复古而大胆的色彩与装饰,为空间带来浓郁的怀旧韵味。黑色是神秘而深邃,蓝绿色如男人的西服般沉静而稳重,红色似女人的旗袍般柔美中有热情,而酒樽、书册、挂画、雕塑小品等陈设井然有序,共同成就空间独特的魅力,令每个落座的客人,都沉醉在这片意境的深里。
空间那幅与天花板同高的“巨型瓢虫”,是一处聚焦眼球的精彩手笔。你会带着疑问去欣赏这只散发着荧光的“瓢虫”,或许会从酒吧的属性联想到著名乐队 The Beatles,又或者从怪诞的表现主义与现实主义联想至卡夫卡笔下那只甲虫……每一个解读因人而异。它看上去与酒吧格格不入,却又仿佛是量身定制般的存在,以其不凡的艺术张力表现出耐人寻味的精神意涵。
而当我们向李益中先生问及这只“大瓢虫”时,他只是笑了笑,摆摆手,留下一句“这只能看你自己的理解了”。就像艺术家向来不屑于写自己的作品介绍,有些人能理解创作者的意图,有些人却对创作的本意有误读,但却丝毫无碍于作者创作的自由精神。
退至入口处经由电梯可直达三层,这里是带来沉浸式体验的酒吧,空间情绪的铺陈在这里达至极浓,可以开启深夜的微醺与内心的自由释放。
经典皮座的选择令空间的不羁艺术感更为浓郁,红与黑的搭配更显摩登优雅,就座区的规划较一层更为紧密,配着爵士乐曲的表演、霓虹舞台的氛围,空间将人与人之间的距离压缩,将人们内心的忧虑与疲惫弥散而开。
“自由是精神在自身纯粹的呈现。”李益中如此说道。设计将思考的切面从生活中的社交场转至精神的寄托所,铺叙生活的艺术可能,空间在视觉上的迷人,听觉上的深情,给人带来内心的共振,从而发掘心底最真实的自我。
设计后记
丨
不被定义的艺术
每个时代都有属于每个时代的精神与节奏。我们生活在一个开放多元的时代,艺术是自由的,文化是自由的,精神更是自由的。在这样的境况下,我们遇到一个商业空间——渡悦笙酒吧,让我们有机会运用设计去创新商业运营,同时通过为空间铺叙内涵,去呈现这个时代下的精神自由。
我们希望用设计定义空间,但意图不去定义其中的艺术精神。我们希望进入这个空间的每个人,能基于自身的积淀与感受,去以自身特定的观念与想象,形成对空间特定的审美情感。
我们希望通过我们的设计后,带给人的体验感是:当他们踏入渡悦笙的那一刻起,便能从日常的纷繁与压力中脱身而出,在这里获得一场灵魂的自由憩息,畅言酣谈,寻回自我。
至于那只人们总会问到的“大瓢虫”的意义,不可否认,它无疑是空间中最为显眼的亮点,至于为什么用它,我依然会卖关子,为大家保留思考的自由性。
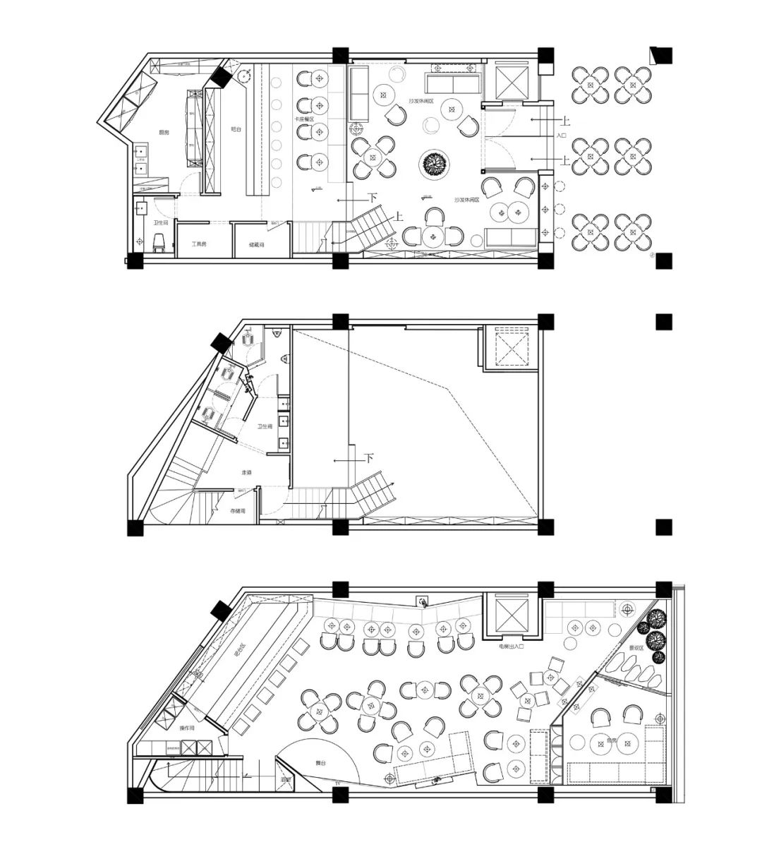
▲平面图
项目名称 | 渡悦笙酒吧
项目地址 | 广东 深圳
项目面积 | 300㎡
室内设计|| 李益中空间设计
软装设计指导|| 李益中空间设计
总设计师|| 李益中
设计团队|| 李益中 陈宥林 林超
摄影 |山外视觉 山和城摄影
李益中空间设计成立于 2012 年,总部位于深圳,在成都设有分公司,是一家有策略思维、追求空间气质的精品设计公司,致力于地产设计、文旅设计、商业设计、私人住宅的研究及高级定制化设计服务。
公司现有 100 余位专业设计师,秉承“策略思维,人文气质”的设计理念,在建筑与室内设计专业以理性科学的设计策略及方法,为客户提供设计与工程的最佳解决方案。在设计中,我们亦关注当代美学、文化、艺术与功能的合一,根据每一个空间的特性,塑造其俊逸灵动、润雅圆融的人文气质。
近期作品
西安万科翡翠国宾销售中心
重庆中海天钻
重庆尊爵堡二期别墅私宅
福星惠誉 K2 写字楼
大理浥尘客舍点击链接查看相关阅读禅意美学:简素之美,不惹尘埃绿地香港·樾湖书院:风雅如斯,诗意化境趣味性、艺术性、启发性的儿童家具展示空间建发·中央湾区:于当代中创新,定义生活武汉华润万象城商业展示中心:当代艺术,人文风尚中南锦时布拉格商业++ 住宅样板间
客服
消息
收藏
下载
最近






















































