查看完整案例

收藏

下载
音乐之家音乐厅位于奥地利因斯布鲁克市文化中心的核心位置,毗邻 Tyrolean 国家剧院、因斯布鲁克大学、皇宫、博物馆、当地地标和一系列受保护的古树。
它作为一个连接空间,被视为一个开放的文化交流场所,在这里,音乐家、观众、老师、学生和城市大众可以进行思维的交流碰撞;在这里,无论你是当地居民,还是国际友人,只要你有想法,就可以占据一席之地;在这里,面向所有年龄段的各种类型的表演交织上演。
建筑外观
Roland Halbe
音乐是这个空间里统一的元素,也是本建筑设计的灵感来源。
室内空间容纳了十个彼此独立且曾经四散在城市各处的音乐机构、一间拥有 550 个座位的音乐厅、一间更加私人化的可容纳 100 人的音乐厅、一系列排练室、宽敞的支撑空间、教室、活动会议室、办公室、餐饮区、一间内容丰富的国家音乐图书馆和一系列享有因斯布鲁克城市和阿尔卑斯山脉全景的室外露台。
根据国家剧院的主任 Johannes Reitmeier 的说法,这是一个“无与伦比的、特色鲜明的建筑项目”。
建筑外观,造型简洁,和谐地融入了其优越的周边环境之中
Roland Halbe
这座建筑面积 85,000 平方英尺的建筑体量外观造型简洁,然而在其表皮之下,却是一系列极为复杂的功能空间。
该建筑和谐地融入了其优越的周边环境之中,不仅可以作为邻里周边的功能性空间的补充,更能为居民们提供丰富的景观和城市映像,其通透的建筑首层和开阔的开放空间模糊了室内外空间的边界,在室内空间和外部街道之间创造出视觉上的交流。
位于建筑室内的人们可以欣赏到外部的城市景观,而此时建筑清晰的内部空间组织也成为了一个竖向的城市景观,街道上的行人可以轻而易举地看到其内部景象。
釉面陶瓷立面
Roland Halbe
大音乐厅全部采用玻璃幕墙,被打造成了一个通透的空中舞台,而建筑的入口大堂则成为邀人入内的礼堂空间。
总而言之,建筑的设计概念是将其内部空间的活动完全展示给城市,因此不仅能够吸引到前来观看演出的人,更能吸引普通的市民。
南立面外观,覆以陶瓷薄片的玻璃立面与建筑不透明的釉面陶瓷表皮形成鲜明的对比
Roland Halbe
音乐之家的开放性通过光影对比,以及通透立面和其不透明的釉面陶瓷表皮之间的对比变得更加引人注目。白天和夜晚的不同光环境也使得立面变得生动活泼,根据天气和时间的不同,挤压面板展示出一系列复杂的线性图案,而这些线性图案的设计理念则出自由四分音符三连音所组成的音乐节奏。外立面的釉面陶瓷表皮可以反射阳光,呈现出从黑色到浅棕色的荧光色泽,而在玻璃外立面上也覆以类似陶瓷薄片,以创造一个连续的遮阳面板。
通高的大堂空间,上方设置天窗
Roland Halbe
内部空间则围绕着一个通高的大堂组织,在大堂顶部设置天窗,从而使建筑的中心空间充满了自然光线。
观众和游客们可以通过巨大的主楼梯进入表演空间,同时楼梯上还设有宽敞休息平台,人们可以在这里进行社交活动。
这便是音乐之家的核心公共空间,它是一个集交通流线、寻路系统和方向定位为一体的开放空间。
开放的大堂空间及室内巨大的主楼梯,楼梯上设有宽敞休息平台以供社交活动的进行
Roland Halbe
此外,建筑室内的其他位置还设有两个楼梯,以便于人们在整个空间内穿行;直接通向 Tyrolean 国家剧院的通道位于建筑的北侧。
该建筑的顶层则是公共图书馆和将这座音乐之家与其宏大的周边环境连接起来的室外观景平台。
可容纳 500 人的大音乐厅,墙壁的内表面采用暖色调的木材作为饰面。
Roland Halbe
陶瓷镶板线型覆在音乐厅墙体的外表面上,而与此同时,鉴于隔声和表演环境的要求,音乐厅墙壁的内表面采用暖色调的木材作为饰面;较小的音乐厅则覆盖着好看的黑色天鹅绒般的材料。出于对声学和隔振方面的考量,每个音乐厅空间都使用了密封的盒中盒结构。
可容纳 100 人的小音乐厅,空间更加私密,墙壁内表面覆盖着黑色天鹅绒般的材料
Roland Halbe
这座最为先进的建筑不仅突出了因斯布鲁克这座城市的音乐氛围和其在奥地利境内崇高的音乐地位,更通过其将日常生活与流行文化和高雅文化无缝连接的特点,将历史与未来联系在了一起。
排练室,墙壁呈折线形以避免颤动回声对声音产生不利影响
Roland Halbe
音乐厅墙壁外表面细节,采用线型排列的陶瓷镶板
Roland Halbe
建筑师与慕尼黑的 Müller-BBM 共同发展了声学概念,最终在大量音乐厅室内设计案例的基础上,得到了这座具有出色声学设计的建筑。
建筑南立面夜景
Roland Halbe
建筑入口立面夜景
Roland Halbe
建筑入口细节
Roland Halbe
建筑局部夜景,首层采用玻璃立面,营造一个通透的空间
Roland Halbe
室内天花板以及钢框架中的石灰石饰面外壳采用特殊的木结构元素,确保最佳的听觉体验。
可容纳 500 人的音乐厅的声学有效体积大约为 4,000 立方米,满足了中频范围(500-1000 赫兹)内的最佳混响时间(1.8 秒)的要求。此外,排练室的隔墙略微曲折,以避免颤动回声对声音产生不利影响。
项目图纸
区位图
ARGE Strolz – Dietrich | Untertrifaller
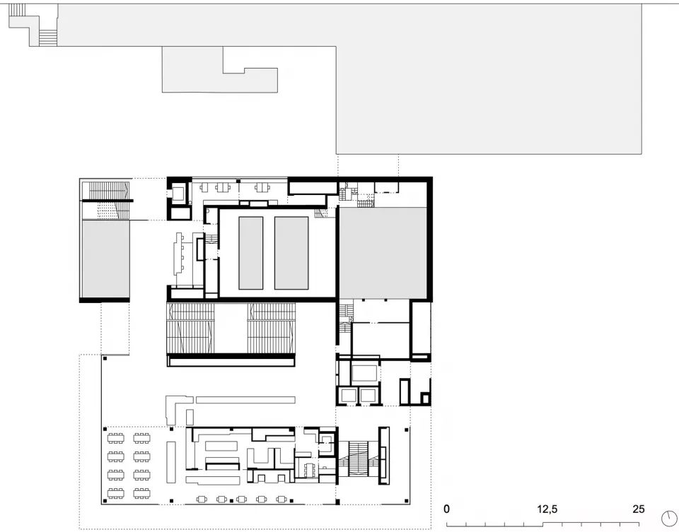
一层平面图
ARGE Strolz – Dietrich | Untertrifaller
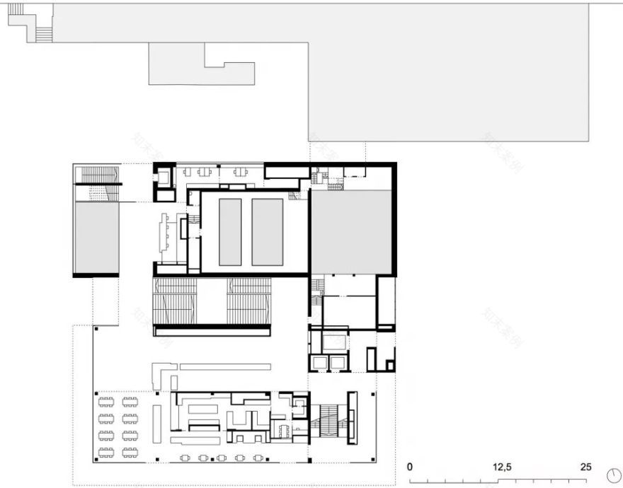
二层平面图
ARGE Strolz – Dietrich | Untertrifaller
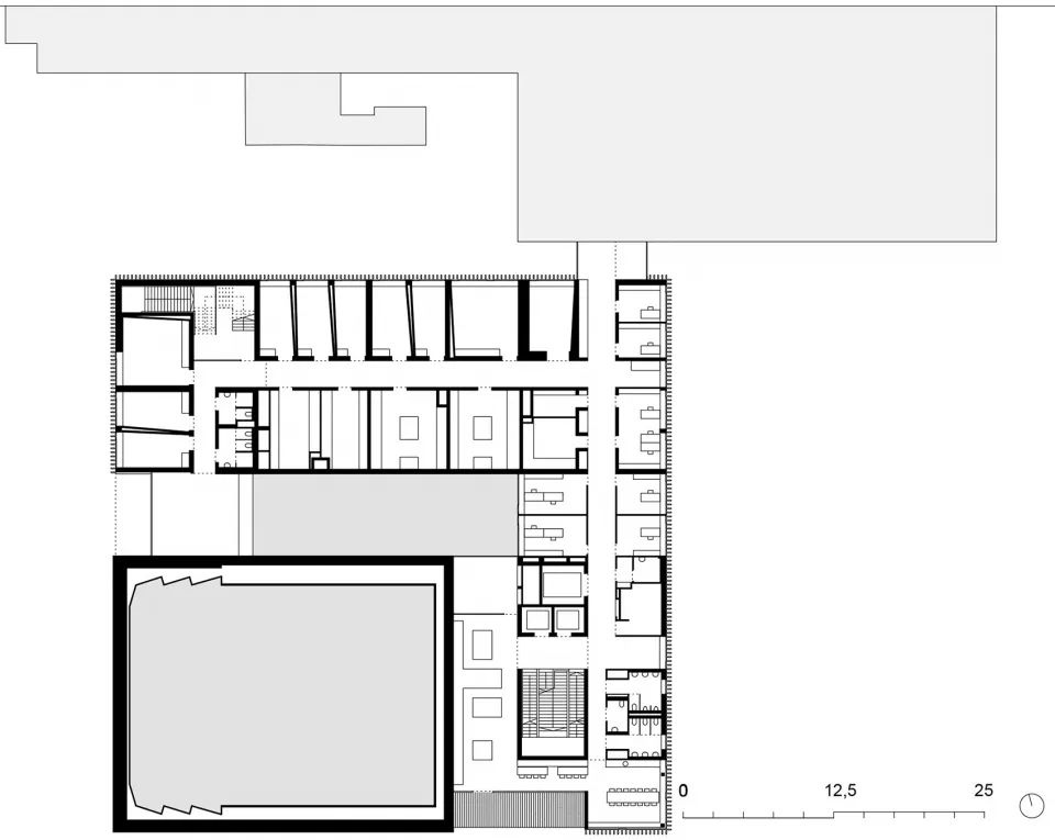
三层平面图
ARGE Strolz – Dietrich | Untertrifaller
四层平面图
ARGE Strolz – Dietrich | Untertrifaller
五层平面图
ARGE Strolz – Dietrich | Untertrifaller
六层平面图
ARGE Strolz – Dietrich | Untertrifaller
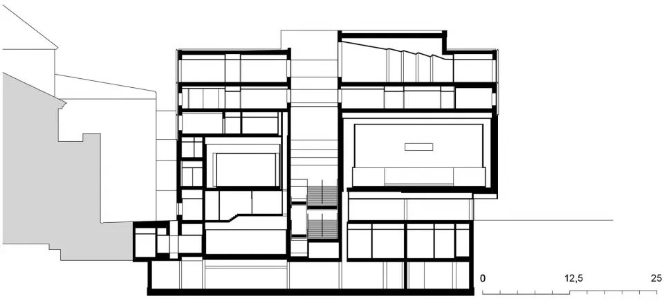
剖面图
ARGE Strolz – Dietrich | Untertrifaller
Client: Innsbrucker Immobilien GmbH & Co KG
Location: A-6020 Innsbruck
Architecture: ARGE Strolz – Dietrich | Untertrifaller
Project management: Peter Nussbaumer, Andreas Lehner (DUA); Johannes Alge, Ferdinand Reiter (Strolz)Competition: 2014, 1. prize Erich Strolz
Construction: 2015-2018
Area: GFA 15.700 m²
Capacity: Great Hall for 510 persons, Small Hall for 100 persons, administration and rehearsal rooms, library, archive, restaurants
Intimate Theater: auditorium for 220 people, stage tower, black box, cloakrooms, workshops
University, Mozarteum, State Conservatory: Ensemble, office, class and seminar rooms, event hall for 120 people, library.
Partner: site management: Malojer, Innsbruck /structural engineering: Toms, Wien /geotechnics: Teindl, Innsbruck /building services: Mikfey, Wien & Ortner, Innsbruck /electronics: Brugger, Innsbruck /light: Ragg, Innsbruck /building physics: Spektrum, Dornbirn /facade: gbd, Dornbirn /fire protection: IBS, Innsbruck /acoustics: Müller-BBM, Planegg near Munich /stage: Kottke, Bayreuth
“原文链接:
▼ 网站最新 24 小时精彩项目集锦
更多海量精彩阅读
客服
消息
收藏
下载
最近




























