查看完整案例


收藏

下载
我们所期待的销售中心
不是临时卖场
是售卖梦想与远景的
人文生活体验场所
作为历史文化名城,常州儒风蔚然,为东南冠,其名仕之多、影响之大,堪称空前绝后,在经学、诗词、散文等领域涌现出大批杰出的作家及学术领袖,史称“五派一国”。
融创龙宸映坐落于常州邹区,项目地理位置优越,周边商业、文体、教育、医学,生活配套成熟。
项目基于 IAMI 融创生活新主张理念,前期通过大量资料调研,力图发现主流人群的审美特点,剖析消费者的视觉心理倾向,最终结合融创的设计情怀完成品牌产品定位,告别传统的售楼处场景,让销售中心变身博物馆,打造新文化、新体验的场景。
“设计++ 服务”成为项目的特定视觉符号,将品质作为重要的出发点,使售楼处别具风味,设计让生活方式的多样性展示,演绎了当代的文化潮流。与时共进的创新能力,是融创基于人、自然与企业责任的再创造。
从平面规划上来看,整体项目分为一楼和二楼,风格类似于中式建筑,设计师基于多角度的思考,采用在一楼室内植入不同的主题场景的手法,使空间变得更有仪式感、层次感,让客户在营销中心得到更长时间停留,同时也增添了空间的文化气息。
项目的创新处在于把核心区域放在二楼,沙盘区、洽谈区、水吧区三体联动,空间层层叠进,引导观者缓步向内,激发客户进一步探索的欲望。空间的沉浸式共享,饱含了生活的多样性,传达着对全新未来社区生活方式的理解和向往。
丰富悠久的文化历史造就了这一方土地的人文荟萃,设计师用当代设计回应城市文化脉络,积极针对项目定位、客户需求及商业价值开展设计,着重体现空间的品质布局与设计人文情怀,结合生活场景以及艺术品的呈现,打造多维度体验主题、充满人文气息的展示区。这样的场景转变,正是满足了国人从“将就”到“讲究”的生活态度的改变。
壹清润·看庭前花开花落
前厅宽敞明亮,设计为了寻找空间本质,避免繁琐的造型,选取纹理蜿蜒的大理石为空间主材,配以金属定下室内氛围的基调,自然的肌理、简洁的色彩,在有序中追求无序,释放空间的无限可能。
在柔和的灯光下,温润的木饰面、硬冷的金属、通透的艺术玻璃,勾勒出一个温暖且富有层次感的空间,恰到好处的让厅内质感弥漫出雅致之美。
贰
入境·听梧桐叶落细雨敲
空间的灵魂是人与自然的关系,以时间、空间为纽带,将艺术、生活结合并再创作。设计用人文气质美学营造有意境的空间,自然的光影随着时间流转变换,历经岁月打磨的石材与千锤百炼的金属结合,让人们感受自然和现代文明的温度,用心触碰千年文脉。
砚一池烟雨,清韵桃源。
简单的空间,呈现出一番沉浸式的体验场景。
联通空间是仪式感最重要的承接部分,细致的金属网格屏风隔断在转场中增加室内的趣味性与互动性。
静坐茶室,闭目感悟清茶禅音,聆听外部空间的步履细语。
设计旨在于虚实之间促进空间与人物两者的动态对话与有效联系,围而不合,隔而不断。
儿童区也设置在此区域,让家长能够随时观察到孩子的状态,设计的温暖于细节处无声表述。
叁素染·观天外云卷云舒
拾阶而上,联通室内的金属编织网由上而下,繁复而不杂乱,与接待台相呼应的同时又赋予空间递增的阵列统一性。
临空垂泄的吊灯通透别致,在行走间形成新的视觉体验,清风拂过,水波纹不锈钢打造的水景,一片盎意,空灵中带着对生活的回响。
沙盘区模拟中式建筑屋檐风格采用折叠顶拓高空间竖向尺寸,同时也使空间增加层次感,发光灯膜的材质特性、柔化光感彼此烘托,构成别具一格的风景,形成项目中最主要的视觉空间。
不同材质的对比和室外自然天光的洒落,干净利落的设计语言凸显出项目最主要的品质感。
肆悠然·数杨柳絮飞和风扶空间的回游动线带给人如中国园林“虽由人作,宛自天开”的精神境界,通过风景开合、空间对比,引导暗示,藏与露、渗透与交叠等手法来表达尊崇自然、尊重人文的精神,营造“一步一景,一景一精”的空间情趣。
洽谈区顶面的木饰面抽槽有序叠进,增加空间细节,温润了一方水土,呈现出一番沉浸式的场景。
编织网悬挂玻璃之上,自然光线的远近虚实,在室内自由游走产生碰撞和融合,推动一座兼具序列感与典雅性的艺术空间生长。
空间穿插体块于其中,让可视范围得到延伸。
生活是对话、感受世界,是与自身外一切的互动交流,其一体两面在深度洽谈区层层上演,一面朝外,一面向内。
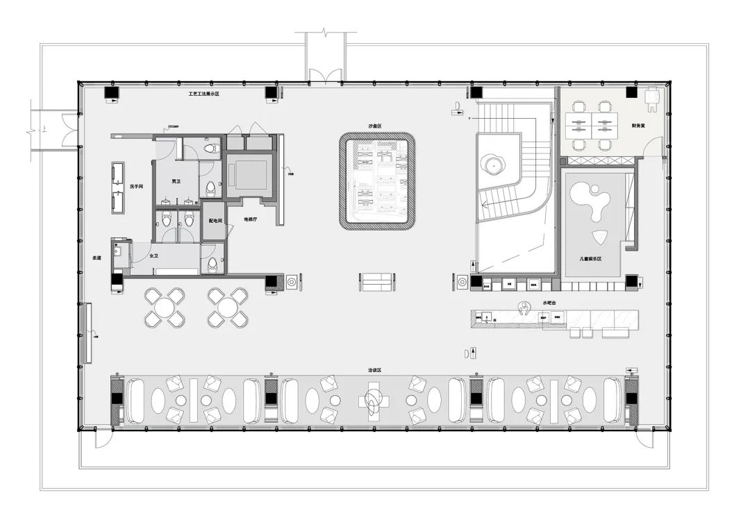
△一层平面
△二层平面
项目信息
项目名称:常州·融创龙宸映售楼处
业主信息:融创集团
甲方团队:融创上海集团苏南城市公司
硬装设计:南京我们室内设计有限公司
主案设计师:鹿艳、汤梦奇
设计团队:郭明露、刘亚萍、杨帆、苏兰兰、黄方明、邢祥祥
项目面积:773m²
摄影团队:ingallery
我们是一家国内前沿的室内设计公司,致力于从事样板间售楼处精装修软装配套设计等高级定制化设计服务,项目遍布全国,多项设计成果备受地产行业和媒体关注。以梦想为马,与巨人同行,【我们】与绿地、融创、葛洲坝、金辉等强势企业形成长期战略合作,成为行业内富有影响力力和美誉度的集室内设计产品研发软装配套于于一体的设计方案服务商。设计项目
绿地。常熟翡丽云庭售楼中心
绿地。张家港城际空间站展示中心
绿地。武汉天河国际会展城
往期 回 顾
客服
消息
收藏
下载
最近





































