查看完整案例

收藏

下载
“形式追随功能”(Form follows function)是十九世纪 80-90 年代芝加哥学派建筑师沙利文的观点,这是功能论者的标志性口号。
功能决定形式,解决功能问题就是解决人们的使用的舒适性和便捷性。只有在解决功能的前提下产生的形式,才会有它的识别性,才会更适合这个空间,才会有更多的内涵,经得起推敲。这样的形式是独一无二的。
本案以“纯、净、舒”为意念表达,以风为介以水化形,意在表达空间的初心,风与水为自然之物,两者的融入使空间打造出最原始最纯粹的感受。纯于手法,净于色彩,舒于自然,展示空间讲究的是人与物的交互。设计师用波动的方式使空间的展示路线呈现出自然律动的变化,形成多种墙体,给人于不一样的展陈体验感。
在此展陈方式的构建下,最简的表达无关于形式。单一水泥色为主基调足以展现空间,风与水化为柔美的曲线贯穿整个空间,高低参差的表达更是打破传统,注入新流,空间不同高低各异。如此不仅让各区域互通又既有一定的私密性,同时则拉伸客户的视野,使空间的体验感强化。
随着信息化传播的扁平化,人们的视觉越发变得“挑剔”起来。对于“抽象”越发喜爱,为此入户接待区,我们以“龙卷风”的形式呈现,以先扬后抑引人窥视和遐想的方式,展现出独特的形态,创造出一种具有媒介特质的界面和交流空间,让人耳目一新。
与周边灰色空间包裹体形成对比,沉静不失跳跃,冷静与炽烈在这里统一,让人期待空间的进一步展示。同时对应了龙源建材的公司名并用此 LOGO 的蓝色衬托成为整个空间的主体,天花的镜面让风化为龙冲顶而上,扶摇直上。
不止于展示,我们将产品的特性融入空间的形式当中。让产品引起人的注意,使它自动成为话题。位于泡茶区的自动感应龙头从天而降,如瀑布般傾泻而下。静坐于此,不远处风口传来徐徐清风。如珠宝般的金属配件展柜,如春笋般破土而出。
空间的表达往往失于细节的处理,在不破坏整体造型的情况下,把其他区域以暗藏门的形式,以此达到最大化的简而不单。嵌入式的产品展示让每个产品有自己对应的“专座”,让产品的商业特性焕化为展示特性。
形丨界
Project Name |项目名称:NATHER 兰舍中央新风
BNG 百年不锈钢水系统
Project type 丨项目类型:品牌体验店
Design Institute 丨设计单位:B&TDESIGN 本言
Design Director|设计总监:黄汉良
Construction unit 丨施工单位:B&T DESIGN 唐潮
Responsible for construction|施工负责:谢文白
Project area|项目面积:98㎡
Project time|项目周期:2020 年 12 月--2021 年 3 月
Project materials 丨项目物料:欧洲 NATHER 兰舍新风、百年不锈钢水管、美國 BEHR 涂料、美國 MEODED 艺术漆
Space photography|空间摄影:龙文
文字/图片:本言设计
DESIGN PLAN
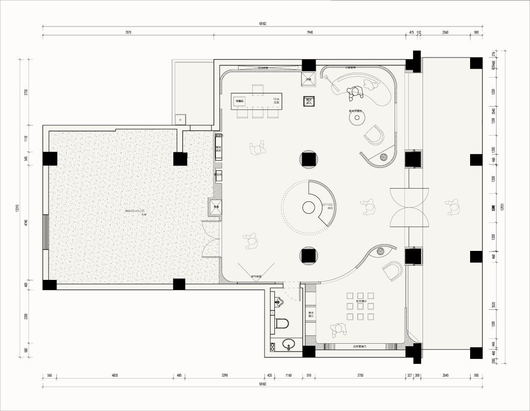
平面图
DESIGNER
设计师介绍
设计总监|黄汉良
日本东京艺术大学研修
中国建筑学会室内设计分会会员
CIID 52(泉州)专业委员会 委员
CIID.52 泉州分会年度优秀设计师
40UNDER40 中国(福建)设计杰出青年
谢文白
COMPANY
公司介绍
B&T DESIGN 是一家以时尚、创新为核心的室内设计公司。我们通过专业的流程及创新的视角为客户提供高品质的设计服务。多年来活跃在时尚、创意产业相关的各领域,致力于建立更好的品牌形象、提供专业空间设计、并实施高标准的设计方案,创造真正意义上的品牌空间设计,为业主创造最大的价值而不懈努力。
致力于为业主争取更大的附加值及生活品质优越性。我们始终坚信,一个优秀的空间设计,必须彻底服务于企业及居室的使用,最终亦必须间接为业主带来量/利润及居室生活品质的提升。
2017 年——金堂奖室内设计大赛商业空间年度优秀作品
2018 年——筑巢奖商业空间优秀奖
2019 年——金堂奖室内设计大赛商业空间年度杰出作品 HI-Design 设计大奖赛福建区金奖、祝融奖福建赛区入围奖、中国新商业空间大奖 2019 年度 TOP30
2020 年——香港亚太区室内设计大赛银奖、入选 CUN 匠中国青年设计十二作、入选 ELLEDECO《2021 中国室内设计年鉴》、芒果奖中国商业创意奖、金堂奖年度杰出作品、红棉奖年度最美极简空间奖
欢迎投稿作品
不忘点击
客服
消息
收藏
下载
最近








































