查看完整案例

收藏

下载
悠闲的下午马路边,树荫下一壶茶,三五好友这是一个关于成都老茶店的“回归市井”之作也是一个“老楼改造”项目
这是一个关于成都老茶店的“回归市井”之作,也是一个老楼改造项目,而关于成都的记忆总是少不了盖碗茶及藤编椅---悠闲的下午,马路边,树荫下,一壶茶,三五好友……然而这些已然逐渐变成了回忆,最后也仅仅是回忆而已。现在茶店逐渐搬进了商业综合体,同时也失去了原来的“味道”。
本次设计是一种回归,一种关于“味道”的回归。
既然是回归,照搬传统的东西是没有意义的,就像是一位留学后回到故乡的学者,他出身市井,又回到市井,他已不是原来的“他”,但他还是原来的“他”。
回到市井,回到了马路边
重新回到市井,回到马路边,只要抓住传统茶店的“本质”所在,“味道”就不会丢失,在此基础上,用现代的东西去诠释它。
设计中用到了大量的金属和玻璃,这些材料是现代的,优势也是显而易见的,我们要敢于运用,发挥它们应有的作用;主题的色调是孔雀蓝,搭配金属色作为点缀;外立面垂吊的绿色金属装置,它的灵感源自风中摇曳的竹,在风吹动下,彼此碰撞发出清脆的声音,与周围环境形成听觉上的互动。
属于茶的实验室
首先进入茶室之后,视觉第一焦点落于中心点的是一个类似于实验室的操作中心,承载着各种泡茶、制茶设备,这里是整个茶室的灵魂,是金楼阁的灵魂所在。而往右边行走,通过两个竖向造型的分割,是一个金楼阁店中店,于此,在斑驳岁月的老砖墙上承载着茶、礼、品、器 4 个说明。
同时,此处还有试饮区、茶具展示和茶礼购买,通过色彩、造型构成吸引人前去,再加一些文字指导,让人产生购买冲动。
往左边行走,就是饮茶区域,开放的座位设置,有序的空间构成让顾客安静的坐在每一个位置品茶,前后通透,竖向线条分割每一个区域。
在进入庭院与卫生间的中央,是一整个空间的中心点,通向 2 楼。
设计选材,用户体验
地面采用 10 年前流行的水磨石作为回归材料,墙面造型极简,大面积乳胶漆加一些钢质材料,保留了很多老建筑上的红砖,加一些通透的超白玻璃,成本造价控制的极有性价比,打造出一个经典,不易过时的空间。
茶室的一股清流,区别传统的茶室、网红的茶室,它带给人的是另外一种情怀,安静内敛。空间设计取材于中国传统文化,回归于东方美学,是一种全新的茶饮空间。东方的美用新的材料、新的造型表达,在一个老街区,又和附近的店完全不相同,是一种新的消费体验。
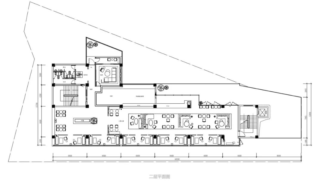
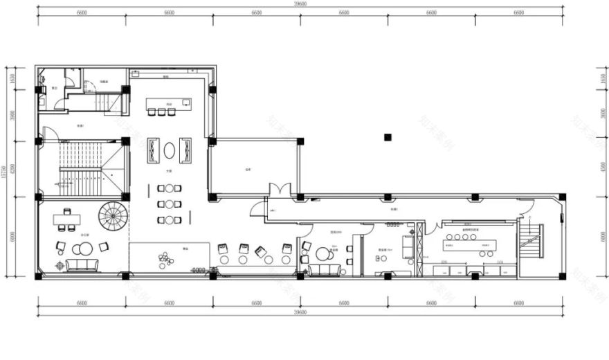
平面图
1F
2F
-1F
Project Name|项目名称金楼阁茶室
Location |项目地点:四川省成都市—郭家桥西街 8 号
Project area|项目面积 1500m²(室内++ 室外)Design company|设计公司成都赤橙设计有限公司
Chief Designer| 主创设计师姜巍庆
软装设计师林丰
Photographer | 摄影师季光
文字图片:赤橙设计
DESIGNER
设计师介绍
姜巍庆
成都赤橙设计合伙人
赤橙设计,RED ORANGE DESIGE,以当代的感官体验为设计视角,进行设计研究与实践,强调空间里的文化与功能,在符合当代审美需求的前提下,通过设计来造就更好的生活形式,借用设计的语言来表达我们的世界观。提供符合现代商业趋势下“新生态”文化内容的建筑、室内、景观、灯光、艺术产品设计等服务。我们拥有一支集建筑、室内、艺术、品牌策划等复合型专业团队,服务于酒店、民宿、商业空间、企业品牌服务等领域,致立于建立完整的设计服务链。
欢迎投稿作品
客服
消息
收藏
下载
最近







































