查看完整案例


收藏

下载
点击蓝字“知行 Design 中华优秀作品第一发布平台!
会所以现代艺术和东方意境之底蕴为主题,建筑科技和绿色家园为依托,旨在打造一个承载中国历史文化价值和现代科技相结合的新典范空间。整体设计涵裹传统中国的端庄,运宋人丘壑,泽唐人气韵,并结合现代人的审美视角,对古典内蕴重新审视,主动寻回设计的文化自觉意识。
Based on the essence of modern art and Oriental artistic conception and based on architectural technology and green home, the club aims to create a new model space that combines Chinese historical and cultural values with modern technology. The overall design includes the elegance of traditional China, the elegance of yunsong people, the charm of ze tang people, and combines the aesthetic perspective of modern people to re-examine the classical connotation and actively find the cultural consciousness of design.
▲ 王韦《聆香》·收藏版号:7/8
菩提无树,明镜非台。香无形,禅有意,思无邪。
当代中国圈是当代置业运营的专属的高端私密性社交圈层,是为当今财智人士的事业、生活、文化提供一个全身心投入放松的心灵场所。
Contemporary China circle is the exclusive high-end private social circle of contemporary real estate operation, which provides a spiritual place for the cause, life and culture of today’s financial and intelligent people to put all their efforts into relaxing.
走进会所,即能感觉到设计师注重光影的表达,巧妙的天窗设计,将自然光引入室内,与会所的藏品《温暖向善》相呼应,自然中夹杂一丝神秘的东方韵味,让整个空间彰显出人文内涵。
Walking into the club, you can feel the designer pay attention to the expression of light and shadow, clever skylight design, the natural light into the interior, the collection "warm to the good" echo, nature mixed with a hint of mysterious Oriental charm, let the whole space highlight the humanistic connotation.
《数字 Figure》·雕塑家野口勇作品,创作者相信,通过雕塑和建筑,人们可以更好的理解与自然的斗争。
"科技建筑·绿色家园·城市向美"是当代置业的企业使命。恒定的温度与湿度、安全感与便捷度,润物细无声,使这方静怡之地既有江湖之远的神秘感,更有尖端科技带来的舒适感。
"Science and technology building, green home, city towards the United States" is the corporate mission of contemporary real estate. Constant temperature and humidity, sense of security and convenience, moistening things silently, so that this quiet place has the mysterious feeling far from the river’s lake, but also the comfort brought by cutting-edge technology.
会客区空间开阔大气,色调简洁线条明朗,细节处装饰彰显匠心。采用智能中控、智能天窗系统,随着室外温度的变化,自动调节室内温度环境,放松身心,怡然自得。
Receive a visitor area space open atmosphere, tonal and concise line is anacreontic, detail place adornment reveals craftsmanship. Intelligent central control, intelligent skylight system, with the change of outdoor temperature, automatically adjust the indoor temperature environment, relax body and mind, comfortable.
绿荫之下,是一座座古朴的雕刻屏风,花鸟鱼虫、童趣嬉戏,将自然景观与人文艺术巧妙结合,即使在室内仿佛也能感受到草木清新,风动蝉鸣。
Under the green shade, there are carved screens of primitive simplicity, flowers, birds, fish, insects and children’s fun, which combine the natural landscape with humanistic art skillfully. Even if you are indoors, you can feel the fresh vegetation and the sound of cicadas.
会所,会友之所,举杯交错,以酒会友。一幅复古屏风隔离出一方私密天地,有西式吧台三两好友比肩畅饮,也有中式圆桌众人围坐。在青山绿水中肆意人生,小酌怡情。
Club, the place of friends, toast crisscross, to cocktail party friends. A screen restoring ancient ways is segregation gives one party illicit close world, have western-style bar 3 two good friends are as good as shoulder to shoulder drink freely, also have Chinese style round table everybody is seated. In green mountains and clear water wanton life, drink pleasure.
▲ 水墨画·宋名道·《皈依》:心向佛,佛向心
居闹市之中,高压之下,繁华万象,始于你家门前。社区生活圈尽在眼前,感受社区价值和圈层价值。
Living downtown, under high pressure, bustling Vientiane, started in front of your house. Community life circle in front of the eyes, feel the community value and circle value.
当代中国圈是城市社区拥有一席之地,私享事业与生活的主场,是每一个人对居住的追求,这里汇聚着相似的品位、修养和志趣相投的人们,能满足圈层人群从生活到商务的种种需求。
Contemporary China circle is a place for urban communities to enjoy their career and life in private. It is everyone’s pursuit of living. It gathers people with similar tastes, accomplishments and interests to meet the needs of people in the circle, from life to business.
客厅一隅,是中式书房,文房四宝、浮雕立柜,深色原木纹装饰,简单不失雅致,厚重不失冷静,端的是闹中取静,修身养性。
Sitting room corner, it is Chinese style study, study 4 treasure, anaglio stand ark, brunet wood grain adornment, simple do not lose refined, massiness does not lose calm, end is noisy in take quiet, cultivate one’s morality raises a gender.
▲油画·王志新·《抓住梦想》:梦想犹如风筝已经放飞,抓住线就抓住了梦想
从更广泛的层面看,雅、新、古、智、巧,是会所的独特性所在,景只是开端,人文才是这方天地的核心所在,有古拙质朴感的材质,才能使人文特点演变为空间的符号,设计师在建筑环境里融入当代艺术与人文特色,展现出一个空间与人文共生共融的境象。
From a broader level, jas, new, old, intellectual, artistic, where is the club’s uniqueness, the scene is just beginning, the key of the humanities is the plot of the heavens and the earth, has the feeling of like plain material, to make the humanities characteristics of evolution for the space symbol, designers in the built environment in contemporary art and culture features, showing a space and humanistic sights of symbiotic harmony.
悠悠岁月中,永恒与不变一直进行着,唯一不变的是万变不离其宗的禅意。
Eternity and unalterability go on through the ages,The only constant is the ever-changing zen.
有人好酒,有人嗜茶。饮酒是肆意放纵,喝茶便是冷静自持。“半壁山房待明月,一盏清茶酬知音”。一排排多宝阁中的珍藏手工铁壶,精品茶具,珍贵茗茶,优美茶席,彰显了主人君子爱茶的高雅风范。以茶会友,红尘万丈三杯酒,千秋大业一壶茶。
Some are fond of wine, others of tea. Drinking is wanton indulgence, drinking tea is calm self-restraint. "Half wall mountain room for the moon, a tea reward bosom friend." Rows of treasure cabinet treasure handmade iron pot, fine tea set, precious tea, beautiful tea mat, reveals the master gentleman love tea elegant style. To tea friends, three cups of red wine, a pot of tea qiantongdaye.
部分精选软装单品
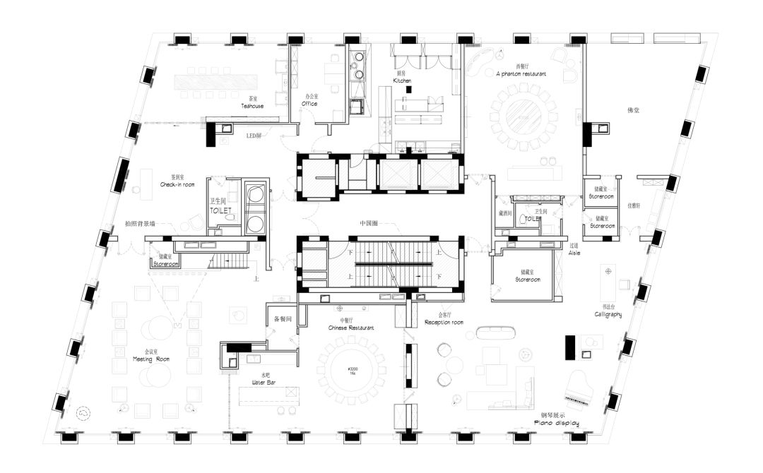
▲ 平面图
项目名称:当代置业·顶层中国圈
Project name: contemporary real estate · top China circle
项目地址:北京
Project address: Beijing
项目面积:800
Project area :800
完成时间:2019 年 8 月
Completion date: August 2019
开发商 : 北京当代置业
Developer: Beijing contemporary real estate
室内设计:深圳市零次方空间设计有限公司
Room design: shenzhen zero power space design co., LTD
软装设计:深圳市零次方空间陈设有限公司
Soft outfit design: shenzhen zero power space furnishings co., LTD
摄 影:释 象 万 合
Photography: interpretation of the elephant
知停。而行
不断探索|| 不断进步
原我们的分享可以帮助您
知行编辑|| 版权归原作者
客服
消息
收藏
下载
最近





















































