查看完整案例

收藏

下载
SHoP建筑事务所去年春季完工的美国铜大厦已经成为了曼哈顿东区的一个充满活力的新地标,这里曾是一个废弃的发电厂(第一大道与35,36街交汇处)。
这两座建筑单体由一座3层楼高的天桥相连,提供了一个有别与同社区内其他住宅楼的独特住宅生活体验。
建筑外观,坐落于曼哈顿林立的高楼间
美国铜大厦的设计借鉴北面联合国大楼的体量比例,两个铜制的塔楼在中间弯曲,在天桥上相遇,为城市的一个被忽视的区域带来了新的活力。
美国铜大厦的天桥是纽约市最高的天桥,也是数十年来首座建造的高空天桥,为塔楼的761套公寓提供了小型游泳池,休息室和其他共用设施。20%的公寓是以低于市场价格的价格进行出租。
建筑由两栋弯曲的塔楼及高空连桥组成
建筑的体量与周边大楼一致
两个建筑单体分别为41和48层,总共有761套出租住宅公寓。 所有这些公寓都配备了公寓品质的装修,定制的设计增强了每个单元的独特功能。
此外,客房均设有落地窗,为每一个主要方向都提供了畅通无阻的视野。例如东面的东河,南面的世贸大厦,西面的帝国大厦以及背面的联合国总部。
两栋塔楼,弯曲处由天桥相连
落地窗和玻璃幕墙提供全方位的景观视野
SHoP建筑事务所在同时满足严格的建筑占地限制,以及当下所批准的ULURP计划设定下,探索了多种双塔的体量与形态的设计。
项目最终的设计是两座相互倾斜的建筑单体,在相邻最近的位置处由天桥连接。
连桥近景
社区共享空间分别位于整个项目的三个层面(高度):在项目一层的附属广场上,有食品超市和通往相邻河畔公园的通道;在三层的天桥内,则是租户和客人的休闲中心,在天桥中还包括一个游泳池;在北塔的楼顶上,有一个无边缘的室外游泳池和一个楼天酒吧,提供了一个绝佳的位置俯瞰整个城市。
通过这些具有多层位的社区空间,SHoP以及我们的客户(同时兼施工经理)JDS Development Group,渴望为居住在美国铜大厦里的人们营造一个真正宾至如归的感受。
铜立面细部
SHoP还完成了大厅和公共区域的室内设计,以及包括木制品,橱柜等等。第二个游泳池和休息室位于东塔的屋顶上,而西塔的顶部则设有应急发电设施。
由于项目本身位于超级风暴桑迪期间被淹没的河边地区,该建筑群的设计可实现在突发自然灾害的情况下,电力可自给自足,并为每个单元提供内部电力。
大厅
游泳池
健身房
夕阳余晖中的大楼
夜景
项目图纸
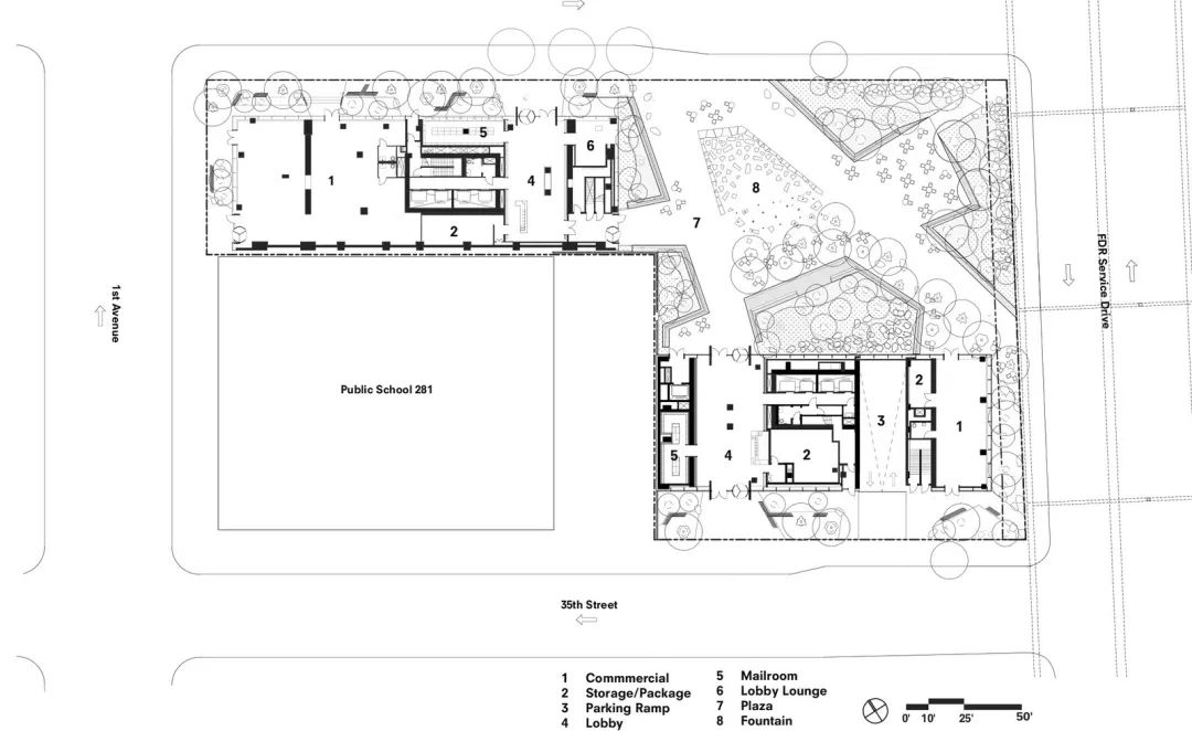
一层平面图
连廊层平面图
文本: 张旭(SHoP建筑事务所)
▼ 网站最新24小时精彩项目集锦
▼
更多海量精彩阅读
客服
消息
收藏
下载
最近



























