查看完整案例


收藏

下载
▲ 点击蓝字“知行 Design
知。鉴赏
新作-- 顶级办公空间气质 时尚|办公室
|知停。而行|
一个像素有三个基色点,在增色法体系中,色彩叠加越多,其越接近白色。
A pixel has three primary color points. In the additive color system, the more colors are added, the closer they are to white.
以像素化的水晶块展开空间,不同时段的自然光透过水晶块柔软流动。
Unfold the space in a pixelated crystal block, with natural light flowing through the soft crystal block at different times.
▲敞开办公区轴测图
Open office area for shaft mapping
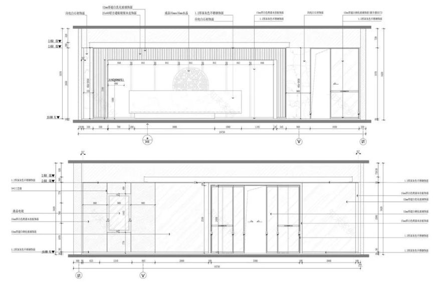
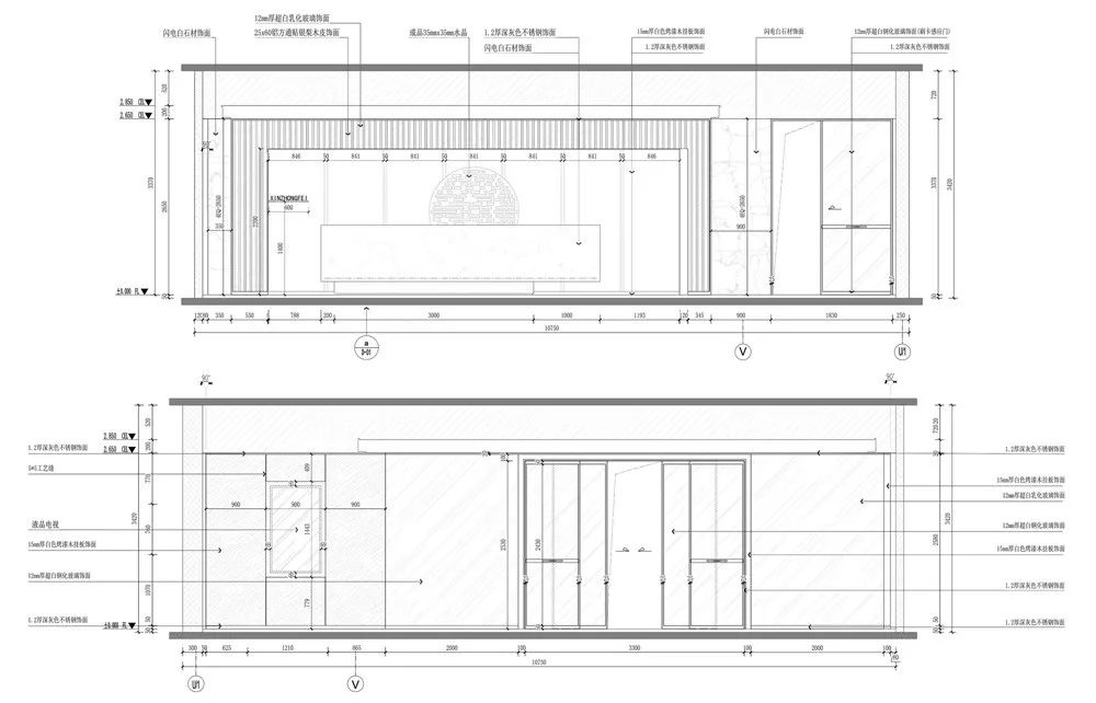
▲门厅
本案业主为新中飞照明电子有限公司,如何打造具有企业特色和满足员工心理归属感的办公空间,成为设计的思考点。
The owner of this case is xinzhongfei lighting electronics co., LTD., and how to create an office space with corporate characteristics and meet the psychological sense of belonging of employees has become the thinking point of the design.
空间从纯白色出发,使用了以木色、白色和枪灰色为主的简约配色,整体空间追求轻松、宁静之感,摒弃不必要的浮华。
The space sets out from pure white, used the contracted match colors that gives priority to with mu se, white and gun gray, integral space pursues relaxed, halcyon feeling, slam the door needless flashy.
▲敞开办公区
Open the office area
员工每天三分之一的时间在公司度过,清新实用是初心,也是生产力。
竭力打造一个为员工而设计的舒适办公环境,同时又能满足办公需要,更好地激发团队凝聚力和集体智慧,而人性化的设计与细节处彰显的趣味亦是本案设计的重点。
Employees spend one third of their time in the company every day.
We try our best to create a comfortable office environment designed for employees, and at the same time can meet the office needs, to better stimulate the cohesion of the team and collective wisdom, and humanized design and details of the fun is also the focus of the design of this case.
弧形玻璃盒子在空间穿插互动,为会议室和会客室提供了功能性,同时不牺牲敞开办公区的通透度。以比例控制节奏,用线条分割画面,赋予了办公空间应有的和谐与秩序。
Curved glass boxes interpenetrate and interact in the space, providing functionality for meeting rooms and guest rooms without sacrificing the transparency of open office areas. The rhythm is controlled by proportion and the picture is divided by lines, which endows the office space with the harmony and order it should have.
利用大面积的木制天花板为室内空间赋予了温暖舒适的观感,同时也有效地使开阔的一体化空间变得更加安静。
The use of large wooden ceilings gives the interior space a warm and comfortable look, while also effectively making the open integrated space quieter.
▲多功能室
通透的光线与开阔感,以及开放的布局与色彩搭配,体现一种高级感的同时,也散发着清流般的与众不同,经典耐用的材质,柔和微妙的光影变幻,是功能性的公共空间,更是具备亲和力的待客之所。
Transparent light and open sense, and open layout and color collocation, reflect a kind of advanced sense at the same time, also send out the distinctive like clear flow, classic durable material, soft and subtle light and shadow changes, is a functional public space, but also has the affinity of hospitality.
▲布局鸟瞰
动线划分以门厅作为空间枢纽,分别衔接开敞办公和高管区,前来拜访的客人与员工不会互相影响,让空间能够既独立又可以让彼此产生联系。
The dynamic line division takes the hall as the spatial hub, connecting the open office and the high management area respectively. The visiting guests and employees will not affect each other, making the space independent and connected.
▲装置艺术
高管区入口的装置艺术在空间具有特定的仪式感。运用现代手法将传统礼仪文化与空间紧密结合,引起文化之间强烈碰撞。借助雕塑艺术特性,打破设计与空间的对立感。
The installation art at the entrance of the high court area has a specific sense of ritual in the space. The use of modern techniques will be traditional etiquette culture and space closely combined, causing a strong collision between cultures. With the help of the artistic characteristics of sculpture, the sense of opposition between design and space is broken.
▲高管办公区
高管区的办公空间,一方面延续了温润的木质感,同时皆使用玻璃援引自然采光进入室内。通过自然光和灯带的穿插互动,使狭长的通道形成光影长廊。
The office space in the high management area, on the one hand, continues the warm wooden feeling, and at the same time, glass is used to introduce natural lighting into the interior. The long and narrow passageway forms a light and shadow corridor through the interpenetration and interaction of natural light and light strip.
▲会议室
▲董事长办公室
董办空间拥有宽敞开阔的待客区域,层次、纹理、美感、功能性、丰富而厚重,既是办公空间亦可承载社交空间属性,把艺术融入日常,呈现出一种精美和身份的质感。
Dong office space has a spacious and open reception area, with layers, textures, aesthetics, functionality, richness and massiness. It is not only an office space but also a social space. It integrates art into daily life and presents a delicate and identity texture.
▲平面布置图
设计主创:王艺超、任杰、郭总超、何高永
硬装团队:张秋石、仝玢
材料软装团队:李永强、慕菲菲、王明明、唐真
主要材料:白色挂板、银梨挂板、金属板、巴拿马灰石材、南斯拉夫白石材
地址:中国 郑州
面积:1,650 平方米
摄影:如初建筑空间摄影
Tags:照明,中国、简约、宁静、灰白色调、光影变幻
知停。而行
不断探索|| 不断进步
原我们的分享可以帮助您
知行编辑|| 版权归原作者
客服
消息
收藏
下载
最近






























