查看完整案例


收藏

下载
阳光城隆恩丽景湾坐落于有着“世界陶瓷之都”美誉的福建德化,德化以瓷闻名,千年间由兴到盛,至今传承未断,人文底蕴延绵不绝。作为阳光城品质焕新的“丽景系”,丽景湾近邻在建的国际陶瓷艺术城、万达广场等优越配套,致力于以匠心与品质追求,打造德化人居新标杆,启幕城市至臻地脉之上的人居新时代。
一贯坚持“纳自然之形,建空间之意”理念的意巢设计,担纲此营销中心的室内设计。意巢设计探索的,是如何解构建筑,延伸室内空间的功能性与艺术性,呈演现代与历史、经典与时尚、文化与自然的共融共生,令场域成为一个清气潆洄、润泽内心的美学意境空间,质实而空灵。
“室内空间作为建筑的延伸,承载了建筑美学的形式与艺术品位。德化以瓷著称,古建瓷窑的结构、白瓷制品的意象成为我们设计时的灵感元素。基于对建筑的观照与解构,我们将文化展厅的概念搬入营销中心,以现代的表达手法演绎空间格调,营造与观者情感共鸣的体验。”设计师谈及构思的过程。
解构建筑——与自然、文化相连
外观
建筑师路易·康曾言:“设计是一种因地制宜的选择行为,空间之美即建筑的真正意义。”瓷,作为建筑与室内的构思之源,在形与相、物与象的重构中融入环境,在镜面般水景的倒映下,建筑室内的生活场景一一浮现,构建起清简而悠远的外观视像。
前厅
设计师将古建瓷窑艺术化解构,简化攫取其中的历史文化元素与形制,纳入设计语素之中,传达的是一种古今相协、简繁共映的艺术情境平衡。红砖作为一个个艺术单元,以单元重复的形式,营造密实或孔洞,垒就建筑的韵律感与形式美,意简而境深。
引入光影——让空间拥有完整意境
沙盘区意巢设计深信自然是绝妙的表演者,将自然之形信手拈来,在色彩更迭、渐变、交叠的艺术演绎中,引入光影的点缀,形构出空间的完整意境,构建空间介于物质与精神之间的深层奥义。在虚实之间,在空气、光影和非物质性的元素融汇下,空间呈现艺术价值与商业价值的精妙平衡。
洽谈区
光与影的视觉、形式、明暗等关系,赋予建筑、室内空间以曼妙多变的可能性,意境纷然。在意巢设计的笔下,无论是对自然的描摹,抑或是对人文的探索,均赋予观者抽离物质之外的潜在体验,清逸成趣。
水吧临窗而设,透过清透玻璃和纯白窗纱,与户外自然相接,意境空灵而清雅。以大理石体块组合的水吧台,肌理中自带流动的艺术张力,在几何灯饰与自然光的双重点染下,营造出一种心自旁灵的精神意境,契合自然的美好。
器物艺术——由器到艺的美学重叠
VIP 室
设计师用具有时间性和空间性的元素来创造自然的场景,从器物的层面升华至艺术的境界,为之注入灵动的气息,让场域别具节奏感、层序性,诗意沁然,静宁美好。
洗手间
在阳光城隆恩丽景湾一案中,意巢设计以解构建筑的深度蕴涵、包容万象的自然美学、游刃自如的生活哲学,渗透在空间的每一个细节之中,在平衡中赋予变化,在留白中抒绘美学,营造艺术与精神共生共融的灵妙意境,仿佛自然的诗意从建筑内部生长而出,具有强烈的感染力。
作为“自然主义”美学拥护者,意巢设计始终坚持“纳自然之形,建空间之意”的理念。“自然界始终是流变的,包罗万象,意巢设计从中汲取创意,将物象升华为诗意,注入空间设计之中,自然、文化与生活交融无间。”卓然不凡的设计创意、游刃自如的生活哲学、融入内核的艺术造诣,意巢设计便是在自然中找寻灵感,用时间性与空间性来构建场域,呈现理性与感性的融合体,同时不经意传递出其对生活的态度,实现心灵的回归。
写在后面
方案手绘图
近年来,我们经过数个城市,走过许多街道巷陌,经历的展示区数不胜数。
每去到一座新城,我们都会去感受那些实实在在存在的、被当地人感知的且有别于其他城市的“真” ,然后希冀在设计中把这座城市的自然与文化遗产编织进去,呈现这座城市独有的文化记忆。这些年来我们积淀下来一个特点,与我们的喜好多少有些关系,在空间中用相对均衡、简洁的语言,去形成空间、结构、秩序和功能上最优化。
这一次,在瓷都德化,阳光城隆恩丽景湾,我们想再一次从文化的根植性出发,去挖掘那些属于这个城市特有的东西,通过设计要素的组织和规划,以空间作为语言载体,使其融入城市的文脉。
幸运的是,我们与甲方的目标高度一致,让这个营销中心兼顾着城市文化展厅的属性,以在地文化的深厚魅力,呈现时光的温情与人文艺术的隽雅。最终,我们通过自然光影、古建瓷窑、红砖等元素的结构与形变,编织出空间场景感。
或许,营销中心始终离不开“卖房子”这一功能属性,但这里,一定有真正属于德化这座城市的根脉与鲜活的诗意。
巢宇 2020 年 6 月 18 日
效果图
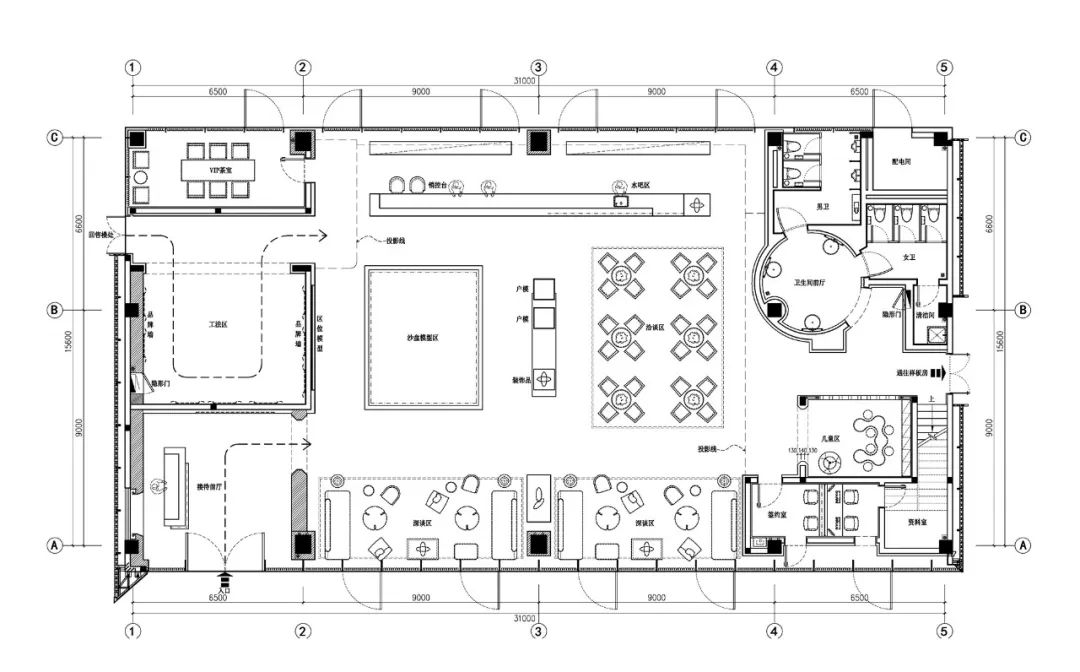
一层平面图
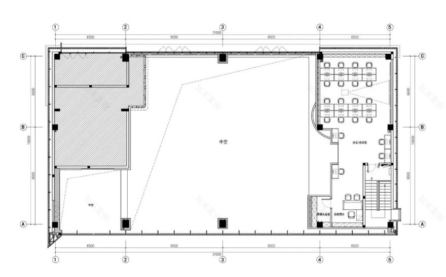
二层平面图
项目名称:阳光城隆恩丽景湾
项目地址:福建 德化
开发商:阳光城集团福州区域
项目面积:540㎡
室内设计:INNEST 意巢设计
软装设计:IF DESIGN 羽果设计
设计团队:巢宇、曾广辉、周春杰
甲方团队:李科辉、綦松雪
项目摄影:本末堂 彦铭
INNEST 意巢设计品牌旨在成为顶尖室内设计师共同工作的平台。承载建筑美学的形式与艺术品位的内容,激发抽离物质之外的潜在体验,渗透游刃自如的生活哲学,做自己的艺术家。
巢宇(左)&曾广辉(右)意巢设计创始人/创意总监
以“纳自然之形,建空间之意”为理念,我们致力于室内空间设计、软装设计领域,从事顶级地产、酒店、会所、别墅及私人住宅、办公空间、商业空间等高级定制化设计服务。
与众多知名上市地产公司合作,并建立长期稳定的战略合作关系,为客户定制超预期的设计策略和解决方案。
以卓然的创意设计为基础,INNEST 意巢设计的作品屡获殊荣,如德国 iF 设计奖、红点奖、英国伦敦设计奖、SBID、意大利 A 奖、APIDA、FX 等国际室内设计大奖。
近期作品
杭州景瑞阳明谷会所
武汉景瑞天赋滨江售楼处
长沙万科大家品牌生活馆
佛山信业阳光城·檀悦合院
金地风华公馆中墅点击链接查看相关阅读辰佑新作 | 800m²萧山别墅设计,演绎至美大宅则灵新作丨融入‘琥珀’的概念的售楼处,有多美?462㎡中式庭院,隐居烟雨江南的生活艺术绿地香港·樾湖书院:风雅如斯,诗意化境趣味性、艺术性、启发性的儿童家具展示空间建发·中央湾区:于当代中创新,定义生活易和新作∣360㎡ 极简、艺术售楼中心曾建龙新作∣把水做到顶上的餐厅 140㎡ & 125㎡样板房,“自然主义” 生活艺术
客服
消息
收藏
下载
最近
















































