查看完整案例


收藏

下载
▲
点击蓝字“
知行Design
中华优秀作品第一发布平台!
古人将世俗生活喻为“樊笼”,呼吁回归自然风物的田园日常。而对于现代社会的我们来说,“樊笼”则更像是钢筋水泥构筑的喧嚣都市,千城一面的大环境让我们对城市的感知停留在满目玻璃幕墙的冷峻与坚毅之中,缺少了可感触、可生活的活力与美。
The ancients likened secular life to a "cage" and called for a return to the idyllic daily life of nature. For us in the modern society, the "cage" is more like a noisy city built of steel and concrete. The overall environment of a thousand cities makes our perception of the city stay in the cold and resolute of full of glass curtain walls, lacking the vitality and beauty that can be felt and lived.
城市在不断扩张,而居于其中的我们,亦在这种变化中寻找着属于与个人生活、与城市审美对话的端口。我们的设计在这样的前提下展开。
The city is constantly expanding, and we, who live in it, are also looking for the port that belongs to the dialogue with personal life and urban aesthetics in this change. Our design unfolds under such a premise.
本案位于广东清远,一座小城,却有着岭南秀丽的山水风光,和令人着迷的文化历史,在这样的城市基底中,设计以站立在时代生活的建造语境,来回应空间之于清远城市、之于当代人生活诉求的肌理与内涵,力求通过设计概念、形式的转化,使空间从灰扑扑的城市群像中跳脱出来,重现崭新面貌。
This case is located in qingyuan, a small town, has a lingnan beautiful scenery landscape, history and fascinating culture, in cities such as base, design built in stand in times of life context, in response to the space Yu Qingyuan city, the skin texture and connotation of the appeal is to the contemporary life, by transformation of design concept, form, make the space jump from the dusty city group, new look
整个销售中心以合理尺度与动线引导规划出了包含前厅接待、中部咖啡水吧、洽谈区,及茶室、儿童活动区等多个功能区域,并依据人们在空间中行进流转的动线安置不同区域的层次,使之形成空间表达及动线上的“秩序性”。
The whole sales center guides and plans a number of functional areas including front office reception, central coffee bar, negotiation area, teahouse, children's activity area and so on with reasonable scale and dynamic lines, and arranges the levels of different areas according to the moving lines of people moving in the space, so that the spatial expression and "order" of the dynamic lines are formed.
在此基础上,设计从城市肌理、与当代人生活的真实需求出发,提取清远城市山水中的材料与色彩意向,营造低缓,而清丽舒适的氛围效果,同时,加载自艺术品与装置的斑斓与波光粼粼,则以一种跳脱的活力为空间带来迎合当代人的精巧的品味属性。
On this basis, the design from urban skin texture, and according to the actual demand of modern life, extract the material and color in the qingyuan city landscape, to create a relatively low, and beautiful and comfortable atmosphere effect, at the same time, the load from the colorful art and device and sparkling, with the vigor of a jump to cater to the tastes of the contemporary exquisite attribute space.
由造型简洁的接待前厅向内,来到开敞的洽谈区环境中。整面的对外打开,为这个方正的洽谈空间注入了与室外光景的自然交互,阳光穿过立面的玻璃外墙,经过框架与线条的筛虑进入人们交谈的舒适氛围中。
From the simple shape of the reception hall to the inside, came to the open environment of the negotiation area. The whole surface opens to the outside, injecting the natural interaction with the outdoor scene into this square negotiation space. The sunlight passes through the glass facade, and enters into the comfortable atmosphere of people's conversation through the screening of frames and lines.
洽谈区呈一字排布,幽蓝色单椅大胆而轻盈,镂空的腰部反衬出米色皮垫的温和光泽,在色彩的互补中,建立起空间的视觉私密度与连贯性。
The negotiation area is arranged in a single character, the single chair in deep blue is bold and lightsome, and the hollow waist reflects the mild luster of beige leather pad. In the complementation of colors, the visual privacy density and coherence of the space are established.
因此,在多处转角及台面,我们从清远当地挑选当季的绿植、花艺置入,时间流变,而植物鲜活,永远为人们带来着生命的自由气息。
Accordingly, in many corner and mesa, we choose the green plant in season from qing Yuan place, flower art is put in, time changes, and plant is fresh, bringing the free breath of life for people forever.
在这种轻巧的主体空间之外,两个空间属性强烈的功能区域则以大理石与木质的深厚、沉稳,形成空间节奏起伏与变化。
In addition to this lightweight main space, two functional areas with strong spatial attributes are deep and composed of marble and wood, forming spatial rhythm fluctuations and changes.
水吧台以年轻人喜爱的手冲咖啡为主题,带着咖啡精细的研磨品鉴工艺的启发,我们在这个区域以强调细微之处人们的真实感受为主,考量每一个细节。每一个咖啡元素之间,细微而精确的间隔,让生活的灵感得以自由地穿越。
The theme of the water bar is hand-brewed coffee which is popular among young people. Inspired by the fine grinding and tasting process of coffee, we emphasize the subtlety of people's real feelings in this area and consider every detail. Between each coffee element, the fine and precise interval, lets the life inspiration be able to pass through freely.
而在茶室,同样厚重的底色中,却毫无咖啡区的精巧意味,而是以木质的温润围合层次,一盆浅浅矮矮的青苔绿,一组自上垂吊而下的茶壶组合,将清远人香气萦绕间充盈的朴素生活哲学尽示于人。
However, in the teahouse, the same thick background color has no subtle meaning of the coffee area. Instead, it is surrounded by wooden warmth and moistness, with a shallow and low moss green basin and a group of tea POTS hanging from the top, showing people the simple life philosophy full of fragrance lingering in qingyuan.
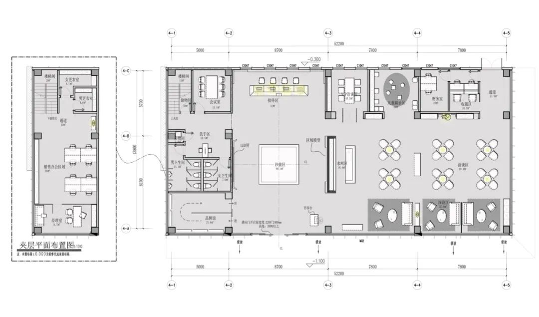
平面图/The floor plan
项目名称:力高·君誉府售楼处
Project name: Sales Office of Ligao junyu Mansion
地 址:中国·清远
Address: Qingyuan, China
项目面积:400㎡
Project area: 400㎡
完工时间:2020.10
Completion time: 2020.10
甲方单位:力高地产
Party A: Ligao Real Estate
室内设计:GRAVITY万有引力设计
Interior design: GRAVITY design
软装设计:GRAVITY万有引力设计
Soft decoration design: GRAVITY design
项目摄影:乐在拍 Lephoto
Project photography: Le is shooting Lephoto
下方广告,您点击一下!
小编工资涨1毛哦!
客服
消息
收藏
下载
最近





























