查看完整案例


收藏

下载
建筑师:D&P Associates
地址:1F, No. 170, Section 3, Nanjing East Road, Zhongshan District, 台北
类别:办公室
主创建筑师:Romain Duval
设计团队:Binh Anh
客户:Spaces Work
建筑面积:2413.0m²
项目年份:2018
摄影师:Spaces Work
厂家:&Tradition, Alki, Arco, Thonet, Viccarbe
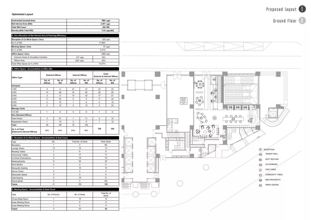
Spaces Hung Sheng共享办公室位于台北市繁华的中山区,它与捷运南京复兴地铁站相连,距离最近的公交车站 - 南京龙江路口也只有100米的距离。为了充分利用这一优越的地理位置,D&P设计工作室被委任将这2413平方米的空间打造成为为台北市首选的共享办公空间。
Spaces Hung Sheng是专为自由职业者,初创企业和小企业设计的。因此,我们采用了现代化的工业性设计,充足的光线和灵活的开放分区是这里的一大特色。
我们旨在为创业者们提供“家”一样的办公空间。室内装修以简约的暖色调为主,并使用木材作为主导材料,营造令人愉悦的办公空间。
我们使用Alki定制的木制书柜来区隔空间,一方面可以用于存储和展示,另一方面也可以地让整体空间显得更加开放。书柜中放置着各种精致装饰物品,如名人肖像,盆栽等,给整个空间增添了活力。
值得注意的是,在软席会议室中,我们采用了Ay Illuminate定制的竹制吊灯,营造一种舒适恬静的氛围,可以淡化工作中的压力和焦虑。我们还选择了显得更加优雅和现代的Tooy和&tradition等品牌的家具。
来自Alki,Viccabre和其他品牌的家具很时尚,但不会显得太过于工业化。这些家具都采用了圆角的设计,并且边缘整洁,统一的暖色调,让它们看上去迷人,简洁和干净。我们还使用当地材料设计了一个可爱吧台,是员工们闲暇时放松休闲的最佳去处,也是共享办公空间的亮点所在。
此外,我们设计了一个步行的楼梯,用于连接底层的商务俱乐部和一层的预留工作空间,而不是一个没有生命的电梯。简而言之,Space Hung Sheng致力于为创业者提供一个舒适,温馨而又专业的共享办公作空间。
客服
消息
收藏
下载
最近

























