查看完整案例

收藏

下载
人口密集的都市演进,使小户型住宅渐为城市新型居住文化之一,然而即便面积上的数字再迷你,现实如何将心底的盼想摺了又摺,「好好过生活」这回事,依然是最重要的事,无非是在如今快节奏下缓和心绪,维持自我平衡的偌大力量。而这样的居住理想,正在一间属于摇滚音乐人的23平方米住屋中漫延发酵。
步过很有沉静仪式感的短廊,清透率性、掺和些许温润的气息在场域中轻盈地跃动,似是对访客表述着屋主外显的一面。不过事实上,女主她可是热爱金属乐,并且拥有诸多相关收藏,不折不扣的Rocker
!
操刀空间规划的 NestSpace Design巢空间设计提到,从她身上鲜明传达出人不只有一种形象的洒脱态度,在鼓励撕掉既定标签的浪潮下,摇滚的「野」,或许有另一种新鲜的呈现方式,不那么直接狂妄,却仍低调地让精神长存身边。
于是设计师内化起 Rock n’Roll
颠覆的象征,用「渺渺」远离世俗的意象贯穿设计脉络,借以音乐藏家的特性作为发展序列,把爱好收藏、家居琐事、与不同的日常情境,妥善地织进空间肌理。让生活的画面层层递进,以追求居住者心灵上最宽裕的款待。今后空间不再限于数字,而是关乎于起居型态的深度和多元弹性。
空间的每个区块如同独立浮岛,一一拥有着跳岛般的复合感受,同时也运用了平面转向垂直的铺陈,完整盛装着居宅应有的机能设置。当你越往内走,彷彿走向内心更深处,渐渐地离外头喧嚣远去。
旧时建筑「二进」的概念,在此被重新转化演绎,人们于进门当下先转换一次归返的情绪,接着由铁件复层所构成的隐形门,再度过滤人的心境,引领你直达尽情撒野,想象无限大的渺渺所在。
定调为自由平面的公共区域,特意切割成方正的规划,让屋主在与朋友玩乐器、用餐等不同情境时享有调整的弹性;一旁紧邻窗边的卧榻,则除了是串连光的入门景致,也兼具沙发机能。
复层下方崁入书房与展示收藏的层架,使屋主独处时拥有被包覆的安全感,还与珍藏的黑胶、杂志等物件相伴相生。而取样自吉他琴面上的锈铁图纹,被复印在中岛柜体,将
Rocker
精神藏在细节,显得低调又显眼。
生活于一连串起承转合的设计间,伴随利落的刷弦、疾快的鼓声,以及顿入脑门的嘶吼歌声所共振的野劲,通通获得释放;挣脱地面的束缚,破茧而出的曙光即在眼前!
安居于开放又隐密的渺渺秘境,相信这里未来将盈满屋主与友人对音乐的热情,无论外头纷扰再多,皆能在此寻回一丝平静。
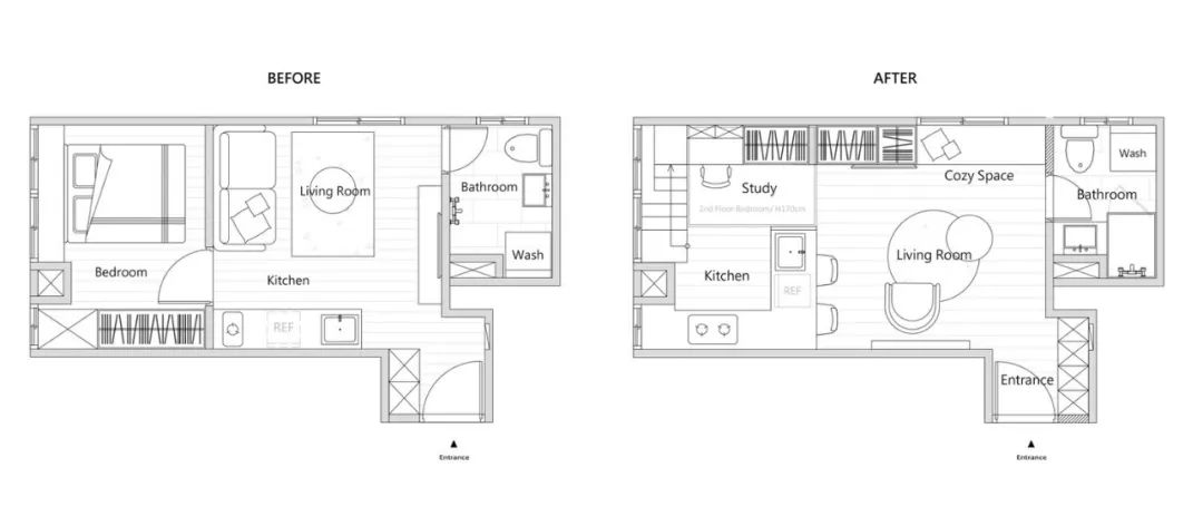
改造前和改造后平面图
改造前
- END -
治愈了!简约素净的木色空间,营造理想的轻简住宅!
Carina Lam | 以不完美、 不对称、简单朴素的现代侘寂家居,演绎缺憾美!
161㎡老房子,被改造成玻璃花园房,餐厅+自住,通透又开放!
MOD穆德设计|李天骏荣登Andrew Martin全球TOP100设计师榜单!
ArtPartner Architects|简约极致,优雅的现代生活美学
客服
消息
收藏
下载
最近








































