查看完整案例


收藏

下载
©Arti Pictures
2020 年 4 月,我们启动了“微型治疗设施“项目,目的是为了满足日益增长的患者治疗能力的需求,并通过建立快速建设、可扩展、规模灵活、适用于不同地点的检查和医疗设施,促进人们在流行病期间的福祉。我们为该项目设计了 4 种类型的治疗设施。每个设施都是根据世界卫生组织的严重急性呼吸道感染指南设计的,并适合现场的潜力。第一个设施将于 2020 年 8 月为圣卡罗尔斯医院建成。我们的目标是继续在雅加达及其他地区扩展设施。旨在支持医院和社区,半永久性结构是用脚手架建造的。
Arti Pictures
Arti Pictures
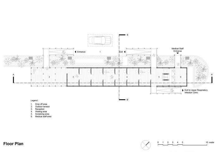
▲平面图
Arti Pictures
由于其简单的施工技术,该设施能够增长,以满足日益增长的医疗空间的需求。这些转瞬即逝的结构系统提供了广泛的灵活性和适应性,其中它的模块化允许出现不同的形状和尺寸,以适应各种需求和场地。该结构经久耐用,可重复使用,可移动。它可以在不同的地点调整为其他用途,如每年为雅加达的洪水灾民提供紧急避难所。圣卡罗鲁斯医院检查设施的目的是在进入医院大楼之前识别感染和非感染的病人。
Arti Pictures
位于医院大厅正对面的停车场内,32 米长的设施作为医院的新地址。新结构利用了场地条件,入口和出口坡道集中在主楼的天棚下,使新设施与医院之间建立了紧密而安全的联系。该建筑由接待区、候诊区、屏蔽区和医务人员区组成。每间等候室之间都有一堵隔墙,既能提供座位,又能提供轮椅的空间。它有两个独立的出口,一个通往医院大厅,另一个通往上呼吸道感染诊所。
Arti Pictures
病人和医护人员的入口距离较远。每个入口和出口都有一个坡道,以适应残疾人的需要。这座 140 平方米的半永久性建筑由白色脚手架结构、邦基莱木地板和聚碳酸酯覆层组成,预制时间为两周,现场建造时间为四天。波纹聚氨酯屋顶有助于减少来自外部的热量和声音。它有一个相当大的悬垂,以减少墙壁接收的热量。
Arti Pictures
▲西南立面图
Arti Pictures
外立面由半透明的聚碳酸酯覆层制成,在室内和室外之间创造了一种微妙的视觉联系。材料的透明性使得自然光能够进入,从而减少了白天的能源消耗。外立面的开口创造了一个交叉通风,与循环走廊重叠;这为建筑内部创造了必要的自然通风。明亮而大胆的路标被用于帮助游客获得新设施的清晰目录。该项目由 AT-LARS 设计,是与圣卡罗鲁斯医院共同合作,应对雅加达 COVID-19 的挑战。
Arti Pictures
Arti Pictures
Arti Pictures
Arti Pictures
Arti Pictures
Arti Pictures
Arti Pictures
项目图纸
▲轴测图 1
▲轴侧图 3
▲东南立面图
▲轴侧图 4
▲AA’剖面图
▲BB’剖面图
▲轴测图 2
▲总平面图
项目信息
建筑师:AT-LARS
面积:140 m²
年份:2020 年
照片:Arti Pictures
制造商:AutoDesk, Adobe, Alderon, PTJIP, Philips, Taco, Trimble, twinlite
设计团队:Stephanie Larassati, Aldo Feandri, Pramashella Shabrina
客户:圣卡洛斯医院
承包商:Hadi Karsa Cakramandiri, Bayu Prayudhi
城市:雅加达
国家:印度尼西亚
客服
消息
收藏
下载
最近



























