查看完整案例


收藏

下载
▲ 点击蓝字“
知行Design
知.鉴赏
【
新作-无锡南长街 新万鑫银丝面馆|餐饮
】
|知停.而行|
在高楼林立的无锡市中心,温婉绵长、古色古香的南长街是一方柔情似水的心灵归处,被誉为"江南水弄堂,运河绝版地"。
In the center of wuxi city, the gentle and long, antique nanchang street is a gentle heart, known as "jiangnan water lane, canal out of printing".
业主作为无锡非物质文化遗产代表性项目的传承人,对餐厅的品牌升级和形象展示有着强烈的诉求。设计师根据地域性特色,在构思过程中结合了现代主义的建筑思维,试图用设计的手法摆脱刻板印象,冲破既定模式,让传统的餐饮品牌在时代背景下推陈出新。
As the inheritor of representative intangible cultural heritage projects in wuxi, the owner has a strong demand for brand upgrading and image display of the restaurant. According to the regional characteristics, the designer combined the modernist architectural thinking in the process of conception, trying to get rid of the stereotype with the design method, break through the established mode, and let the traditional catering brands bring forth the new through the old under the background of The Times.
推门而入,内部空间的设计则是尽可能进行丰富的探索——选择性保留,但不刻意强调神秘感和沧桑感。
Open the door and enter, the design of the interior space is as rich as possible to explore -- selective reservation, but not deliberately emphasize the sense of mystery and vicissitudes.
结构艺术化,亦是本案设计规划的重点。一楼大堂利用老房原有的玻璃天井,将玻璃与木格栅相结合,具备了隔而不绝且调节光线的功能。
Structure art, is also the focus of the case design planning. Using the original glass patio of the old room, the lobby on the first floor combines the glass with the wooden grille, which has the function of separating and adjusting the light.
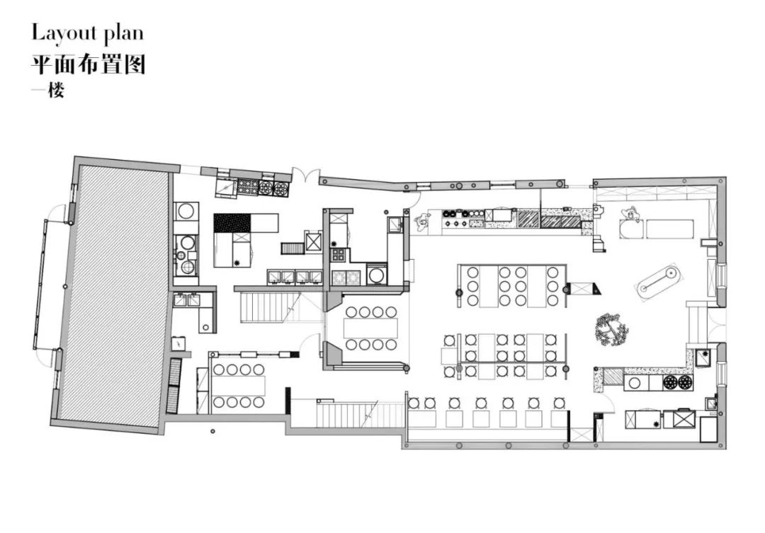
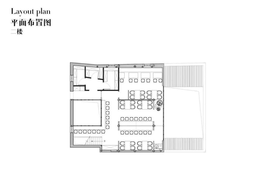
平面图丨PLAN
项目名称:新万鑫银丝面馆
项目地点:无锡南长街
设计单位:无锡欧阳跳建筑设计有限公司
主创设计:欧阳跳
参与设计:朱佳慧、姚运、陈进、周丹凤、李阳
摄 影 师 :徐义稳
客 户:孙炎 娄曦瑜
品牌:京泰家具、米未照明、青骑士艺术设、晨恩标局.CHOICE
设计时间:2019.01~2019.02
完工时间:2019.04.27
项目面积:380平方
项目造价:2500/平方
主要材质:水洗石、防火板、水磨石、乳胶漆
【
知停.而行
】
不断探索|不断进步
原我们的分享可以帮助您
知行编辑|版权归原作者
客服
消息
收藏
下载
最近































