查看完整案例


收藏

下载
中梁成都云玺台售楼处
外师造化,中得心源。
——张躁
蜀中江南、花重锦官城。
成都,这是一座安祥的城市,处处透着一股历史的底蕴。
中梁云玺台项目位于成都成华区,建筑设计创意来源于四川民间传统的折纸艺术折纸,以“折”出来的艺术空间为设计语言,进行整体的设计及构思。
空间中的光线,透过景观幕墙与天花、墙面相辉映,最终在大型装置的吊灯中流转,转而出现的是一种超越线性的延伸,可并存、恒久,成为光对空间的极限表意,而形成瞬间的焦点。
天花与接待台,依然沿续“折”的理念,通过线条折叠,在直线与曲线构成的光影之中,光线在空间中不经意地流转,将时间与空间融为一体。
将立面与景观相结合,承载了在建筑与光的交汇,犹豫如坚硬的墙面自然的剖开,展现出内里清新温润的一面,在玻璃幕墙穿透的阳光里享受惊奇的喜悦。
转角处的玻璃墙面,使景色进行折叠,犹豫如一个几何形的空间映像,将之转换成一个场景、一幅画、一种感觉。
大厅保留整面玻璃幕墙,将室外景观引入室内,整体天花挑高,天花及墙面均以简洁、干净的浅色为主。流线形的装饰灯带,如涓流般串联起巴蜀文化的当下与未来。
高挑的空间与错落的光影,在有限的空间中制造浩瀚感,将无尽的嘈杂封锁于边一种空间之中,沉在浮光碎景中连结,营造一种寂静感。
光线从楼梯及接待台处,沿着地面及墙线慢慢延伸,至休息区时,如细流的水滴渗入墙面装饰柜。在立面及天花处,地面的深色石材与及星空状吊灯成为一体。
洽谈区仍然将光与景观,从玻璃幕墙处引入,使室内、室外景观一体化,通过光线与景分充分交汇,拥抱四季的变迁。
新旧共生,和谐交融,所创造出的空间才具有最大程度的包容性。
负一层泳池为整个空间点晴之笔,设计师试图通过整面通透的玻璃幕墙,将室外建筑与景观引入室内,打破空间领域之间的界限,在泳池的浮光碎影之中,形成诗意的空间。
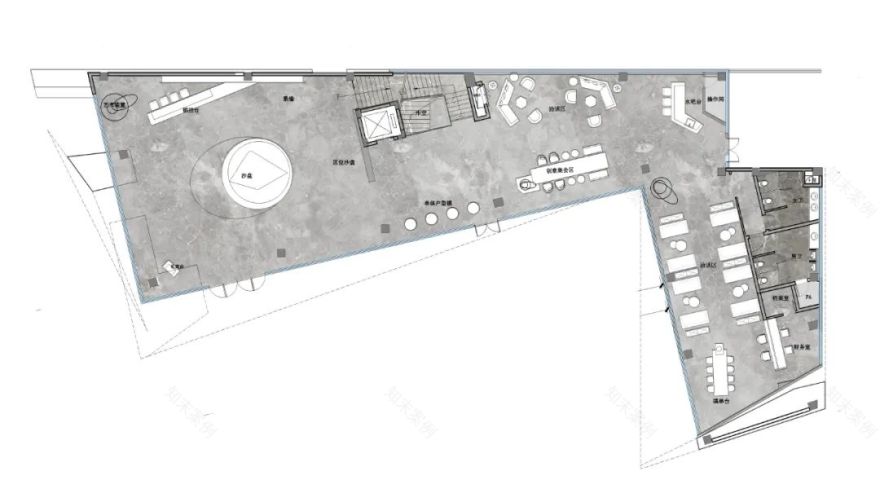
平面图
一层
二层
负一层
项目名称:中梁成都云玺台售楼处
项目地点:中国·成都
业主单位:中梁控股集团有限公司
硬装设计:创库设计
软装设计:几朵设计
软装团队:郑小君、金小知
设计面积:1500 平米
室内摄影:江河摄影/ 本未堂摄影
完成时间:2020 年 6 月
创库设计(CKAP),2012 年创立于深圳市,主要为国内各大开发商及高端业主提供各类室内设计,涵括室内创意空间设计、精装修研发、交楼标准设计、软装配置及整体木作研发等专业服务。此外,依托强大的成本控制能力、资源平台及家居用品研发和采购能力,在住宅精装交标设计服务领域,为业主提供更优质的全程管控全程服务。
创库设计近期作品
深圳金茂府地库示范区
佛山阳光城绿岛湖壹号样板房
东莞中海莞府样板房
上海几朵空间设计有限公司前身是温州美度装饰设计有限公司(成立于 2012 年 01 月),是一家专业从事室内整体软装设计与实施的软装设计企业,公司拥有一支具有国际化视野,锐意进取、经验丰富的设计团队。为客户提供咨询、设计、定制、陈设布置一条龙的专业软装设计服务。
企业专注于楼盘精装房、样板间、售楼部、会所及商业卖场的整体软装设计,形成了品牌化、规模化、规范化、服务化的竞争优势,是国内知名房企和高端精装楼盘的优选合作伙伴。
几朵设计近期案例
旭辉中梁江月湾售楼处
中梁金科·启宸售楼处
蓝城
桂语风荷生活馆
【微店】阅世集的设计库房已经上货
货架资源充足
点击阅读原文浏览店铺
客服
消息
收藏
下载
最近







































