查看完整案例

收藏

下载
夜景,灯光透过穿孔金属板照亮黑暗 ©Peter Bennetts, courtesy of Hassell + OMA
感谢
OMA
西澳大利亚新博物馆位于珀斯的文化中心,为原本的博物馆提供了新的展览、活动、商业以及餐饮空间,展示西澳大利亚的自然文化藏品。西澳大利亚是地球上最古老的连续文化的家园,拥有不同寻常的人与环境,其人口越来越多元,已经成为了全球生物多样性的热点区域。新馆由改造后的历史保护建筑和新建筑组成,向人们分享西澳大利亚的丰富故事。
▼建筑外观 ©Peter Bennetts, courtesy of Hassell + OMA
▼新博物馆鸟瞰,项目位于珀斯文化中心©Peter Bennetts, courtesy of Hassell + OMA
▼从街道看向项目,建筑掩映在茂密的植物中 ©Peter Bennetts, courtesy of Hassell + OMA
▼项目立面由穿孔金属板组成 ©Peter Bennetts, courtesy of Hassell + OMA
▼立面细部 ©Peter Bennetts, courtesy of Hassell + OMA
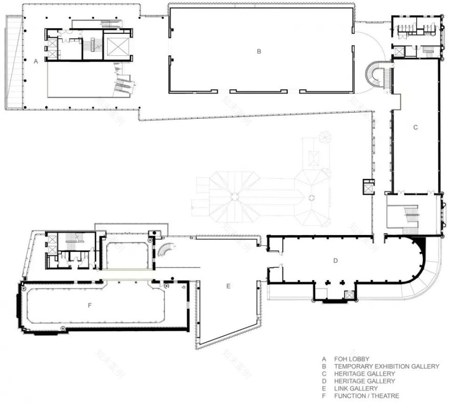
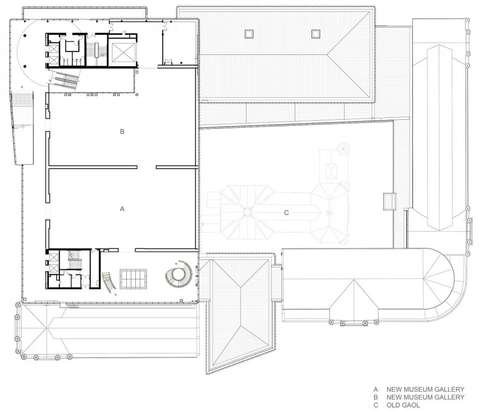
在新博物馆中,历史和当代的结构相互依托。项目中保留并改造的建筑包括建于19世纪中期的Old Gaol;1899年建成的Jubilee大楼;1908年建成的原艺术画廊;以及建于1913年的Hackett大厅,曾是国家图书馆的阅览室。新建建筑围绕老建筑设置,形成两个博物馆的核心元素。其中之一是两条充满趣味性的流线,提供丰富的参观体验;另外是一个位于博物馆中部的公共空间,作为城市会客厅,供人们举办各种文化项目及日常活动。
▼建筑外观,新建筑将老建筑包裹在中间 ©Peter Bennetts, courtesy of Hassell + OMA
▼建筑外的公共广场 ©Peter Bennetts, courtesy of Hassell + OMA
新建筑的一部分悬挑于Hackett大厅上方,形成一片有遮挡的室外空间,为城市提供了一个举办公共活动的场所,所有人都可以参与其中。城市会客厅是博物馆内两条流线的焦点,馆内游客可以看到公共空间中的活动。参观者不仅可以在展厅内探索,还可以聚集在一起,相互交流。
▼新建筑部分悬挑于Hackett大厅上方 ©Peter Bennetts, courtesy of Hassell + OMA
▼新老建筑的夹缝中可以眺望城市风景 ©Peter Bennetts, courtesy of Hassell + OMA
两条流线环将老建筑和新体量连在一起,形成多条参观路线,连接展廊、活动空间和商店。游客可以从不同角度探索馆藏,创造属于他们自己的观展经历。
▼博物馆内的两条流线提供不同的观展体验 ©Peter Bennetts, courtesy of Hassell + OMA
▼从博物馆内看向城市会客厅 ©Peter Bennetts, courtesy of Hassell + OMA
▼穿孔金属板立面在室内留下丰富的光影 ©Peter Bennetts, courtesy of Hassell + OMA
保留的历史建筑昭示着基地的社会和文化历史。新建筑体量为长方形,立面由穿孔金属板组成,白天时在阳光下闪耀,夜晚则可以照亮黑暗。无论是对于珀斯文化中心、还是城市,乃至整个国家,新博物馆都是一座独特的新地标。
▼夜景,灯光透过穿孔金属板照亮黑暗 ©Peter Bennetts, courtesy of Hassell + OMA
项目图纸
▼总平面图
▼一层平面图
▼二层平面图
▼三层平面图
▼立面图
▼剖面图
Status: Construction complete
Client: State Government of Western Australia, Multiplex Location: Perth, Western Australia
Program: Museum 19,000m2
Partner-in-Charge: David Gianotten Project Director: Paul Jones
Project Leaders: Fred Awty (Competition Phase), Mirai Morita (Schematic Design), Christopher Hing Fay (Design Development to Construction)
Project Team: Thorben Bazlen, Marina Cogliani, Jack Davies, Haram Hong, Eunjin Kang, Alan Lau, Fedor Medek, Marcus Parviainen, Paola Provinciali, Yash Ravi, Takehiko Suzuki, Shinji Takagi, John Thurtle, Elizabeth White, Polina Zhalniarovich.
JV Partner: Hassell
Managing Contractor: Multiplex Structural Engineer: BG&E Services Engineer: Wood & Grieve Façade Engineer: Hera
Heritage Architect: Element
ESD Engineers: Atelier 10 Building Surveyor: JMG
Signage & Wayfinding: FOD
客服
消息
收藏
下载
最近



























