查看完整案例

收藏

下载
室内空间概览 ©
Takumi Ota
感谢
KITAMURA NAOYA ARCHITECTS & PLANNERS
该项目位于一个住宅区内的道路深处,建筑师希望在此创造一个富于变化且具有延伸感的空间。
▼场地鸟瞰 ©Takumi Ota
▼住宅外观 ©Takumi Ota
在建筑内部,一系列立柱形成以1.82m为间隔的网格,以松散的方式划分空间,使有限的空间变得多样化。
1.82m的距离等同于日本尺度下的1间或6尺(1尺等于0.303m)。
此外,欧美也有1英寻=6英尺=2码这样的尺度标准。
▼室内概览 ©Takumi Ota
▼从入口玄关望向阁楼和洗手池 ©Takumi Ota
▼错层空间 ©Takumi Ota
▼立柱网格以松散的方式划分空间 ©Takumi Ota
带有宽阔落地窗的餐厅可以同时容纳4人。
柱廊的秩序从宽敞的起居室、餐厅和厨房区域一直延伸至二层的榻榻米空间。
以立柱划分的空间彼此连通,带来不断扩展且充满变化的居住体验。
▼餐厅和厨房 ©Takumi Ota
▼柱廊的秩序延伸至二层 ©Takumi Ota
▼一层儿童活动空间 ©Takumi Ota
▼细部 ©Takumi Ota
▼二层房间 ©Takumi Ota
▼入口细节 ©Takumi Ota
▼洗手间 ©Takumi Ota
▼模型 ©KITAMURA NAOYA ARCHITECTS & PLANNERS
项目图纸
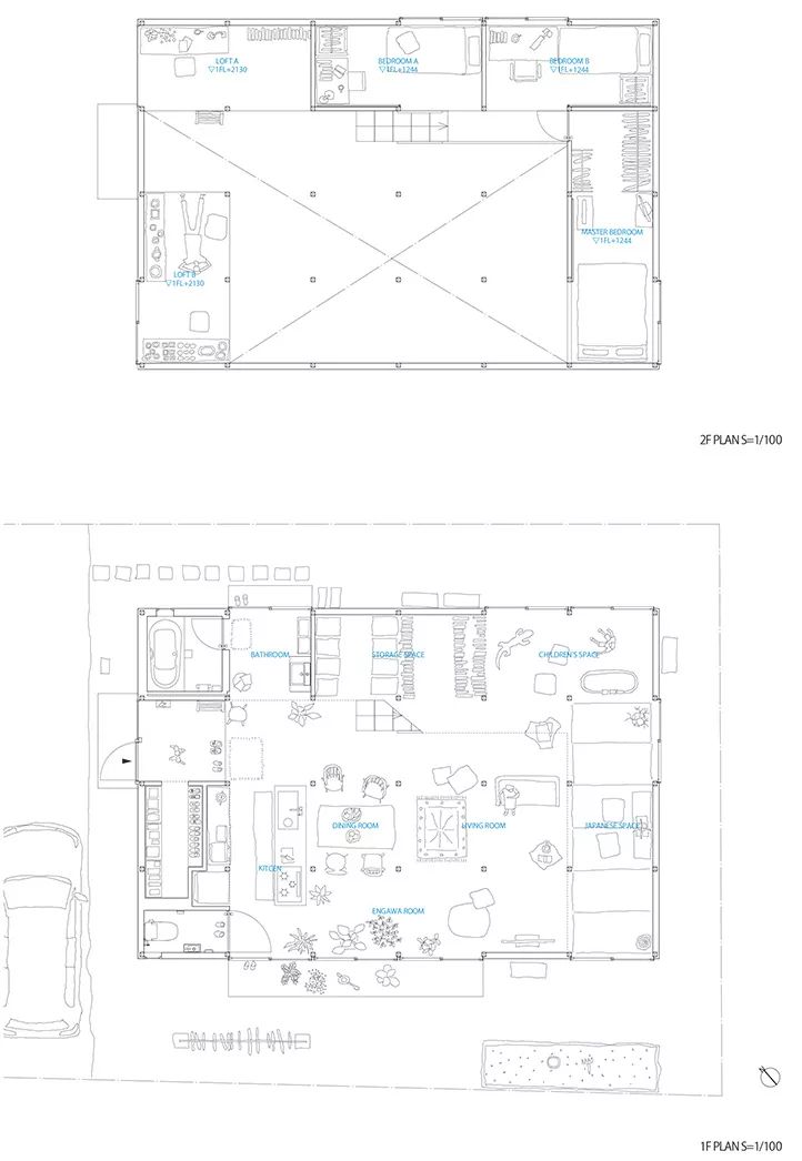
▼平面图 ©KITAMURA NAOYA ARCHITECTS & PLANNERS
▼剖面图 ©KITAMURA NAOYA ARCHITECTS & PLANNERS
K house / Naoya Kitamura
Location : Aichi Japan
Program(Use) : house
Site area : 261.09㎡
Building area : 79.66㎡
Gross Floor Area : 79.66㎡
Building scope : 1F
Building to land ratio : 30.51%
Floor area ratio : 30.51%
Design period : 2017 August~2018 April
Construction period : 2018 July~2019 February
Completion : 2019 February
Principal architect : Naoya Kitamura
Project architect : Naoya Kitamura
Design team : KITAMURA NAOYA ARCHITECTS & PLANNERS
Structural engineer :Yasuhiro Kaneda
Construction : wood
Photographer : Takumi Ota
客服
消息
收藏
下载
最近






















