查看完整案例


收藏

下载
本文来源于:建日筑闻
©筑境设计
©筑境设计
01. 背景|吴中博物馆坐落在美丽的苏州澹台南岸,北面澹台湖景区,南临规划中的步行街区,视野开阔、景色优美,并与著名的宝带桥隔湖相望。长桥卧波,水天一色,实乃一处难觅之江南佳境。
澹台湖©筑境设计
在这样的场地中,如何有效地利用环境资源,结合场地优势,塑造特色鲜明、富有活力的场所空间,以呈现一座具有地方文化内涵,且能够与环境和谐共生的博物馆建筑,是本案设计的重点。
概念生成
模型©筑境设计
02. 设计理念 |结合得天独厚的环境优势,建立起博物馆建筑与澹台湖景区良好的对话关系,同时提升博物馆的公共性。使博物馆在作为富有魅力的城市文化设施的同时,又成为人们活动交往的理想去处,从而提升吴中城市生活的文化品质。
©筑境设计
©筑境设计
为了尽可能将澹台湖景色融入其中,我们把展厅等较封闭的功能空间集中设置于建筑南向景观欠佳一侧,并结合内向型中庭空间及院落空间加以有机组织;而将建筑主要的公共空间布置于景观佳好的基地北侧,并以连续自由的通透界面,建立与外部景区良好的视觉及行为联系,使内部公共空间疏朗明快,宜人通透,为提升博物馆的公共性与开放性创造了良好的条件。
©筑境设计
©筑境设计
基地东侧为一条景观步行轴,它连接南部的步行街区,并与基地北边的滨湖公园带相交,在场地东北角形成了一处连接澹台湖景区的重要节点,建筑的主入口空间即设于此,使之形成了建筑与外部公共开放空间及沿湖景区间的紧密关联。
功能分析
同时,设计充分考虑了吴中的环境特质,特以地方传统合院的基本单元,结合博物馆的空间要求确定基本尺度,并将这些单元通过中庭、院落及开放空间进行有机组织。在承启转合、虚实对照、内收与开放中,创造了宛如吴中园林的空间形象,也由此生成了其虚实相生、贴切地相融于环境的外部形态。博物馆的整体平面构成,宛如一方吴中地方文化之印,深深地镶嵌在江南的山水之中。
©筑境设计
©筑境设计
同时,我们把造园的手法应用到吴中博物馆的设计中,希望以江南特有的方式塑造富有情境的建筑空间。吴中博物馆的内外空间设计把江南园林的典型片段用现代的建筑语言进行诠释,无论是循序渐进的序列组织、巧于因借的视线控制、小中见大的空间效果,还是一组组精心安排,由桥、水、竹、院组成的入画小景,都能够让人在其中找到熟悉的场所。
©筑境设计
项目图纸
总平面图
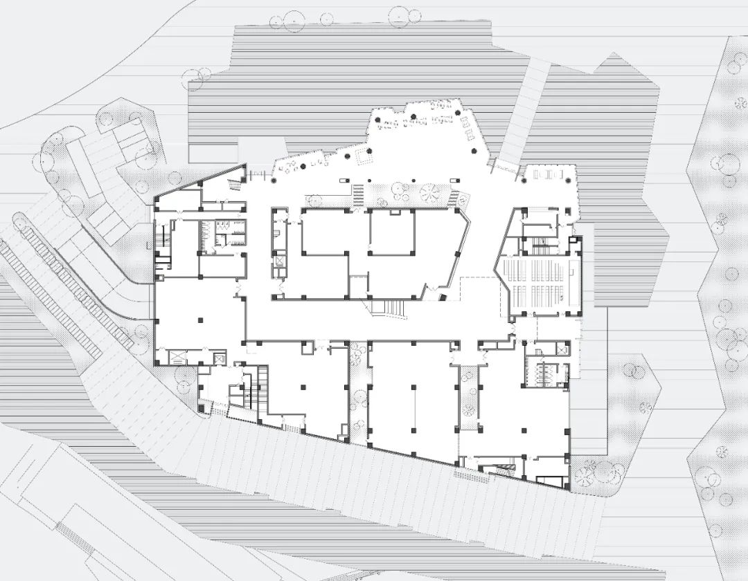
二层平面图
三层平面图
东立面图
南立面图
西立面图
北立面图
剖面图
模型
筑境设计
模型
筑境设计
项目信息
建筑设计:筑境设计
地址:澹台街以南,吴中区,苏州,中国
项目年份:2020
建筑面积:18652.03㎡
摄影师:筑境设计
视频制作单位:筑境设计
主创建筑师:王幼芬
建筑设计:骆晓怡,陈立国,江丽华,曾德鑫
结构设计:吴建乐,朱蓓,阮楚烘
给排水设计:杨迎春,孙有新
暖通设计:尹畅昱,唐新贵
电气设计:徐冰源,殷晓波
委托方: 苏州市吴中区博物馆,苏州市吴中城区建设发展有限公司
-END-
排版校对 | Wanxin
建日筑闻
仅供学习参考
中原豪宅品质标杆 | 打卡郑州顶级豪宅,看国际大家的匠心营作【环球观筑】
3 月民宿考察之旅 | 在莫干山遇见春暖花开【环球观筑】
暖春三月再启程|成都+重庆高端住宅+商业建筑游学【环球观筑】
新行程 | 烟雨 3 月,开启探索徽派建筑美学之旅【环球观筑】
寻梦敦煌|在春天的大漠,走近世界艺术美学巅峰莫高窟!【环球观筑】
2021 全新行程 | 看王澍、徐甜甜、张雷、刘家琨等大咖设计之下的江南乡村秘境【环球观筑】
再现长安盛世荣耀,游学西安地产与现代建筑【环球观筑】
杭州+宁波,探索高端地产与住宅建筑之旅【环球观筑】
杭州+苏州考察 | 新锐地产+大师建筑+古典园林深度参访【环球观筑】
客服
消息
收藏
下载
最近

































