查看完整案例


收藏

下载
点击蓝字“知行Design中华优秀作品第一发布平台!
丨建筑设计丨
TheAarchitecturalDesign
建筑外观立面设计由两部分组成,竹影横斜与自然之境,保留永州山水特征,将其转变为设计的主要元素。将纯粹干净的几何体,坐拥自然、融于自然,与园林、室内的永州山水意境统一。
The facade design of the building consists of two parts, the bamboo shadow and the natural environment, which retain the landscape features of yongzhou and transform it into the main element of the design. Will be pure and clean geometry, has the nature, melts in the nature, and gardens, indoor yongzhou landscape artistic conception unity.
竹影横斜:竹林随风摇曳的韵律、光影变换,通过角部百叶完整的延续麦浪弧线以及运用灯光设计照亮上下墙体,将建筑轮廓一一呈现。
Bamboo shadow slanting: the rhythm of bamboo forest swaying in the wind, the transformation of light and shadow, through the complete extension of the corner louver arc and the use of lighting design to illuminate the upper and lower walls, the building outline one by one.
自然之境:运用蒙德里安格子画的现代构成主义,结合镜面设计,将大大小小的原色块和矩形直角形状的组合中寻求平衡,与自然相融。
Landscape of nature: with the modern constructivism of mondrian’s grid painting, combined with the mirror design, the combination of large and small color blocks and rectangular rectangular shapes will seek balance, and integrate with nature.
本案设计为现代简中风格,融合永州城市文化底蕴,以现代审美要求为原点,以新中式置装为内核表达,以府园规制下的公园为场景,以艺术设计的方式呈现出来,人文精神浸润空间之中,寻觅永州之源。
The design of this case is modern simple style, integrating Yongzhou city’s cultural heritage with the modern aesthetic requirements as the origin, and presenting it in a new Chinese style decoration as the core expression. The scene is set in a government garden park, with the humanistic spirit infiltrating the space while seeking the source of Yongzhou.
丨接待总台丨
The Reception Desk
"流目浦烟夕,扬帆海月生",接待总台以简、静、峻洁的"渔舟"呈现,用极简的手法展现艺术境界,奠定项目中的主体地位。
"Liumupu yanxi, sail the sea and moon", the reception desk with a simple, quiet, clean "fishing boat" presented, with a minimalist approach to show the artistic realm, to establish the main role in the project.
永州别称竹城,竹之精神体现的便是永州人坚韧的品格,是一种取之不尽的精神财富,是精神与文化在时间长河里的积淀与灵感,川流不息,渊澄取映。
Yongzhou is also known as the bamboo city, the spirit of the bamboo reflects the tenacity of the character of the yongzhou people, is a kind of inexhaustible spiritual wealth, is the spirit and culture in the long river of time accumulation and inspiration, flowing, clear reflection.
设计以隼卯结构装置艺术挂件的方式再现了这一传统技艺的结构之美、力学之美,展现中建信和地产为城市发展注入新动力、活力的工匠精神。
The design reproduces the beauty of the structure and mechanics of this traditional technique in the way of the art pendant of the hayaku structure installation, and shows the craftsman spirit of China construction credit and real estate to inject new power and vitality into the urban development.
丨沙盘模型区丨
Sand Table Model Area
沙盘区上空,是空间几何与建筑结构的衍生“屋檐”,是自然与艺术的交织,传统与现代共生,俯仰之间为造访者提供了艺术互动的体验。沙盘区空间尺度开放有力,温润流畅的线条在空间里律动和穿透。
Above the sandbox area, there is a derivative "eave" of spatial geometry and architectural structure, which is the interweaving of nature and art, the symbiosis between tradition and modernity, and the pitching provides visitors with the experience of artistic interaction. The spatial scale of sand table area is open and powerful, and the warm and smooth lines move and penetrate in the space.
通过现代设计的简练笔触,以光影为媒介构成有趣的对话,增加视觉的层次与深度,访客亦可在光影的变动中感知时间的变迁,成为一种具有功能性的艺术装置。
Through the succinct brush-strokes of modern design, an interesting dialogue is formed with light and shadow as the medium, which increases the visual level and depth. Visitors can also perceive the change of time in the change of light and shadow, and become a functional art installation.
在光的映照下,空间有了表情,明与暗的层次、虚与实的对比、形与影的竞走,丰富着空间的意境氛围。
In the light of the reflection, the space has an expression, bright and dark levels, virtual and real contrast, form and shadow of the race walking, rich in the artistic atmosphere of the space.
丨水吧区丨
Water Area
水吧区为一个开放式销售洽谈空间,在空间动线上又与沙盘模型区齐平,以造型、色彩、高低的设计,金属质感与灯光的组合设计,界面干净整洁。使用借景的手法,把室外园林透过半透粗纱窗帘带入整个空间中,栩栩如生,以经典轻奢提升空间的价值要义。
The water bar area is an open sales negotiation space, which is flush with the sand table model area on the moving line of the space, with the design of modeling, color, height, metal texture and lighting combination design, the interface is clean and tidy. Using the technique of borrowing scenes, the outdoor garden is brought into the whole space through the semi-permeable roving curtain, which is lifelike and promotes the value of the space with the classic light luxury.
丨商务洽谈区丨
ChinaJoy BTB
洽谈区,伊派设计以借光影变换相映的设计艺术创造,在项目空间中展演一场美学与山水光影之城的对话,一山,一水,一雾,一树,构筑一处“潇水奔腾出九疑,临源湘水逶迤行。”
In the negotiation area, yipai design presents a dialogue between aesthetics and the city of landscape light and shadow in the project space with the artistic creation of light and shadow transformation.
One mountain, one water, one fog and one tree construct a place where "xiao shui pentium out of nine doubts, near the source of xiang shui meandering.
原木色屏风与米白皮革润色着整个商谈空间,蔓延至观者身心。窗前已近于「霁」,一切都变得朦胧了,白了,淡了,缥渺得让人心旷神怡,给室内增添一丝诗意的趣味,构筑这一方优雅境域。
Original wood color screen and rice white leather embellish the whole discussion space, spread to the viewer body and mind. The window is close to "ji", everything becomes hazy, white, light, ethereal get to let a person relaxed and happy, add a bit of poetic interest to the room, build this one party elegant state domain.
挽起一面轻纱,看清天边月牙。在日益喧嚣的都市生活里,我们愈加追求自然高尚的回归与生活。
Pull up a veil, see the crescent moon. In the increasingly noisy city life, we are increasingly pursuing the return of nature and noble life.
这里,与访客一处去除浮华、亲近自然,共饮一杯清茶,同研一碗青砂,符合内心向往的优雅境域,将是最佳的栖息地。
Here, together with visitors to get rid of vanity, close to nature, drink a cup of tea, with a bowl of green sand, in line with the heart of the elegant landscape, will be the best habitat.
VIP洽谈室,通过整体软装设计稳重空间基调,进行局部点缀,人文气息与时尚兼备,带给人更为深入合意的洽谈状态。
VIP negotiation room, through the overall soft decoration design sedate space tone, local embellishment, cultural atmosphere and fashion, bring people a more in-depth agreement with the state of negotiation.
儿童区塑造了一个极具韵律动感的童话世界,带来空间中浪漫的幻想,与纯净美好的心灵在此共鸣交织,趣味十足。
The children’s area shapes a fairy tale world with rhythm and dynamic feeling, bringing the romantic fantasy in the space, and the pure and beautiful heart is interwoven here, full of interest.
“挥毫当得江山助,不到潇湘岂有诗”,中建信和地产与永州市经投集团强强联合,选址滨江新城核心区,打造中建·滨江新城项目,引领片区开发,推动区域建设,完善各类配套,加速整个滨江新城板块的发展步伐,为永州城市发展注入新的动力和活力!中建信和匠心深耕湖南十几载,终与潇湘相遇,创领城市品质人居。“共襄时代封面,盛启永州新篇”为永州城市带来全新活力。
"When picking jiangshan help, less than xiaoxiang is there poem", construction and real estate with which the group combination, location of binjiang new town core area, build zhongjian binjiang new town project, lead the area development, promote the construction of regional, perfect all kinds of form a complete set, accelerate the development of the whole binjiang new plate, injected new motivity and energy to the development of yongzhou city! Zhongjian xinhe ingenuity deep cultivation of hunan for more than 10 years, the end and xiaoxiang meet, leading the city quality human settlements. "Together with the cover of The Times, shengqi yongzhou new chapter" for yongzhou city to bring new vitality.
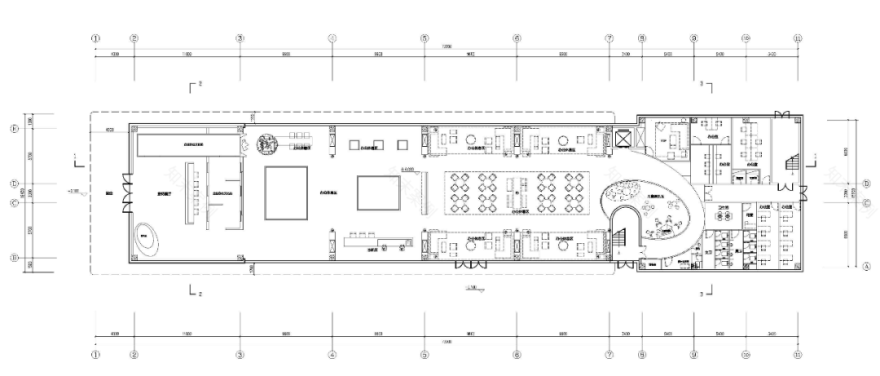
丨动线设计丨
Motion Trend Design
以人的动线和行进体验为标准,以接待前台为始,动线延伸至沙盘区、洽谈区、办公区;在有限的空间与工期之内寻求设计突破,在现代设计与传统文化之间寻找嫁接点,以设计的语言重构一个现代竹园。
With people’s moving line and marching experience as the standard, starting with the reception desk, the moving line extends to the sand table area, the negotiation area and the office area; In the limited space and time limit of the project to seek a design breakthrough, in the modern design and traditional culture between the search for grafting point, in order to design language reconstruction of a modern bamboo garden.
丨园林设计丨
Landscape Design
园林设计以山水自然为基调,用现代的手法,创造空间的仪式感与秩序性,强化景观视觉观感与寓意,尊重场所精神,弘扬永州文化,构筑饱含文化与自然共生的至雅坏境,构成一幅理想化的文人雅士诗意生活。
The landscape design takes the landscape and nature as the key, with the modern technique, creates the sense of ceremony and order of the space, strengthens the visual sense and meaning of the landscape, respects the spirit of the place, promotes the culture of yongzhou, constructs the elegant environment full of the coexistence of culture and nature, and constitutes an idealized poetic life of the literati.
"潇湘抚青莲,云水筑新城",与室内设计中烟雾缭绕的意境相呼应,怀素草书行云流水、千变万化的形态,展示永州地貌的自然肌理。
"Xiaoxiang fu qinglian, yunshui build a new city", in accordance with the artistic conception of the smoke-filled interior design, huaisu cursive writing flowing clouds and water, ever-changing form, showing the natural texture of the landscape of yongzhou.
一静一动,一虚一实,以自然诗意和当地文化传承相融合,在景观节点上与保方寺公园的部分节点相融合(艺术中心、空中观赏环廊、花卉漫步道等)。
A quiet movement, a virtual and a real, with natural poetry and local cultural heritage integration, integration of the landscape node of Baofangsi Park with some nodes (art center, air viewing corridor, flower walk, etc.).
客服
消息
收藏
下载
最近
















































