查看完整案例

收藏

下载
阿姆斯特丹市长于近日宣布开放北区仓库(Depot Amsterdam Noord),作为城市档案馆的新地址。该建筑使得既有的存档设施增加了一倍,而且完全不消耗化石燃料。循环的设计使得建筑拥有循环的交通路径,并且可以进行移动。在未来,建筑可以根据需要改变使用方式,或者在拆除后为其他建筑物提供材料。这对于档案馆建筑而言非同寻常。
▼建筑外观
©Lucas van der Wee
45km的货架空间
新的建筑位于阿姆斯特丹北部Vasumweg大街和Internetstraat大街的转角处,由cepezed设计,BAM Bouw en Techniek实施,仓库的总面积为2666平方米,货架的线性长度为45千米,可存放自1811年拿破仑引入民事登记系统以来的所有市政档案。
在此之前的档案则存放在阿姆斯特丹市中心的De Bazel大楼中。
▼仓库货架的线性长度为45千米
©Lucas van der Wee
实用且高效
该仓库不对外开放,拥有存粹的功能性和高效的设计。
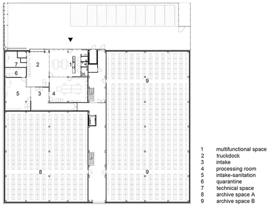
除了档案空间之外,还设有接待区、检疫区以及接收、清理和处理档案的空间。
档案空间本身包含两个12米高的大厅空间,并通过电梯和楼梯构成的交通带相连。
▼交通空间
©Lucas van der Wee
▼上下层空间关系
©Lucas van der Wee
设计的一个特殊之处是两个大厅均没有设置任何结构层,其上下高度完全被文件柜填满,地板由文件柜之间的木板构成,从而最大程度地减少了材料的使用,同时有利于内部空间的循环和气候控制的实现。
▼大厅的上下高度完全被文件柜填满
©Lucas van der Wee
粗野的美学
仓库的外立面给人以坚固而粗犷的感觉。
建筑体量几乎完全封闭,从外部无法看到内部的活动。
平滑的深灰色立面中央穿插着横向铺设的、同样是深灰色的太阳能电池板,带来极简的观感。
与之形成强烈对比的是阿姆斯特丹具有象征性的三个红色安德烈亚斯十字标志。
上下两个十字消失的部分使得立面的粗野美学进一步得到强调。
▼平滑的深灰色立面穿插着横向铺设的太阳能电池板
©Lucas van der Wee
▼十字架细部
©Lucas van der Wee
项目图纸
▼场地平面图
▼一层平面图
▼立面图
▼剖面图
project: stadsarchief amsterdam: depot amsterdam noord
address: internetstraat 10, amsterdam
client: municipality of amsterdam, amsterdam
architect: cepezed architectural office delft
interior architect: cepezedinterior delft
structural engineer: bam construction & technology region northwest
amsterdam
climate concept, building physics, sustainability,
acoustics and fire safety:dgmr
the hague
mep consultant:
halmos advisors
wassenaar
design build maintain contractor: bam construction & technology region northwest
amsterdam
steel construction:
vic obdam
obdam
official opening: november 2019
gfa: 2,665 m2
photography: cepezed | lucas van der wee
▼ 网站最新24小时精彩项目集锦
客服
消息
收藏
下载
最近
















