查看完整案例


收藏

下载
©张超
©张超
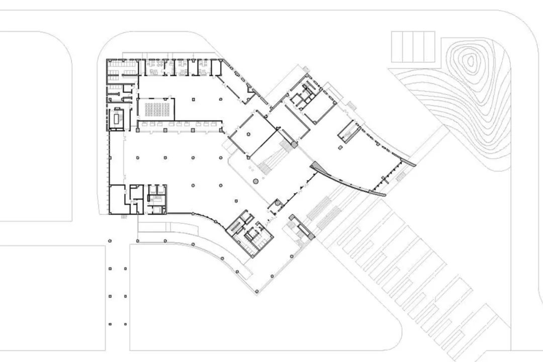
香港中文大学深圳校园的图书馆设计,将六层高大面积楼板的功能量体,分开成两个交错的 C 字形长条量体。两个各三层的长条量体经由转折和架空叠加,配合了校园的入口朝向与绿地轴线,保留了由中央绿地到山体的视线穿透性,也维系了校园自然坡地的完整性。
©张超
©张超
©张超
©张超
建筑以多层挑高的书架天光大堂为空间中心,延展到线性量体底端,观山框景的图书阅览室。图书馆室外的空间序列“庭/廊/台”配合了室内空间序列的“厅/堂/室”,彰显了室内与室外的空间对话与平行双重框景的空间张力。
©张超
©张超
设计利用内外墙体的过渡与木条和冲孔遮阳板的调控,将间接光源引入室内的阅览空间。建筑立面利用石材与青砖以退缩的外廊和开展的实墙,架起厚实而轻微曲折的上层铝板量体,随着观者在校园的步换景移,呼应了传统的屋瓦举折与凤凰展翅的大学意象。
模型©Ji Xiang
©Wade Zimmerman
©张超
我们将两万平米的功能面积分成上下两组 C 字型的半围合量体,每个量体分别有三层的楼面。下三层的量体对着校园空间展开,成为面向绿地大道的主要开口;上三层的长型量体对着背后的山体围合展开,量体底端成为眺望山景的多层阅览室。
©张超
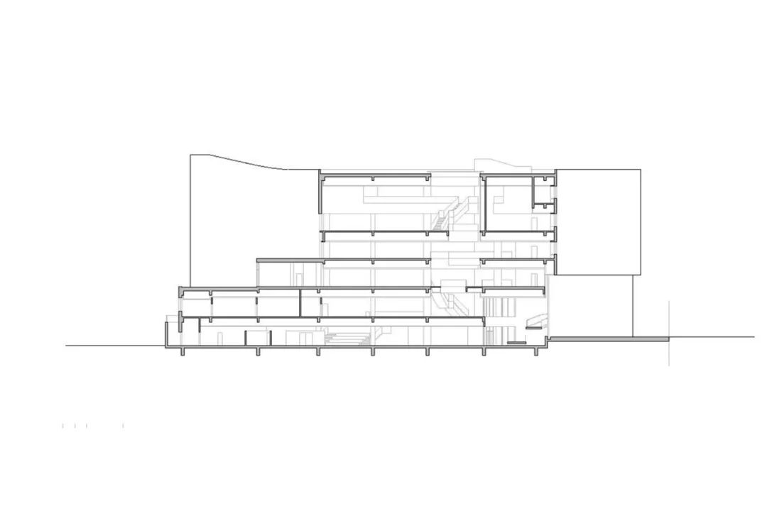
剖面图
在功能上,低层量体利用二层入口的大台阶串联,结合地面层的 24 小时研习工作坊,使得图书馆的下三层成为以研习讨论为主的弹性学习空间,上三层成为藏书与阅览和研究为主的静态空间。
分解轴测图
©张超
©Wade Zimmerman
我们在六层的量体内部安排了两个平行而关键的空间穿透:第一个经由大阶梯将视觉带到背后的青山,另一个透过书架将变换的阳光带入空间核心。第一个空间穿透是水平上仰的,设计利用上下两个量体的交错叠合空间,透过挑高的大厅入口和大台阶的视觉引导,将读者的视觉与流线从大门一路带到三层的平台面对后山的绿意。这个穿透强化了量体围合后院的形态关系,以及建筑空间对自然山体的通透性。
©张超
©张超
设计在上下两个空间量体重合的部分,随着量体的曲折打开一个五层高的中庭天井,天井上方的轻微弯曲的采光天窗由校园轴线转到南北向,透过穿孔铝板的方位与角度变换过滤夏季的遮阴引入冬季的阳光,让早晚与季节光影的变化成为书架与地板的痕迹。
©Wade Zimmerman
©Wade Zimmerman
©Wade Zimmerman
天井侧墙的挑空书架背面是善本藏书室与阅览厅,读者透过楼梯节节上升的引导和连桥的交错,产生天窗、遮阴、书架、楼板、梯桥的多重空间层次,以及视觉与身体向上运动时和书架与书本的互动暗示。
©张超
©Wade Zimmerman
©Wade Zimmerman
图书馆作为校园空间的核心建筑,担负了校园形式象征与活动联系的多重功能。作为校园绿地轴线序列公共建筑的关键,以及中庭广场方院连桥的转折,图书馆建筑面对了多面向的场地张力。
©王维仁建筑设计研究室
无论是图书馆与学生中心之间的荷花水池,或是图书馆与行政楼之间的草坡树林,图书馆的单体设计配合了整体校园规划理念,在区位上联系学院与学生活动和中庭广场,将大面积的建筑拉成转折而穿透的量体,保持了由绿地到山体的视线穿透性。
©Wade Zimmerman
©Wade Zimmerman
项目图纸
首层平面图
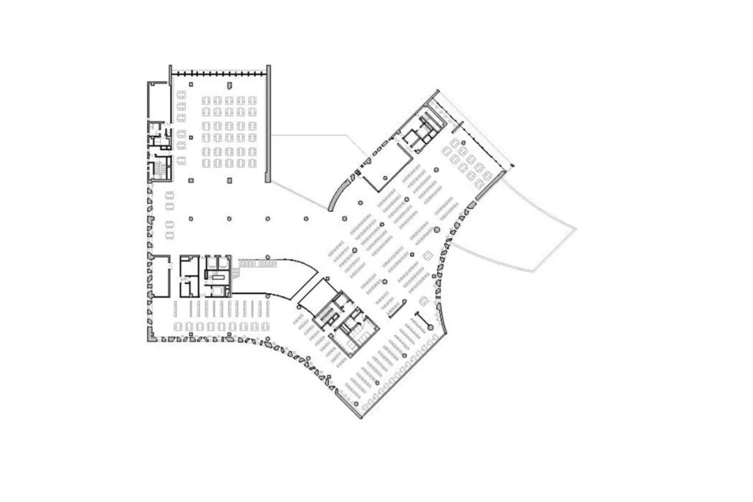
三层平面图
剖面图
剖面图
模型©Ji Xiang
模型©Ji Xiang
项目信息
建筑设计:王维仁建筑设计研究室
地址:深圳,中国
项目年份:2017
面积:21801㎡
主创建筑师:王维仁
项目团队:Xie Jing,Feng Li,Wang Haoran,Su Chang,Tian Yi,Li Shuqing
本地建筑师:中建东北院深圳院
摄影师:张超,Wade Zimmerman,Ji Xiang,王维仁建筑设计研究室
-END-
排版校对 | vicky
建日筑闻
仅供学习参考
中原豪宅品质标杆 | 打卡郑州顶级豪宅,看国际大家的匠心营作【环球观筑】
3 月民宿考察之旅 | 在莫干山遇见春暖花开【环球观筑】
暖春三月再启程|成都+重庆高端住宅+商业建筑游学【环球观筑】
新行程 | 烟雨 3 月,开启探索徽派建筑美学之旅【环球观筑】
寻梦敦煌|在春天的大漠,走近世界艺术美学巅峰莫高窟!【环球观筑】
2021 全新行程 | 看王澍、徐甜甜、张雷、刘家琨等大咖设计之下的江南乡村秘境【环球观筑】
再现长安盛世荣耀,游学西安地产与现代建筑【环球观筑】
杭州+宁波,探索高端地产与住宅建筑之旅【环球观筑】
杭州+苏州考察 | 新锐地产+大师建筑+古典园林深度参访【环球观筑】
客服
消息
收藏
下载
最近












































