查看完整案例

收藏

下载
优雅住宅
Artem Babayants
|
莫斯科165㎡现代优雅公寓
从生活的混乱中赢得一个和谐与安宁空间的愿望是贯穿Artem Babayants所有项目的主要思想。
Artem Babayants努力根据每个元素的内容和完美来重新思考空间。在这里,人们找不到多余的修饰和为了形式而背离意义、背离功能。
这间位于莫斯科的165㎡公寓
,设计师把暖色木饰面在这个空间中运用到了极致。
非常简单的饰面,建立在微妙的细微差别之上。但它赋予空间自由、完整、舒适和宁静的感觉。
不同的材质相互搭配,通过肌理与质感地融合,塑造出简练又优雅的空间氛围。
Artem Babayants
Artem Babayants是一家位于莫斯科的设计工作室,旨在改善现代生活的形式。努力创造一个现代人的生活环境,满足建筑和设计领域的所有现代潮流,个性化关注客户的舒适性,合理性,质量和愿望。
创始人Artem Babayants毕业于别尔哥罗德理工大学,专攻建筑。毕业后在莫斯科的一个建筑设计公司工作。直到2014年,他创立了自己的同名工作室。
Artem Babayants
项目的创建始于与光融合。光决定了空间的基本形式,揭示了纹理并营造了氛围。其他重要元素包括简洁的体量、天然材料、清晰的物体几何轮廓、构图的自由度和灵活性。Artem Babayants称这种风格为舒适的极简主义。
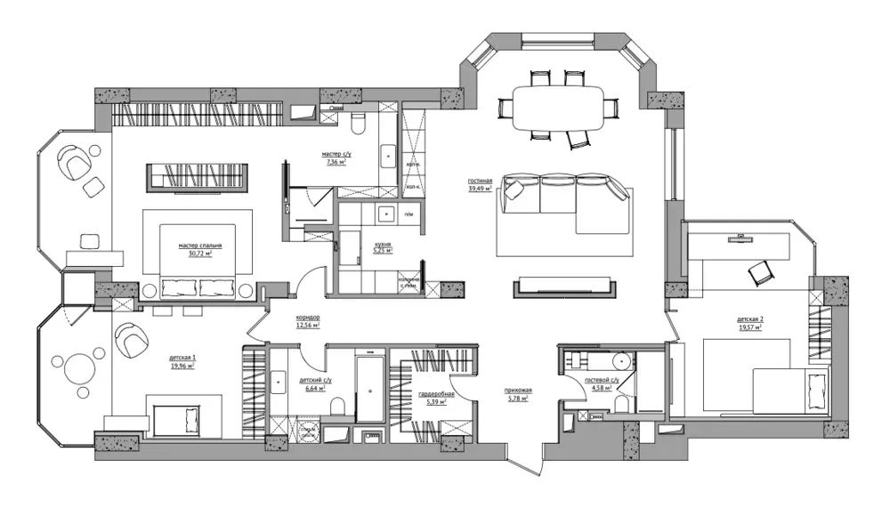
△ 平面布置图
•
本文为
全球
原创/整理内容,
包括且不限于文章标题、文字内容、排版形式。
■
合作联系
设计
咨询&设计服务&项目投稿
:
(132 6669 0981)
:
270㎡,光与野兽派美学之家!
200㎡,玻璃砖这样设计,家的颜值简直让人惊叹!
29㎡,巧用隔断,长条形精致舒适小公寓
22㎡,精致的实用主义!
70㎡,超酷单身公寓
客服
消息
收藏
下载
最近
















































