查看完整案例

收藏

下载
别墅设计
studiofour
| 墨尔本U型现代别墅
设计
梅菲尔德大道别墅(Mayfield Avenue Residence)是一栋环绕花园的U型现代房屋。房子位于澳大利亚墨尔本,由studiofour在2019年设计。
通过一份关于建筑和室内装饰的客户简报,梅菲尔德大道的住所成为对建筑和室内装饰之间可能产生的二元性的探索,同时仍然取得了凝聚力。坚固的结构构造定义了建筑形式,并与明显温暖的室内空间保持平衡。干净的衬砌建筑形式与分层的内部调色板搭配使用,该调色板的颜色变化源自设计过程早期选择的醒目的天然石材固有的纹理。精致的建筑细节采用自然的质感和微妙的色彩转换完成,从粘土砖砌到玫瑰色亚麻配饰,营造出坚固而宁静的住宅。
在寻找独立、平静和有目的的空间时避免了典型的开放式生活。对分隔和声学隐私的需求推动了建筑的形式,而分层过滤的建筑元素(如钢制屏格栅和双面壁炉)使所需的家庭互动成为可能。
寻求一种既具有庇护感、封闭感又具有舒适感的空间品质;同时提供一定程度的沉浸感。
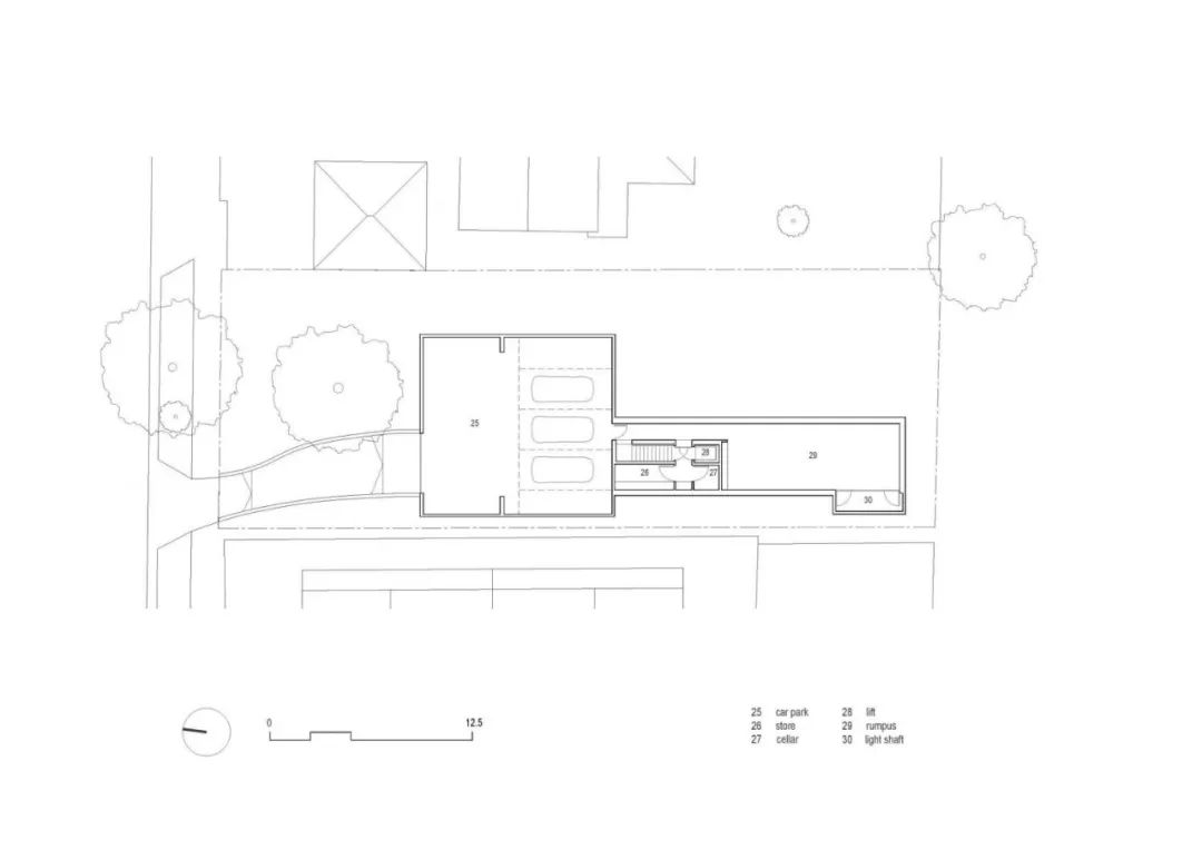
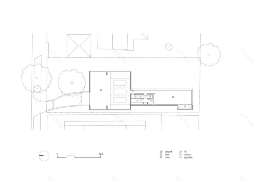
△ 负一层平面图
△ 一层平面图
△ 二层平面图
•
本文为
全球
原创/整理内容,
包括且不限于文章标题、文字内容、排版形式。
:
每一处都自带网红气质,白色极简别墅
高级灰色极简美学,值得借鉴的永恒设计语言
向往的办公环境!北欧精致极简美学办公室
北欧极简主义-平衡的生活美学之作
合作联系
设计
咨询&设计服务:
(132 6669 0981)
客服
消息
收藏
下载
最近













































