查看完整案例

收藏

下载
长江美术馆,位于山西省太原市东北角的长江村。
2016年,长江村像中国其他千万个村落一样,因城市建设的原因被抹为平地。
承载着人们日常生活记忆的土地,发生了断裂式的变化。
美术馆作为公众共享的文化空间,将以当代的方式回应、纪念这片土地上所发生过的故事。
▼鸟瞰
© 陈颢 / 直向建筑
▼视频:
建造实录
©直向建筑
▼长江村近十五年变迁
美术馆位于新建社区南端边界,与城市紧邻。
所以,建筑怎么连接社区和城市是我们关注的问题之一。
美术馆西南侧主楼梯从城市街道开始向上爬升,通向二层户外活动平台。
平台成为一个被架起的广场,再通过北侧的连桥延伸到社区。
这条外部穿越的公共流线,完全独立于馆内的展览流线,二者共同服务于城市公众和社区居民。
▼南立面近景
© 陈颢 / 直向建筑
▼入口
© 陈颢 / 直向建筑
▼西立面近景
© 陈颢 / 直向建筑
▼入口近景
© 陈颢 / 直向建筑
▼首层入口
© 陈颢 / 直向建筑
▼入口门厅
© 陈颢 / 直向建筑
▼从门厅看向庭院
© 陈颢 / 直向建筑
▼庭院
© 陈颢 / 直向建筑
▼北立面近景
© 陈颢 / 直向建筑
▼庭院和室外平台
© 陈颢 / 直向建筑
▼室外平台
© 陈颢 / 直向建筑
在美术馆内部,一个底部直径5.7米、高16.4米的“光塔”是整体空间组织的“锚固点”。
“光塔”既是起点也是终点。
人们对这个空间的体验从底层开始,参观路径中会有两次对望,结束于沿“光塔”外层环绕而下的螺旋楼梯。
▼光塔内景
© 陈颢 / 直向建筑
▼光塔内景
© 陈颢 / 直向建筑
▼从螺旋楼梯看向光塔和二层展厅
© 陈颢 / 直向建筑
▼从螺旋楼梯看向光塔空间
© 陈颢 / 直向建筑
▼从螺旋楼梯看向光塔空间和展厅
© 陈颢 / 直向建筑
在展览空间内,自然光经过天窗柔化过滤,再透过1.9米见方、1.9米深的井字梁格构渗入展厅,形成一种匀质的、笼罩性的光线。
连接二层与四层的外挂楼梯、内院的角窗、四层展厅西南角的竖向开缝,为沉浸于展览当中的人们提供了回眸城市的瞬间。
▼二层展厅
© 陈颢 / 直向建筑
▼东侧楼梯
© 陈颢 / 直向建筑
▼四层展厅
© 陈颢 / 直向建筑
▼四层展厅墙特写
© 陈颢 / 直向建筑
▼从放映厅看向展厅
© 陈颢 / 直向建筑
▼从展厅看向放映厅
© 陈颢 / 直向建筑
▼从放映厅看向角窗
© 陈颢 / 直向建筑
▼从角窗看向庭院
© 陈颢 / 直向建筑
▼从庭院望向角窗
© 陈颢 / 直向建筑
▼四层展厅竖向长窗
© 陈颢 / 直向建筑
▼四层展厅竖向长窗特写
© 陈颢 / 直向建筑
在我们看来,长江美术馆就像一块坚硬的砖,在这个特定的空间和时间的坐标点上,沉默并注视着周边喧嚣和变化着的城市。
▼室外平台
© 陈颢 / 直向建筑
▼东北视角街景
© 陈颢 / 直向建筑
▼西北视角街景
© 陈颢 / 直向建筑
▼鸟瞰
© 陈颢 / 直向建筑
项目图纸
▼模型
© 直向建筑
▼设计手稿
© 直向建筑
▼1层平面图
©直向建筑
▼2层平面图
©直向建筑
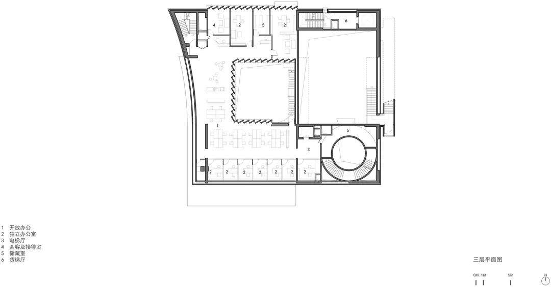
▼3层平面图
©直向建筑
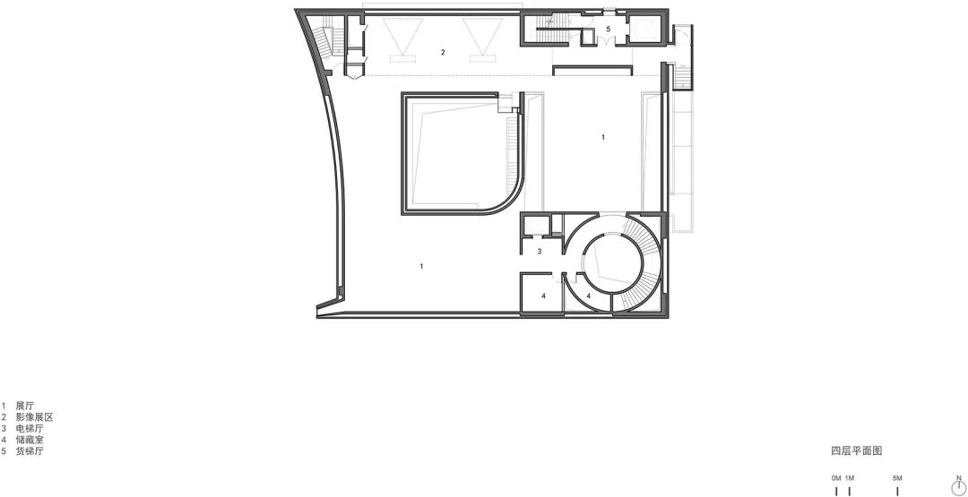
▼4层平面图
©直向建筑
▼屋顶平面图
©直向建筑
▼剖面图1
©直向建筑
▼剖面图2
©直向建筑
长江美术馆 项目信息
地理位置:
山西省太原市杏花岭区长江村,中国
建筑/室内/景观设计:
直向建筑
主持建筑师:
董功
项目建筑师:
孙栋平
建造管理:
赵亮亮
驻场建筑师:
郭天舒、陈振强
项目成员:
马小凯、陈振强、张恺、蒋昱程、滕晓曈、赵丹
当地设计院:
北京弘石嘉业建筑设计有限公司
合作项目建筑师:
张翠珍
合作建筑师:
李默
结构设计:
薛微、钟志宏、田熙
机电设计:
沈隽、郝书妨、张建霞、师科峰、李英平
灯光顾问:
清华大学建筑学院张昕工作室
业主:
山西千渡房地产开发有限公司
结构类型:
钢筋混凝土剪力墙结构
建筑材料:
木模混凝土,粘土砖,竹钢,青砖
建筑面积:
3900 m2
占地面积:
1100 m2
设计周期:
05/2016-03/2017
建设周期:
03/2017-09/2019
摄影:
陈颢(hchen@chenhao.studio , sera@chenhao.studio)
版权
©
▼ 网站最新24小时精彩项目集锦
客服
消息
收藏
下载
最近





















































