查看完整案例

收藏

下载
由Kimmel Eshkolot建筑事务所设计的Check Point大楼位于特拉维夫大学的校园中心,服务于计算机科学学院和面向科学领域的青年集体。
这座先进的大楼以集成的像素玻璃立面融入周边环境,犹如漂浮在场地上空,与旁边由马里奥·博塔设计的标志性的辛巴利斯塔犹太教堂及遗产中心(1998)和1960年代修建的精密科学大楼形成对比。
Check Point大楼是特拉维夫的多个校园扩建项目之一,其中Kimmel Eshkolot事务所还担任了自然历史博物馆的设计。
▼大楼外观
▼大楼旁边是由马里奥·博塔设计的标志性的辛巴利斯塔犹太教堂及文化遗产中心
新教学楼由以色列网络安全公司Check Point资助建造,旨在追求卓越的学术水平,培养新一代计算机科学家和程序设计员。
建筑设计实现了大学生和青年群体两组不同用户之间的分隔,同时又通过礼堂和大型教室等设施来鼓励双方的交流和集会。
▼轴测图
Check Point大楼是一座新型的、技术集成式的建筑,拥有独特的像素玻璃外墙,是在参数化建模的基础上设计而成。
外墙的设计是专为该项目而开发,与大楼本身所传达的价值观念形成了呼应。
建筑的西侧设置了一个框景区域,将原本的停车场转变为校园的中央广场。
▼建筑拥有独特的像素玻璃外墙
建筑采用的独特技术的开发对整个设计过程以及设计成果产生了极为重要的影响。
独特的设计语言试图超越建筑实体的沉重感,呈现出一种非物质的、与计算机和云计算相呼应的虚拟感觉。
从材料到反射,建筑的外观仿佛一直处于变化之中,与天空和云层融为一体。
▼立面细部
Kimmel Eshkolot事务所的创始人Etan Kimmel表示:
“技术往往会为建筑师带来启发,从而实现以往无法实现的想法。
在Check Point大楼的项目中,技术不再仅仅为建筑服务,它已经成为了建筑设计理念的一个重要部分。
”
▼建筑的西侧设置了一个框景区域
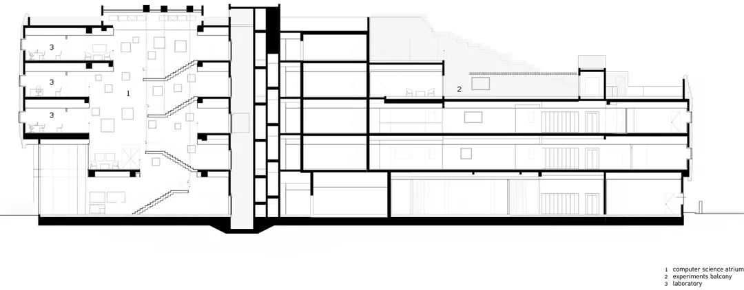
动态的几何形状是Check Point大楼的一个重要特征,它为大楼的两翼(青年区和下方的公共区)建立了连接,并使其最终汇合于顶部的计算机科学区。
建筑的中部是花园露台和青年实验露台。
可持续性也是设计关注的重点:
阴凉又开阔的庭院经过了精心定位和布局,带来良好的采光和自然风。
双层的立面能够同时保证通风和遮阳。
▼交通流线示意
▼入口大厅
▼交通空间
▼中庭
建筑外墙由5种不同的40x40cm的玻璃面板构成。
5种配置提供了不同级别的透明度、反射率和密封性,并根据用户的使用需求进行了参数化建模。
透明度更高的玻璃板可以在与立面平行的方向上开启(类似于公交车门),在完全打开时也不会影响建筑的整体观感。
为了使立面在夜间也保持这种统一性,团队还专门设计了照明系统来照亮特定的“像素”,从而模糊窗户的轮廓与边界。
▼窗户设计示意
▼专门设计的照明系统模糊了窗户的轮廓与边界
建筑物拥有双层的外立面,玻璃像素构成了一个通风的缓冲带,空调系统可以从这个缓冲带里吸入新鲜空气,使室内空间能够尽情“呼吸”。
大楼的内部空间和交通系统为公共区域和中庭创造了非正式的集会场所和开放式工作区,同时使中庭与既有的职员办公室以及实验室完美地衔接在一起。
▼双层玻璃立面
▼夜间立面
项目图纸
▼首层空间示意
▼场地平面图
▼首层平面图
▼剖面图
Architects: Kimmel Eshkolot Architects
Project Architects: Etan Kimmel, Limor Amrani, Omri Ron
Location: Tel Aviv, Israel
Scope: 6,300 SQM
Project Completion: 2019
Client: Tel Aviv University
Structural Engineering: STAR Engineers
Contractors: BUILD UP PROJECTS B.S.T. GROUP LTD, Y. Yankovich LTD
Project Management: Micha Barnea
Landscape Architecture: Zur-Wolf
Lighting Design: Noa Lev
All Photos: Amit Geron
版权
©
▼ 网站最新24小时精彩项目集锦
客服
消息
收藏
下载
最近


























