查看完整案例

收藏

下载
伦佐·皮亚诺美国首个豪宅
前不久,普利兹克奖得主伦佐·皮亚诺在悉尼完成的超级公寓One SydneyHarbour因其中一个复式单元售价超1.4亿美金成为澳洲名副其实的第一豪宅。如今他在纽约的第一座豪宅565 broome soho也完工了。1普利兹克奖得主伦佐·皮亚诺。
意大利裔建筑师伦佐·皮亚诺(Renzo Piano)以其运用在全世界博物馆和其他建筑的细腻精致的设计手法而闻名“敢于打破常规,并坚定地使之付诸实现,你就会发现,你的设计已不受任何限制,并达到自由自我的境界。——伦佐·皮亚诺
巴黎蓬皮杜艺术中心
伦敦碎片大厦
1937年皮亚诺出生于热内亚
曾以遵循家族传统称为建造者而培养
但他却选择了设计,并在米兰学习建筑
在1965和1970年间,他为路易·康工作
34岁时他和理查德·罗杰斯
获得巴黎蓬皮杜中心的设计竞赛
1981年创立个人事务所伦佐·皮亚诺建筑工作室
1998年他获得普利兹克建筑奖
悉尼第一豪宅One Sydney Harbour
伦佐·皮亚诺把技术、创意和材料融会贯通
建筑类型从酒店、教堂到音乐厅、空港、桥梁
每一次都是重新对建筑及建筑师的定义
2565 Broome SoHo
纽约豪华公寓大楼“565 broome soho”目前已经完成,是伦佐·皮亚诺在这座城市的第一座住宅建筑。
建筑模型
手绘图
565 Broome SoHo的豪华公寓住宅标志着该社区发展的顶点。565 Broome SoHo是Renzo Piano建筑工作室与巴黎室内设计公司RDAI合作的结果。
Renzo Piano建筑工作室负责建筑的形式和外观
RDAI则负责室内设计
两家公司都开发了一种通过强调设计质量和材料工艺来创造豪华空间的方法
565 Broome SoHo包括两个相同的玻璃塔
由位于底部的10层裙楼相连
外立面选择了具有水晶般光泽和透明度的“低铁”玻璃,拐角处的玻璃设置了无棱角造型,从而形成了光线明亮的住宅。
建筑师没有使用原型装饰来制造豪华外观,而是在真实的材料中找到美感:石头,白橡木,玻璃和混凝土。
"我们以非常诚实的方式使用材料,这些空间的特征非常丰富"皮亚诺解释道。
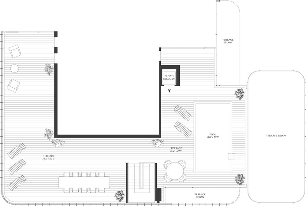
这座30层的建筑在小范围内高耸入云共有115个单元,从单间到四居室不等并且所有公寓都设有16英尺的落地窗可一览城市和哈德逊河的美景
RPBW长期以来一直以手工艺工作室而著称
对建筑元素的制造和组装方式非常重视
通过保持材料调色板的简洁,设计师可以强调这些材料的质量,就像长期定义SoHo的历史悠久的铸铁建筑一样,565 Broome SoHo通过关键材料来表现得与众不同。
115个单元中的所有住宅均旨在最大化地利用空间和景观。RPBW和室内设计师RDAI借鉴了soho阁楼的开放式布局,在超大窗户上采用超透明玻璃和中性色调,加上白色橡木地板和白色墙壁,以传达出“和谐、宁静和开放”。
主浴室覆盖着Calacatta Caldia大理石墙壁和地板并带有白橡木洗手盆
项目采用了最新的自动停车技术
拥有40个停车位
每个停车位都配备了一个满容量的充电站
除此以外,还包括一条私人车道
可通往庇护门廊
565 Broome SoHo还十分重视环保为入住居民提供了多种回收计划将90%以上的废物从垃圾填埋场,焚化炉和环境中转移出去
更多平面细节
点击下方图片即可阅读
本文编辑编辑Anna审核Joo主编ID
Joo_design2018
info@archifocus.pro
版权申明
客服
消息
收藏
下载
最近



























































