查看完整案例

收藏

下载
设计是舍弃多余,打造一个宁静的满足基本所需的空间。
01 会客空间
一种简单、真正的平静。一个杯子,几片茶叶,注入滚烫的开水。
茶叶如青螺入水般旋转下沉,茶水似流体碧玉般晶莹透亮。
满屋清香,一间茶室,一隅宁静。02,共享空间。
轻盈视感的家具单品围合舒适的起居中心,柔和的滤镜之下,任凭四时之变,空间流转,这里依然安静如初,一切烦忧得以放下。
天然大理石、温润的木质地板给予空间自然富有质感的底色
胡桃木餐桌配以皮质餐椅,打造舒适、寂静之感。
中岛是使用频率较高的区域,作为厨房台面的延伸,操作功能一应俱全。绕过岛台目光所及之处,尽是用餐区的雅致与温和。
03 藏书
大量藏书有了安放之处。忘忧之地,拥有心无旁骛读书的快乐。
木制地面,白色墙壁,原木家具,皮质单椅及黑色金属边框移门,一切都干净利落黑白分明。
04 私享空间
卧室不仅是睡觉、休息的场所,更是让人彻底放松身心的地方。卸下一身的疲惫感,拾一本书,时光渐渐慢下来。
木色、硬包和天然石材的简单调色板做为背景。将书房功能纳入卧室。
居住场景与使用功能相组合,让过道空间具备实用性。
05 卫浴空间
06 庭院
日落跌入昭昭星野
人间忽晚
有个院子,生活才有了诗意栖居。一种恬静安谧,如春日小溪,潺潺流淌。07 设计图纸。
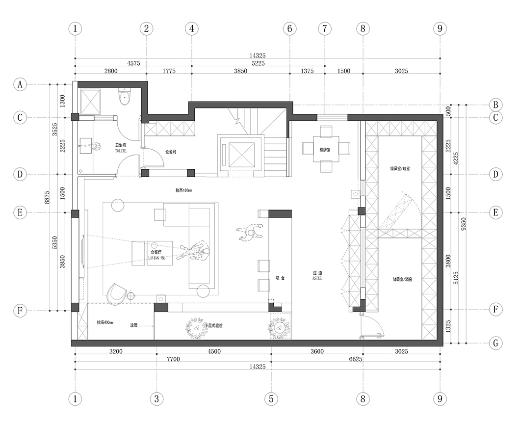
-1F 平面图
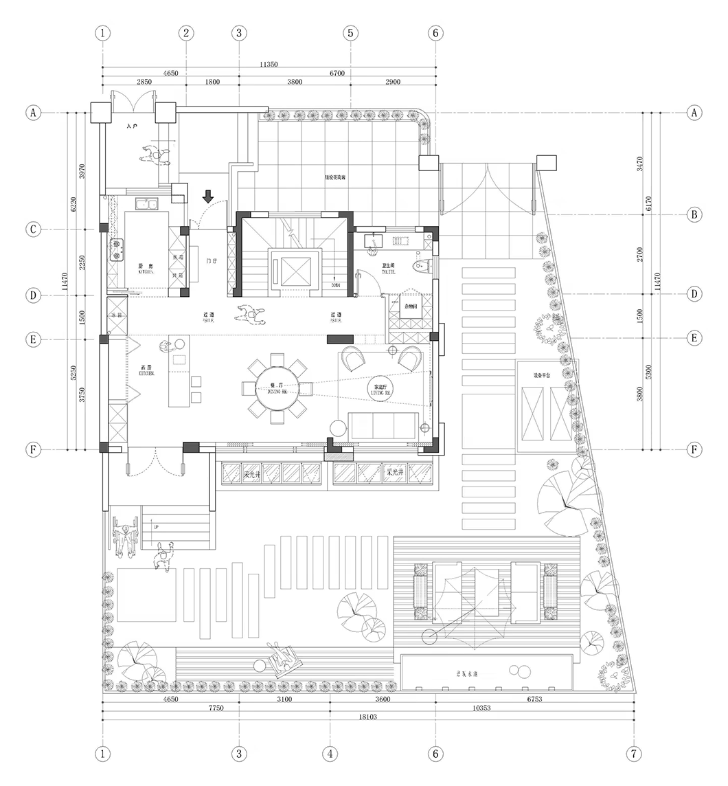
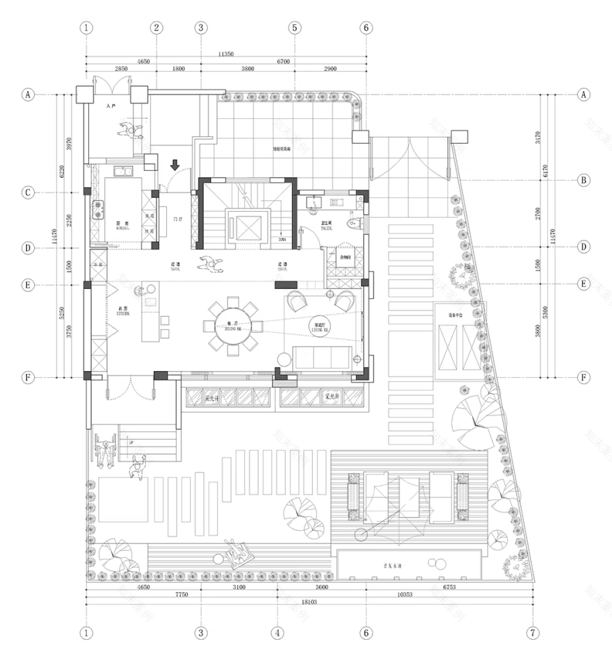
1F 平面图
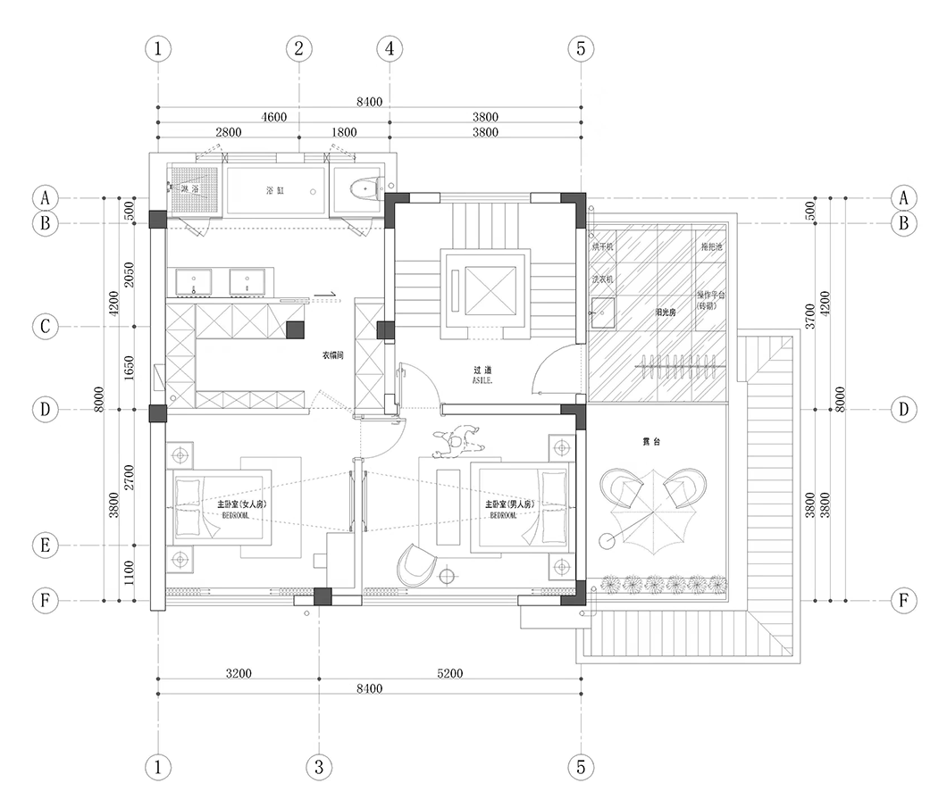
2F 平面图
3F 平面图
项目名称:南通 万濠山庄
设计范围:室内设计、软装设计
项目地点:江苏 南通
项目面积:400㎡
设计机构:南通积观建筑设计
设计总监:王士麟
设计深化:季颖、卢炳松、蔡文理
空间摄影:吴昌乐
王士麟积观设计创始人设计总监积观设计是由王士麟先生创办,位于江苏南通的新锐设计事务所。这是一个全新快速发展的时代,也是一个服务制胜的时代,真正从内心选择设计师行业的都是有设计之梦的。我们一直饱含对设计的热爱与执着。我们坚持做喜欢的事,让喜欢的事有价值。做一群安静的守业人。延伸阅读
客服
消息
收藏
下载
最近









































